279 000 000 Ft
736 000 €
- 206,6m²
- 8 szoba
akár 3-4 különbejáratú lakás kialakítható, 7 szoba, 3 fürdőszoba, 3 konyha, hőszivattyú
Ritka lehetőség a piacon – 2024-ben épült, sokoldalúan alakítható családi ház!
Szeretne egy olyan 2024-ben épült, minőségi kivitelezésű családi házat, amely egyszerre kínál tágas életteret és kivételes befektetési lehetőséget?
Ez az ingatlan akár 4 különálló lakássá alakítható, vagy egyben maradva egy impozáns, 7 szobás otthonként is funkcionálhat – ami valódi ritkaság a mai kínálatban!
Az ingatlan egy csendes utcában található, mégis kiváló közlekedési lehetőségekkel rendelkezik – így ideális választás azok számára, akik a nyugalmat nem szeretnék kompromisszumokkal megoldani.
Az építésnek és a minőségi kivitelezésnek köszönhetően az új tulajdonos egy korszerű, energiatudatos és hosszú távon értékálló ingatlan birtokosa lehet.
Az átgondolt kialakítás lehetővé teszi:
- Több generáció kényelmes együttélését,
- Külön bejáratú lakrészek létrehozását,
- Akár kiadásban vagy vállalkozásban történő hasznosítást is.
Képzelje el, hogy:
✔ a család együtt, mégis külön élhet
✔ a gyerekek, nagyszülők vagy akár felnőtté váló gyermekei saját életteret kapnak
✔ befektetésként több lakrészből stabil bevételt termel
✔ mindezt egy modern, kényelmi funkciókkal felszerelt otthonban
Ez az ingatlan nem csupán egy ház – hanem élethelyzetekhez igazítható jövőbiztos megoldás.
Műszaki extrák:
- Autótöltő
- Vízlágyító berendezés
- Hőszivattyú, mennyezet hűtő-fűtő funkcióval, ami szobánként külön vezérelhető
- 240 cm magas beltéri ajtók, prémium minőségben
- A földszint bal oldali lakása akadálymentesített
- 3 konyha, 1 nagyobb és 2 kisebb, de ha valaki 4 lakásban gondolkozik, akkor van lehetőség még konyha kialakítására, mert a vízkiépítés is megtörtént
- Gondozásmentes kerítés
- Elektromos nagykapu
- A kiskapuhoz lakásonként ki van építve a kapunyitó
- Beépített redőnytok kiépítése, elektromos kiállással
- Tetőtér minőségi, új trend szerinti befúvásos szigetelés
- 15 centi kőzetgyapot külső szigetelés
- Mindenhol padlófűtés
Az ilyen adottságokkal rendelkező, új építésű, sokoldalúan alakítható ingatlanok ritkán kerülnek piacra.
Hívjon bizalommal, és nézze meg személyesen ezt a kivételes lehetőséget – akár saját otthonként, akár befektetésként gondolkodik!
Szeretne egy olyan 2024-ben épült, minőségi kivitelezésű családi házat, amely egyszerre kínál tágas életteret és kivételes befektetési lehetőséget?
Ez az ingatlan akár 4 különálló lakássá alakítható, vagy egyben maradva egy impozáns, 7 szobás otthonként is funkcionálhat – ami valódi ritkaság a mai kínálatban!
Az ingatlan egy csendes utcában található, mégis kiváló közlekedési lehetőségekkel rendelkezik – így ideális választás azok számára, akik a nyugalmat nem szeretnék kompromisszumokkal megoldani.
Az építésnek és a minőségi kivitelezésnek köszönhetően az új tulajdonos egy korszerű, energiatudatos és hosszú távon értékálló ingatlan birtokosa lehet.
Az átgondolt kialakítás lehetővé teszi:
- Több generáció kényelmes együttélését,
- Külön bejáratú lakrészek létrehozását,
- Akár kiadásban vagy vállalkozásban történő hasznosítást is.
Képzelje el, hogy:
✔ a család együtt, mégis külön élhet
✔ a gyerekek, nagyszülők vagy akár felnőtté váló gyermekei saját életteret kapnak
✔ befektetésként több lakrészből stabil bevételt termel
✔ mindezt egy modern, kényelmi funkciókkal felszerelt otthonban
Ez az ingatlan nem csupán egy ház – hanem élethelyzetekhez igazítható jövőbiztos megoldás.
Műszaki extrák:
- Autótöltő
- Vízlágyító berendezés
- Hőszivattyú, mennyezet hűtő-fűtő funkcióval, ami szobánként külön vezérelhető
- 240 cm magas beltéri ajtók, prémium minőségben
- A földszint bal oldali lakása akadálymentesített
- 3 konyha, 1 nagyobb és 2 kisebb, de ha valaki 4 lakásban gondolkozik, akkor van lehetőség még konyha kialakítására, mert a vízkiépítés is megtörtént
- Gondozásmentes kerítés
- Elektromos nagykapu
- A kiskapuhoz lakásonként ki van építve a kapunyitó
- Beépített redőnytok kiépítése, elektromos kiállással
- Tetőtér minőségi, új trend szerinti befúvásos szigetelés
- 15 centi kőzetgyapot külső szigetelés
- Mindenhol padlófűtés
Az ilyen adottságokkal rendelkező, új építésű, sokoldalúan alakítható ingatlanok ritkán kerülnek piacra.
Hívjon bizalommal, és nézze meg személyesen ezt a kivételes lehetőséget – akár saját otthonként, akár befektetésként gondolkodik!
Regisztrációs szám
U0049376
Az ingatlan adatai
Értékesités
eladó
Jogi státusz
használt
Jelleg
ház
Építési mód
tégla
Méret
206,6 m²
Bruttó méret
239,6 m²
Telek méret
637 m²
Fűtés
hőszivattyú
Belmagasság
270 cm
Lakáson belüli szintszám
1
Tájolás
Dél-nyugat
Állapot
Kiváló
Homlokzat állapota
Kiváló
Környék
csendes, jó közlekedés
Építés éve
2023
Fürdőszobák száma
4
Víz
Van
Villany
Van
Csatorna
Van
Többgenerációs
igen
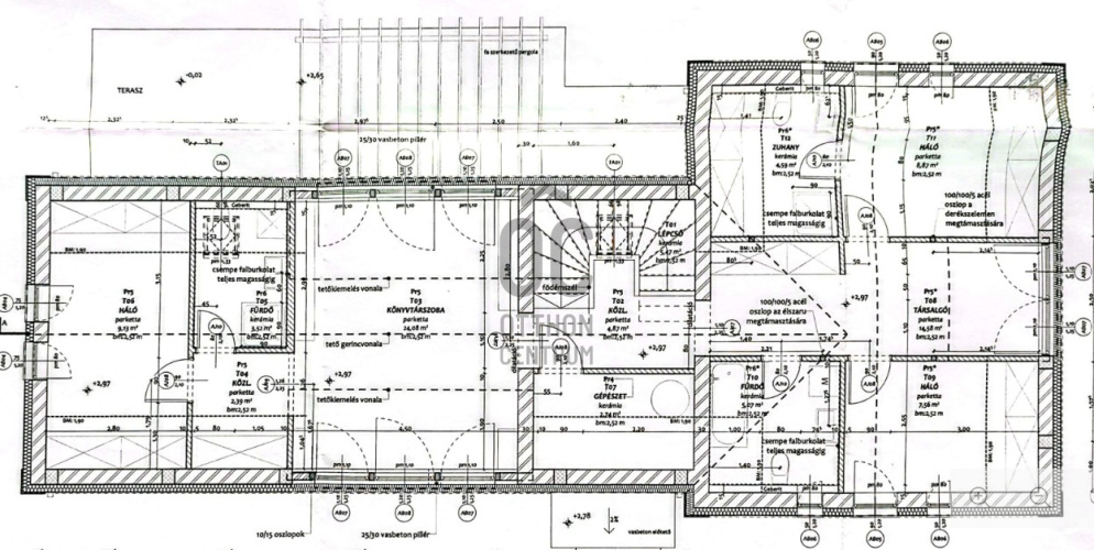
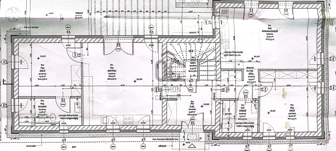
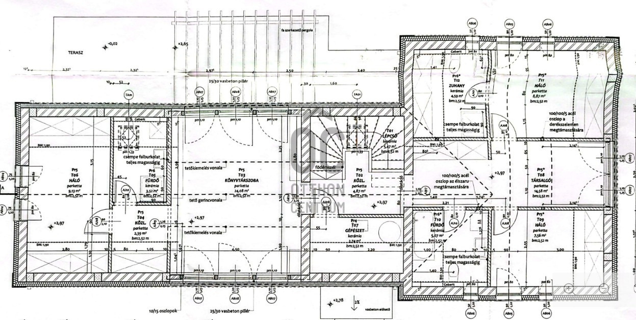
Helyiségek
háztartási helyiség
2.45 m²
előszoba
9.38 m²
nappali-konyha
28.19 m²
hálószoba
14.15 m²
fürdőszoba-wc
7.38 m²
közlekedő
4.53 m²
konyha-étkező
26.4 m²
hálószoba
16 m²
fürdőszoba-wc
5.25 m²
terasz
33 m²
lépcsőház
5.47 m²
közlekedő
4.87 m²
egyéb helyiség
2.74 m²
nappali
24.08 m²
közlekedő
2.14 m²
fürdőszoba-wc
3.14 m²
hálószoba
9.79 m²
nappali
14.58 m²
hálószoba
8.87 m²
fürdőszoba
4.59 m²
fürdőszoba-wc
5.07 m²
hálószoba
7.56 m²
Pomaházi Pál
Hitelszakértő