Eladó újépítésű családi ház, U0049369
Budapest XVII. kerület, Rákoskert

170 000 000 Ft

453 000 €

  • 112m²
  • 4 szoba

Új építésű önálló családi ház

Rákoskerten, csendes, rendezett mellékutcában, kiváló tömegközlekedési elérhetőséggel várja első tulajdonosát ez az amerikai konyha-étkező-nappali+ 3 hálószobás családi ház. Az építkezés folyamatban van, így a belső burkolatok, szaniterek, külső viacolor burkolás választhatók. 18 éve dolgozom együtt a kivitelezővel, sok-sok elégedett ügyfelem ma is az általa épült házban lakik. Tervezett kulcsrakész átadás 2026 június. Ne maradjon le róla!

Regisztrációs szám

U0049369

Az ingatlan adatai

Értékesités
eladó
Jogi státusz
új
Jelleg
ház
Építési mód
tégla
Méret
112 m²
Bruttó méret
135 m²
Telek méret
628 m²
Terasz / erkély mérete
23,1 m²
Fűtés
hőszivattyú
Belmagasság
280 cm
Tájolás
Észak-nyugat
Állapot
Kiváló
Homlokzat állapota
Kiváló
Környék
csendes, jó közlekedés, zöld
Építés éve
2026
Fürdőszobák száma
1
Víz
Van
Villany
Van
Csatorna
Van

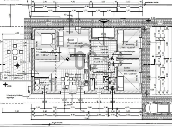
Helyiségek

nappali
31.32 m²
konyha-étkező
14.07 m²
szoba
11.89 m²
szoba
12.9 m²
szoba
12 m²
fürdőszoba-wc
9 m²
wc-kézmosó
1.49 m²
előszoba
9.47 m²
tároló
2.75 m²
közlekedő
1.49 m²
terasz
23.18 m²
háztartási helyiség
5.08 m²
Torday Tibor
Torday Tibor

Hitelszakértő

Irodánk kínálatából - XVII. kerület - Cinkotai út

for sale apartment

Index image
12

for sale panel apartment

Index image
data_sheet.details.realestate.section.main.otthonstart_flag.label
10

for sale apartment

Index image
19

for sale panel apartment

Index image
data_sheet.details.realestate.section.main.otthonstart_flag.label
12

for sale apartment

Index image
16

for sale apartment

Index image
17

for sale house part

Index image
data_sheet.details.realestate.section.main.otthonstart_flag.label
10

for sale family house

Index image
data_sheet.details.realestate.section.main.otthonstart_flag.label
46

for sale family house

Index image
data_sheet.details.realestate.section.main.otthonstart_flag.label
19