155 000 000 Ft
402 000 €
- 125m²
- 4 szoba
Newly built family house in Rákospalota
In the suburban area of Rákospalota, a newly built family house is for sale from a builder with references.
The project is continuously being constructed, with expected turnkey handover in the summer of 2026!
But let's look at the details!
- 341 m2 plot
- 125 m2 net floor area, two-story house
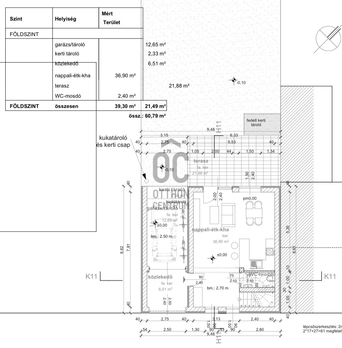
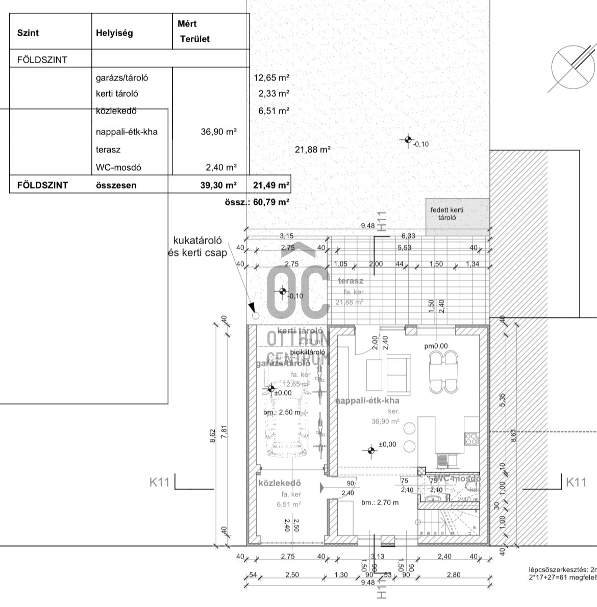
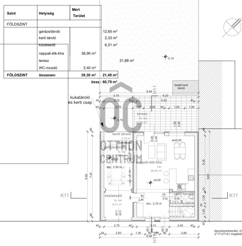
- The ground floor features a large living room with an American kitchen, a restroom, a terrace, and a garage
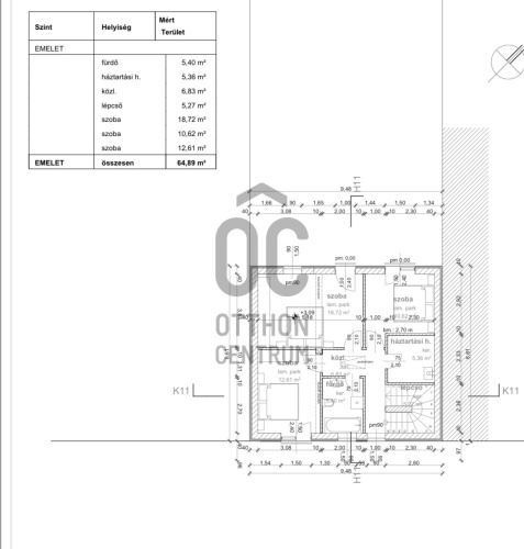
- The upper floor will have 3 bedrooms, a bathroom, and a utility room
- High technical content, anthracite tiled roof, gas circulation heating, cooling-heating air conditioning, triple-glazed plastic windows, 15 cm insulation
- The interior doors, wall colors, coverings, and sanitary fixtures are still selectable!
- The price includes landscaping and the construction of a wooden fence
Excellent location. The M3 motorway is reachable in a few minutes, Pólus Center and shopping options are available within 5 minutes. Bus stop at the corner.
Come and see it today! A great opportunity!
If needed, our independent banking expert is available for free consultation and administration.
The project is continuously being constructed, with expected turnkey handover in the summer of 2026!
But let's look at the details!
- 341 m2 plot
- 125 m2 net floor area, two-story house
- The ground floor features a large living room with an American kitchen, a restroom, a terrace, and a garage
- The upper floor will have 3 bedrooms, a bathroom, and a utility room
- High technical content, anthracite tiled roof, gas circulation heating, cooling-heating air conditioning, triple-glazed plastic windows, 15 cm insulation
- The interior doors, wall colors, coverings, and sanitary fixtures are still selectable!
- The price includes landscaping and the construction of a wooden fence
Excellent location. The M3 motorway is reachable in a few minutes, Pólus Center and shopping options are available within 5 minutes. Bus stop at the corner.
Come and see it today! A great opportunity!
If needed, our independent banking expert is available for free consultation and administration.
Regisztrációs szám
U0049302
Az ingatlan adatai
Értékesités
eladó
Jogi státusz
új
Jelleg
ház
Építési mód
tégla
Méret
125 m²
Bruttó méret
125 m²
Telek méret
340 m²
Terasz / erkély mérete
22 m²
Fűtés
Gáz cirkó
Belmagasság
270 cm
Lakáson belüli szintszám
1
Tájolás
Észak-nyugat
Állapot
Kiváló
Homlokzat állapota
Kiváló
Környék
jó közlekedés
Építés éve
2026
Fürdőszobák száma
2
Garázs
Benne van az árban
Garázs férőhely
1
Víz
Van
Gáz
Van
Villany
Van
Csatorna
Van
Tároló
Önálló
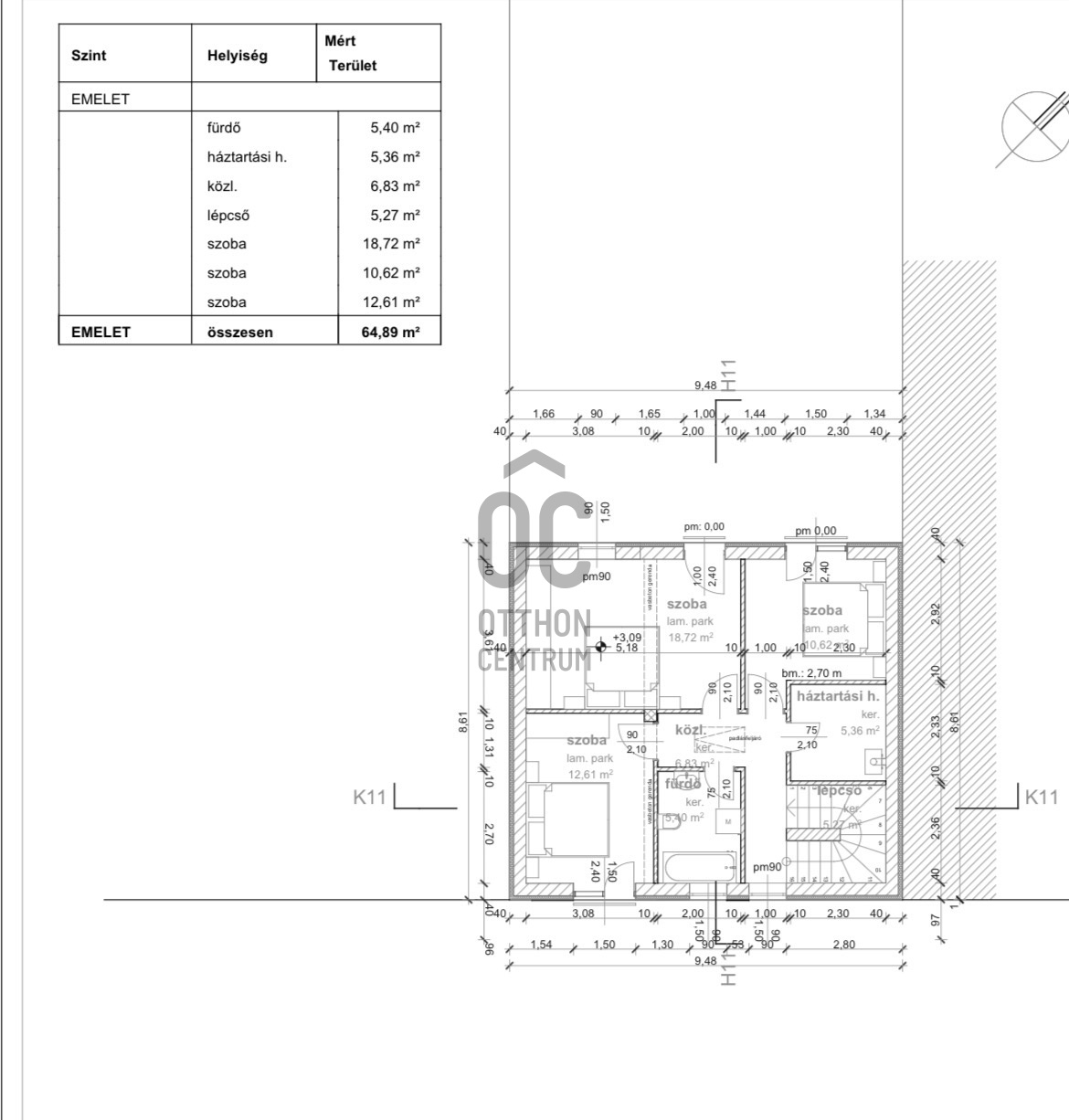
Helyiségek
nappali-étkező
36.9 m²
hálószoba
18.72 m²
hálószoba
10.62 m²
hálószoba
12.61 m²
fürdőszoba-wc
5.4 m²
háztartási helyiség
5.36 m²
wc-kézmosó
2.4 m²
terasz
21.88 m²
garázs
12.65 m²
Czene Enikő Éva
Hitelszakértő