309 000 000 Ft
818 000 €
- 244m²
- 5 szoba
Minimalista stílusban, maximális minőségben idén elkészült, 5 szobás ház
Fedezze fel ezt a kivételes lehetőséget Szentendre, Pismány városrészében, ahol egy új építésű, idén elkészült, modern ház várja Önt és családját.
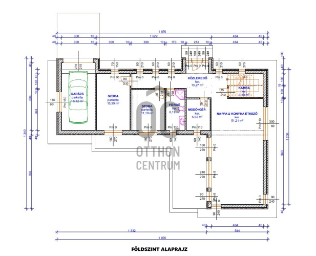
Az ingatlan a legmagasabb minőségi elvárásoknak megfelelően készült, közel 240 négyzetméteres alapterületén a nagyméretű világos nappalin, konyha-étkezőn, két fürdőszobán, mosókonyhán felül, 4 szoba és gardrób, plusz egy dolgozó sarok várja családjával.
A nagyméretű, majdnem teljesen sík telken, ősfák és tudatosan telepített, gondozott örökzöldek, valamint a telek végében csordogáló patak adják a telek hangulatát. A békés, patakparti környezet, a madárcsicsergés, a friss levegő és a zöld panoráma, minden nap feltölti energiával, a tiszta, friss levegő sétára, futásra, túrázásra kerékpározásra csábítja.
A ház tervezésekor, majd kivitelezése során a telek egyedi alaprajzának adottságait és meglévő növényzetének megóvása mellett az új növényzet telepítése is kiemelt szerepet kapott. Az újépítésű, Ytong falazatú, hőszivattyús fűtésrendszerrel ellátott épület, korszerű hőszigeteléssel, nyílászárókkal és energiatakarékos megoldásokkal biztosítja a kellemes klímát és az alacsony fenntartási költségeket egész évben. A zöldre néző nagy üvegfelületek beengedik a fényt, miközben a tágas, kertkapcsolatos nappali, a stílusos étkezővel és a nagyméretű terasszal a kényelmet és az eleganciát ötvözik.
Több, mint 1000 négyzetméteres telkével ideális választás mindazok számára, akik a városi élet nyüzsgésétől távol, mégis könnyen megközelíthető helyen szeretnének élni. Az ingatlanban öt tágas szoba található, amelyek lehetőséget adnak a családi életre, valamint vendégek fogadására. A két fürdőszoba kényelmet biztosít a mindennapok során, így a reggeli rohanásban sem kell kompromisszumot kötnie. A közel 50 négyzetméteres terasz tökéletes helyszín a pihenésre, ahol élvezheti a gyönyörű panorámát, amely a környék varázsát tükrözi. Az újépítésű ingatlan a hőszivattyús fűtés és a klímaberendezés pedig garantálja a kellemes hőmérsékletet télen és nyáron egyaránt. A garázsban egy autó kényelmesen parkolhat, ezen felül a telken további két autó is elfér, így nem kell aggódnia a parkolási lehetőségek miatt.
A környék csendes és biztonságos, ideális választás családok számára. Szentendre számos lehetőséget kínál a szabadidős tevékenységekre, legyen szó kirándulásokról, kerékpározásról vagy a helyi éttermek és kávézók felfedezéséről vagy kulturális élményekről, eseményekről. A közlekedési lehetőségek is kiválóak, hiszen a város könnyen megközelíthető autóval, de a tömegközlekedés is jól kiépített, így Szentendre és Budapest között gyorsan és kényelmesen közlekedhet. A családbarát ingatlan a természet nyugalmát és a városi kényelem közelségét kínálja, egyszerűen megközelíthető, csendes utcában, mégis percekre a városközponttól, óvodától, iskoláktól, üzletektől és tömegközlekedéstől.
Ez az ingatlan nemcsak egy otthon, hanem egy életstílus megtestesítője, amely lehetőséget kínál az aktív, de mégis nyugodt életvitelre.
Amennyiben érdekli ez a különleges ajánlat, kérem, ne habozzon kapcsolatba lépni velem, bármilyen kérdéssel vagy további információval kapcsolatban. Bizalommal kereshet, és szívesen segítek Önnek az ingatlan megtekintésében és a vásárlás folyamatában!
Az ingatlan a legmagasabb minőségi elvárásoknak megfelelően készült, közel 240 négyzetméteres alapterületén a nagyméretű világos nappalin, konyha-étkezőn, két fürdőszobán, mosókonyhán felül, 4 szoba és gardrób, plusz egy dolgozó sarok várja családjával.
A nagyméretű, majdnem teljesen sík telken, ősfák és tudatosan telepített, gondozott örökzöldek, valamint a telek végében csordogáló patak adják a telek hangulatát. A békés, patakparti környezet, a madárcsicsergés, a friss levegő és a zöld panoráma, minden nap feltölti energiával, a tiszta, friss levegő sétára, futásra, túrázásra kerékpározásra csábítja.
A ház tervezésekor, majd kivitelezése során a telek egyedi alaprajzának adottságait és meglévő növényzetének megóvása mellett az új növényzet telepítése is kiemelt szerepet kapott. Az újépítésű, Ytong falazatú, hőszivattyús fűtésrendszerrel ellátott épület, korszerű hőszigeteléssel, nyílászárókkal és energiatakarékos megoldásokkal biztosítja a kellemes klímát és az alacsony fenntartási költségeket egész évben. A zöldre néző nagy üvegfelületek beengedik a fényt, miközben a tágas, kertkapcsolatos nappali, a stílusos étkezővel és a nagyméretű terasszal a kényelmet és az eleganciát ötvözik.
Több, mint 1000 négyzetméteres telkével ideális választás mindazok számára, akik a városi élet nyüzsgésétől távol, mégis könnyen megközelíthető helyen szeretnének élni. Az ingatlanban öt tágas szoba található, amelyek lehetőséget adnak a családi életre, valamint vendégek fogadására. A két fürdőszoba kényelmet biztosít a mindennapok során, így a reggeli rohanásban sem kell kompromisszumot kötnie. A közel 50 négyzetméteres terasz tökéletes helyszín a pihenésre, ahol élvezheti a gyönyörű panorámát, amely a környék varázsát tükrözi. Az újépítésű ingatlan a hőszivattyús fűtés és a klímaberendezés pedig garantálja a kellemes hőmérsékletet télen és nyáron egyaránt. A garázsban egy autó kényelmesen parkolhat, ezen felül a telken további két autó is elfér, így nem kell aggódnia a parkolási lehetőségek miatt.
A környék csendes és biztonságos, ideális választás családok számára. Szentendre számos lehetőséget kínál a szabadidős tevékenységekre, legyen szó kirándulásokról, kerékpározásról vagy a helyi éttermek és kávézók felfedezéséről vagy kulturális élményekről, eseményekről. A közlekedési lehetőségek is kiválóak, hiszen a város könnyen megközelíthető autóval, de a tömegközlekedés is jól kiépített, így Szentendre és Budapest között gyorsan és kényelmesen közlekedhet. A családbarát ingatlan a természet nyugalmát és a városi kényelem közelségét kínálja, egyszerűen megközelíthető, csendes utcában, mégis percekre a városközponttól, óvodától, iskoláktól, üzletektől és tömegközlekedéstől.
Ez az ingatlan nemcsak egy otthon, hanem egy életstílus megtestesítője, amely lehetőséget kínál az aktív, de mégis nyugodt életvitelre.
Amennyiben érdekli ez a különleges ajánlat, kérem, ne habozzon kapcsolatba lépni velem, bármilyen kérdéssel vagy további információval kapcsolatban. Bizalommal kereshet, és szívesen segítek Önnek az ingatlan megtekintésében és a vásárlás folyamatában!
Regisztrációs szám
U0049159
Az ingatlan adatai
Értékesités
eladó
Jogi státusz
új
Jelleg
ház
Építési mód
ytong
Méret
244 m²
Bruttó méret
270 m²
Telek méret
1 008 m²
Terasz / erkély mérete
51 m²
Fűtés
hőszivattyú
Belmagasság
270 cm
Lakáson belüli szintszám
2
Tájolás
Dél-nyugat
Panoráma
Zöldre néző panoráma
Állapot
Kiváló
Homlokzat állapota
Kiváló
Környék
csendes, zöld
Építés éve
2025
Fürdőszobák száma
2
Társaház kert
igen
Garázs
Benne van az árban
Garázs férőhely
1
Víz
Van
Villany
Van
Csatorna
Van
Többgenerációs
igen
Helyiségek
nappali-konyha
51 m²
kamra
3 m²
mosókonyha
6 m²
közlekedő
13 m²
fürdőszoba-wc
6 m²
szoba
12 m²
szoba
15 m²
garázs
18 m²
terasz
51 m²
Durucskó Gabriella
Hitelszakértő