Elérhető Otthon Start hitellel
Eladó újépítésű ikerház,
U0048997
Budapest XXII. kerület, Nagytétény
109 000 000 Ft
284 000 €
- 75m²
- 3 szoba
NAGYTÉTÉNYBEN, CSENDES KERTVÁROSI környezetben, ÚJ ÉPÍTÉSŰ, IKERHÁZ ELADÓ !!!
2026 első félévi KÖLTÖZÉSSEL XXII. kerületben, Nagytétényben, nettó 75 m2-es hasznos alapterületű, nappali + 2 szobás (teraszos), ÚJ ÉPÍTÉSŰ, IKERHÁZAT kínálunk eladásra!
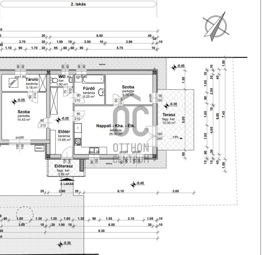
FÖLDSZINT:
Nettó: 74,5 m2 lakórész + 15 m2 terasz + 4 elő-terasz
Az ingatlanhoz saját, kizárólagos használatú, lekerített TELEKRÉSZ tartozik.
Műszaki információk:
Külső falazat: Leier 30 cm-es tégla, 10 cm-es Dryvit hőszigeteléssel, tetőszigetelés 30 cm-es Knauf üveggyapot, hőtükör fólia, diffúziós fólia. Terrán tetőcserép, szellőző cserepekkel kiegészítve.
Műanyag nyílászárók: FENSTHERM FUTURE vagy Kömmerling 5 légkamrás, 3 rétegű üvegezéssel, résszellőző funkció.
A fűtést és a meleg vizet 8 KW- os DAIKIN ALTHERMA HŐSZIVATTYÚ biztosítja, a hidegburkolattal rendelkező terekben padlófűtéssel, egyéb helyiségekben Vogel & Noote lapradiátorokkal kiegészítve.
A vételár tartalmazza a teljes riasztó rendszer kiépítését, valamint a klíma kiállás kiépítését (kül – és beltéri egységet NEM), valamin a napelem rendszer elektromos előkészítését!
A vételár NEM tartalmazza a hideg-meleg burkolatokat, a redőnyöket, szúnyoghálókat, a beltéri ajtókat, riasztóberendezést, csaptelepeket, valamint a szanitereket!
Ezek munkadíja viszont az árban foglaltatik!
Külön mérőórák, önálló telekrész!
MÉRETEK, TÁJOLÁS, ELRENDEZÉS, AZ ALAPRAJZON!
(Belső átalakítás a vevői igény szerint jelenleg még változtatható, alakítható)
KIVÁLÓ KÖZLEKEDÉSI LEHETŐSÉGEK, iskola, óvoda, bölcsőde, rendelő, Campona, Lidl, Aldi, minden szükséges szolgáltatás karnyújtásnyira elérhető.
Megtekinthető elkészült REFERENCIA munkák, CSOK PLUSZ, kedvezményes HITELEK FELVEHETŐK!
FÖLDSZINT:
Nettó: 74,5 m2 lakórész + 15 m2 terasz + 4 elő-terasz
Az ingatlanhoz saját, kizárólagos használatú, lekerített TELEKRÉSZ tartozik.
Műszaki információk:
Külső falazat: Leier 30 cm-es tégla, 10 cm-es Dryvit hőszigeteléssel, tetőszigetelés 30 cm-es Knauf üveggyapot, hőtükör fólia, diffúziós fólia. Terrán tetőcserép, szellőző cserepekkel kiegészítve.
Műanyag nyílászárók: FENSTHERM FUTURE vagy Kömmerling 5 légkamrás, 3 rétegű üvegezéssel, résszellőző funkció.
A fűtést és a meleg vizet 8 KW- os DAIKIN ALTHERMA HŐSZIVATTYÚ biztosítja, a hidegburkolattal rendelkező terekben padlófűtéssel, egyéb helyiségekben Vogel & Noote lapradiátorokkal kiegészítve.
A vételár tartalmazza a teljes riasztó rendszer kiépítését, valamint a klíma kiállás kiépítését (kül – és beltéri egységet NEM), valamin a napelem rendszer elektromos előkészítését!
A vételár NEM tartalmazza a hideg-meleg burkolatokat, a redőnyöket, szúnyoghálókat, a beltéri ajtókat, riasztóberendezést, csaptelepeket, valamint a szanitereket!
Ezek munkadíja viszont az árban foglaltatik!
Külön mérőórák, önálló telekrész!
MÉRETEK, TÁJOLÁS, ELRENDEZÉS, AZ ALAPRAJZON!
(Belső átalakítás a vevői igény szerint jelenleg még változtatható, alakítható)
KIVÁLÓ KÖZLEKEDÉSI LEHETŐSÉGEK, iskola, óvoda, bölcsőde, rendelő, Campona, Lidl, Aldi, minden szükséges szolgáltatás karnyújtásnyira elérhető.
Megtekinthető elkészült REFERENCIA munkák, CSOK PLUSZ, kedvezményes HITELEK FELVEHETŐK!
Regisztrációs szám
U0048997
Az ingatlan adatai
Értékesités
eladó
Jogi státusz
új
Jelleg
ház
Építési mód
tégla
Méret
75 m²
Bruttó méret
90 m²
Telek méret
157 m²
Terasz / erkély mérete
15 m²
Kert méret
162 m²
Fűtés
hőszivattyú
Belmagasság
265 cm
Tájolás
Dél-kelet
Állapot
Kiváló
Homlokzat állapota
Kiváló
Környék
csendes, jó közlekedés
Építés éve
2025
Fürdőszobák száma
1
Társaház kert
igen
Víz
Van
Gáz
Utcán
Villany
Van
Csatorna
Van
Helyiségek
nappali-konyha
26 m²
szoba
9.75 m²
szoba
14.43 m²
tároló
5.18 m²
fürdőszoba
6.25 m²
wc-kézmosó
1.9 m²
előszoba
10.68 m²
terasz
15 m²
Pongó Miklós
Hitelszakértő