188 520 000 Ft
484 000 €
- 157m²
- 5 szoba
































In Nagymacs, a one-story twin house with a living room, American kitchen-dining area, and 4 separate rooms is for sale, located next to BMW!
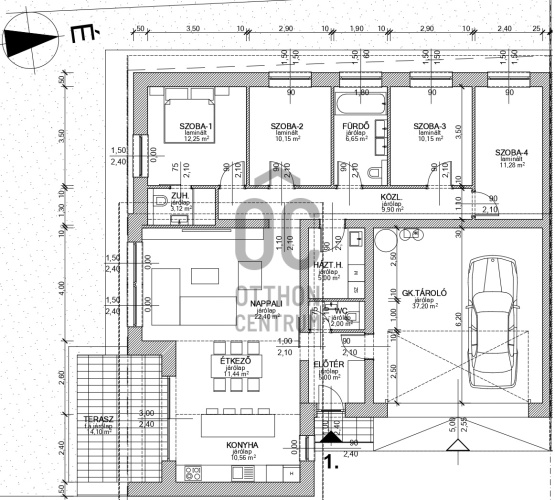
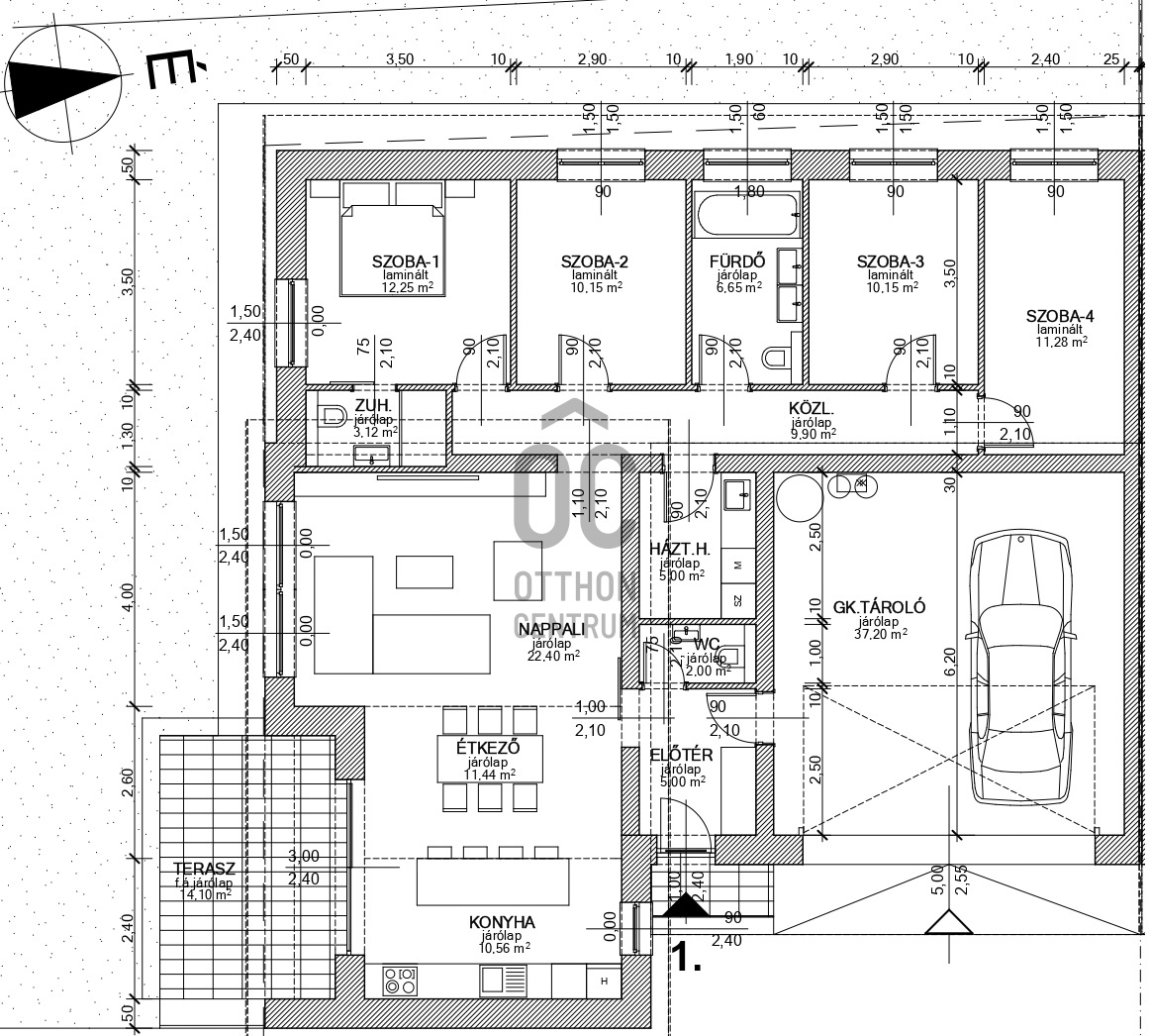
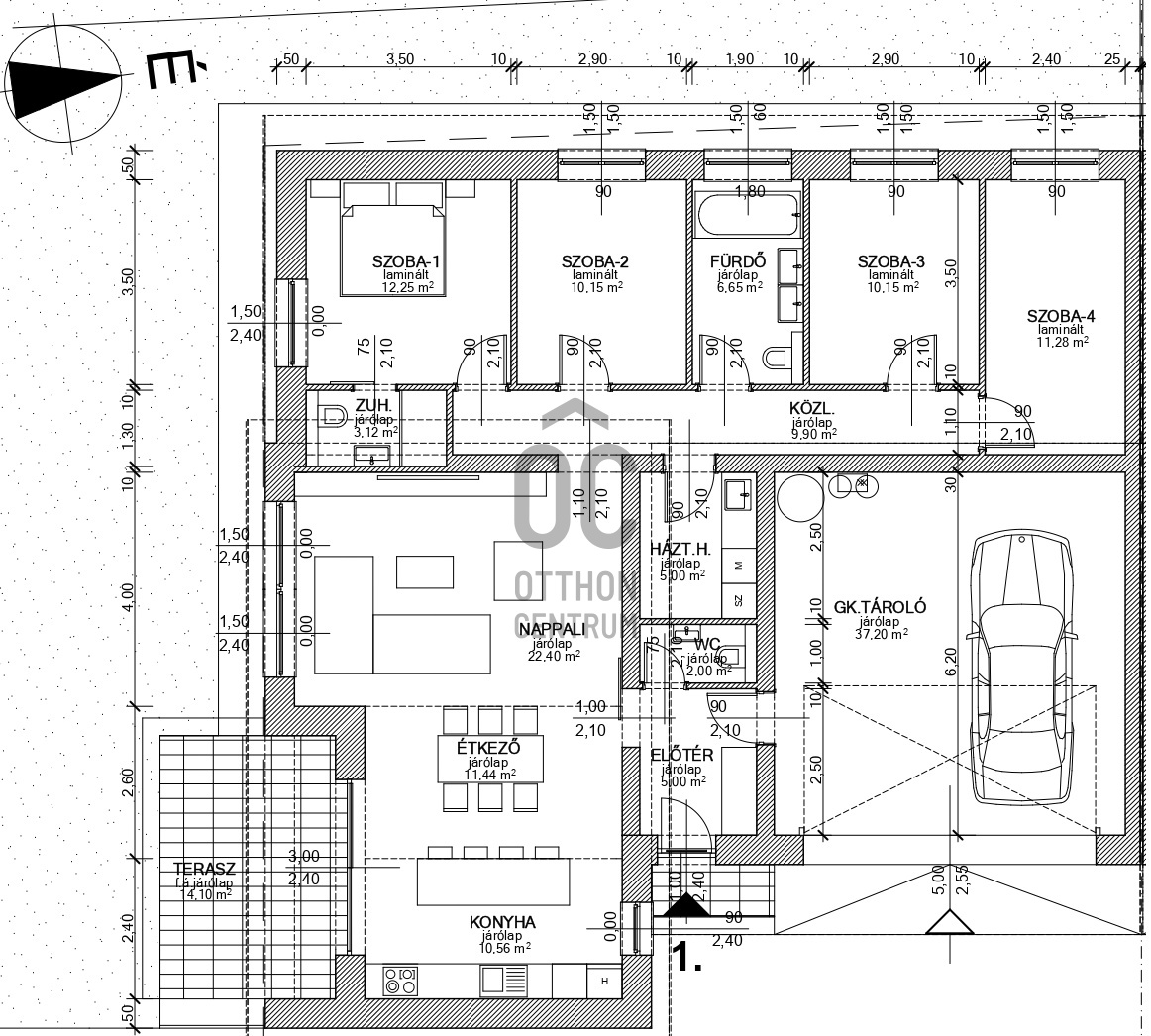
For sale in Nagymacs, just 1 minute from BMW, a newly built, 157 m² duplex house with a living room-American kitchen-dining area + 4 separate rooms, double garage, on a 660 m² plot, as follows: > Single-story design with large and bright spaces > The living room-kitchen-dining area alone is 44 m², which connects to a partially covered terrace of 14 m² > The heating demand of the heat pump is fully covered by the 5 kW solar panel system, ensuring excellent sustainability of the building > 2 bathrooms and 3 toilets ensure a smooth morning routine > All 4 bedrooms open separately and are well-separated from the living area, guaranteeing peaceful rest > The sectional garage door is also insulated and equipped with an electric remote control > Paved driveway, landscaping, and lawn > Choice of tile colors and materials (tiles-vinyl-laminated parquet) > A canopy can be ordered for the terrace upon request > The purchase price includes the cost of constructing the side, street-facing, and rear fences, as well as the price of the street-facing electric remote-controlled gate > In addition to the flooring, interior doors can also be selected For detailed technical specifications, further information, or to schedule a viewing, please call our colleague any day of the week!
Regisztrációs szám
U0048859
Az ingatlan adatai
Értékesités
eladó
Jogi státusz
új
Jelleg
ház
Építési mód
tégla
Méret
157 m²
Bruttó méret
171 m²
Telek méret
660 m²
Terasz / erkély mérete
14 m²
Kert méret
660 m²
Fűtés
values.realestate.futes.26
Belmagasság
270 cm
Tájolás
Dél-kelet
Állapot
Kiváló
Homlokzat állapota
Kiváló
Környék
csendes, jó közlekedés, zöld, központi
Építés éve
2026
Fürdőszobák száma
2
Társaház kert
igen
Garázs
Benne van az árban
Garázs férőhely
2
Víz
Van
Gáz
Van
Villany
Van
Csatorna
Van
Helyiségek
szoba
12.25 m²
szoba
11.28 m²
szoba
10.15 m²
szoba
10.15 m²
nappali
22.4 m²
konyha
10.56 m²
ebédlő
11.44 m²
garázs
37.2 m²
fürdőszoba-wc
6.65 m²
fürdőszoba-wc
3.12 m²
közlekedő
9.9 m²
háztartási helyiség
5 m²
wc-kézmosó
2 m²
előszoba
5 m²
terasz
12.1 m²

Plébán László
Hitelszakértő