Elérhető Otthon Start hitellel
Eladó újépítésű családi ház,
U0048801
Gyál
149 900 000 Ft
382 000 €
- 161,4m²
- 5 szoba




Eladó újépítésű családi ház Gyálon!
Eladó újépítésű családi ház Gyálon!
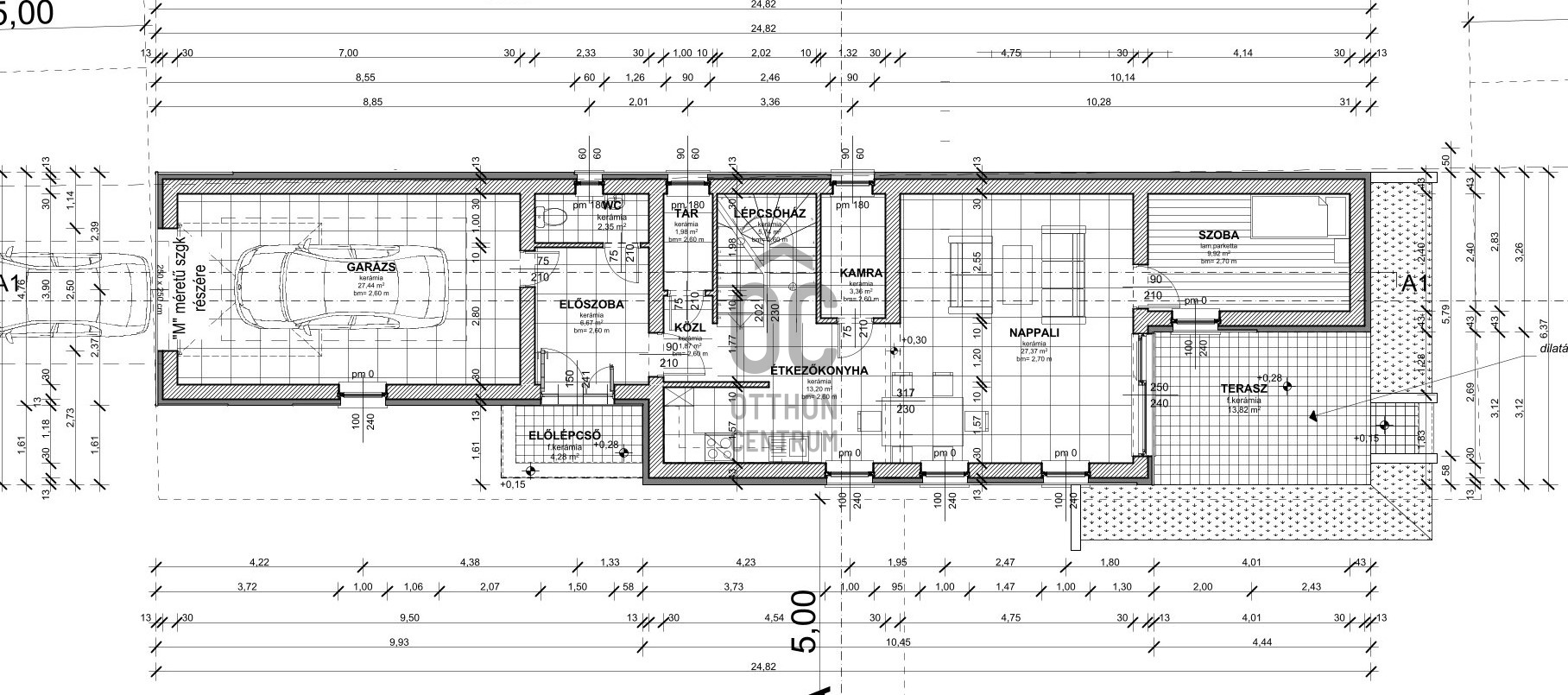
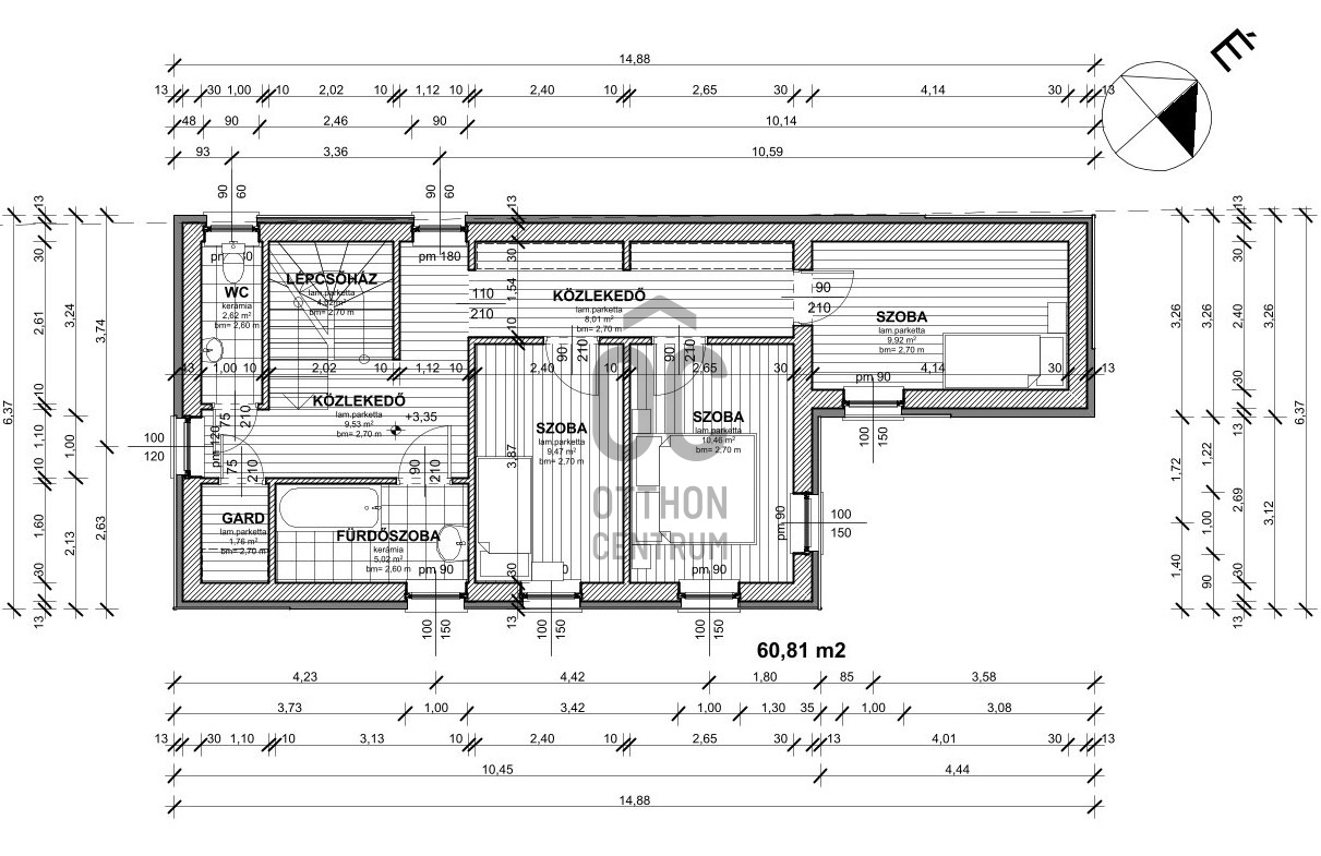
Alapterület:nettó 161 m2, bruttó 216m2
Szobák száma: 4 szoba + nappali-konyha
Oldalhatárra épített, emeletes családi ház rendezett környéken.
Műszaki tartalom (részlet)
- falazata 30-as Porotherm tégla 15 cm-es szigeteléssel, lábazat 12 cm XPS szigetelés
- válaszfalak 10 cm-es tégla
- hőszivattyús padlófűtés
- 3 rétegű külső nyílászárók, fehér kivitelben
- hideg-, meleg burkolatok, szaniterek belső nyílászárók választhatók
- 1 klíma a nappaliban, további klíma kiállás minden helyiségben.
-Elektromos redőny,
-elektromos garázsajtó és kettő elektromos kapu
-Riasztó- és kamerarendszer kiállás,
-külső homlokzati világítás,
- autóbeálló viakolorral burkolva.
-Napelem előkészítés
- 3x25 amper
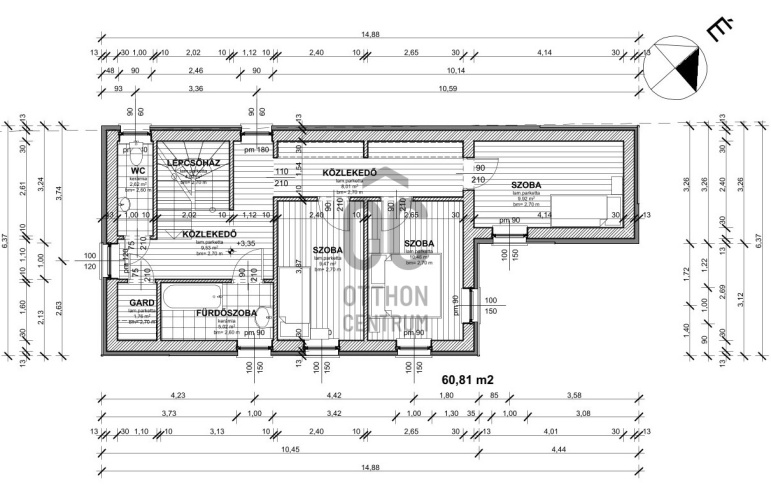
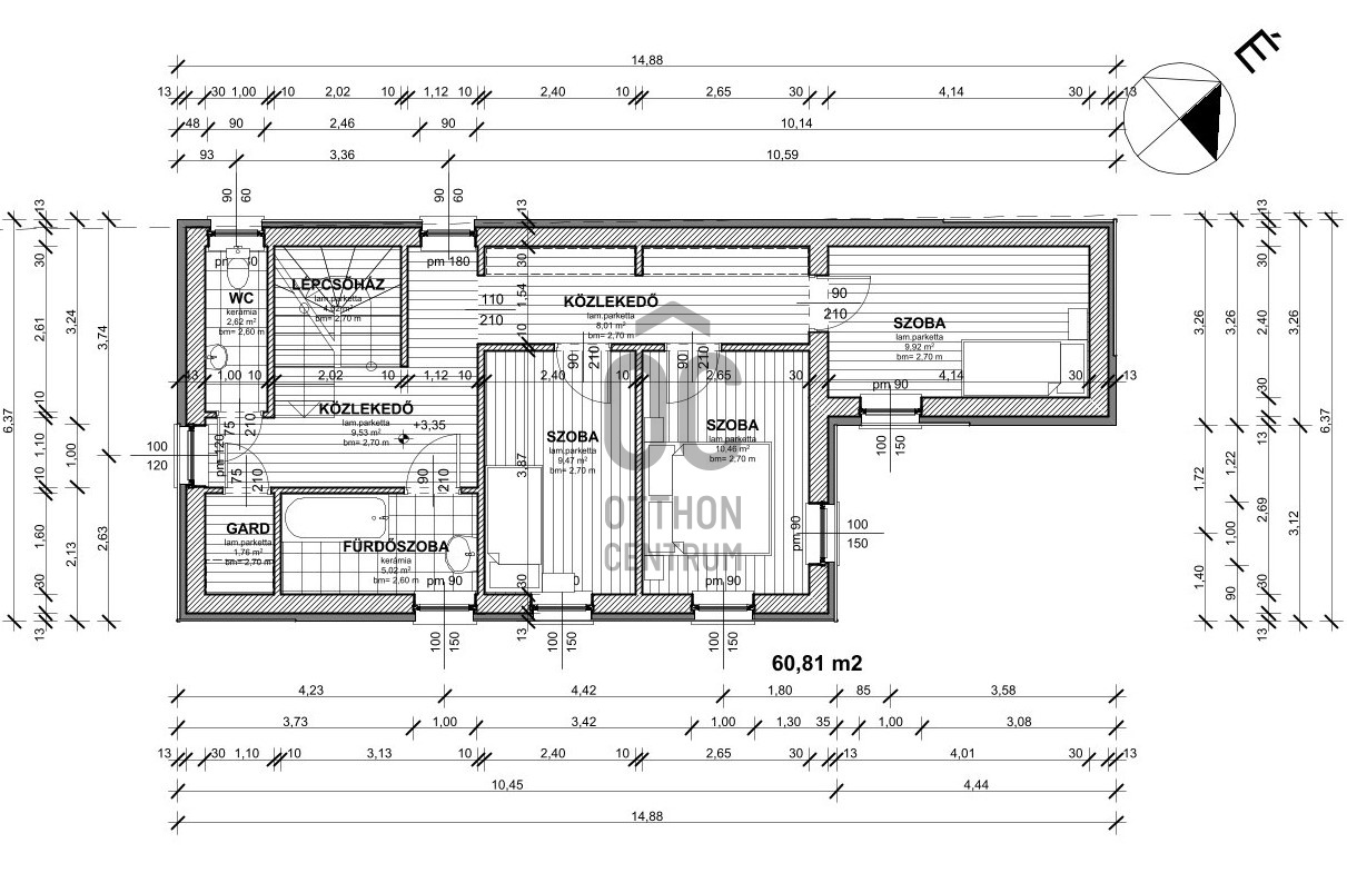
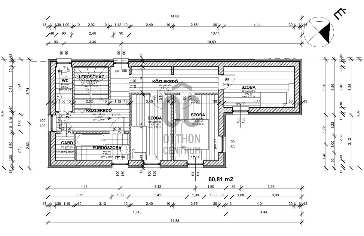
Az alaprajz tájékoztató jellegű!
Egyedi kívánságok figyelembevételével:
A ház építkezésének készenléti állapotától függően lehetőség van egyedi igények megvalósítására, AKÁR a már kész részek átalakítására,felár fejében, burkolatok, szaniterek és beltéri ajtók választására, így otthona még inkább az Ön egyéni ízlésére szabható.
Teljes műszaki leírás és dokumentáció rendelkezésre áll, kérésre szívesen megküldöm.
Jelenlegi készültségi szint: A falazásnál tartanak
Az ár kulcsrakész állapotra vonatkozik.
Átadás várható ideje: 2026.06.30.
osztatlan közös ügyvédi megosztás.
Ne hagyja ki ezt a kivételes lehetőséget!
Hívjon a hét bármelyik napján, hogy megismerje közelebbről ezt a kiváló, minden igényt kielégítő családi házat!
További információval örömmel állok rendelkezésére.
Alapterület:nettó 161 m2, bruttó 216m2
Szobák száma: 4 szoba + nappali-konyha
Oldalhatárra épített, emeletes családi ház rendezett környéken.
Műszaki tartalom (részlet)
- falazata 30-as Porotherm tégla 15 cm-es szigeteléssel, lábazat 12 cm XPS szigetelés
- válaszfalak 10 cm-es tégla
- hőszivattyús padlófűtés
- 3 rétegű külső nyílászárók, fehér kivitelben
- hideg-, meleg burkolatok, szaniterek belső nyílászárók választhatók
- 1 klíma a nappaliban, további klíma kiállás minden helyiségben.
-Elektromos redőny,
-elektromos garázsajtó és kettő elektromos kapu
-Riasztó- és kamerarendszer kiállás,
-külső homlokzati világítás,
- autóbeálló viakolorral burkolva.
-Napelem előkészítés
- 3x25 amper
Az alaprajz tájékoztató jellegű!
Egyedi kívánságok figyelembevételével:
A ház építkezésének készenléti állapotától függően lehetőség van egyedi igények megvalósítására, AKÁR a már kész részek átalakítására,felár fejében, burkolatok, szaniterek és beltéri ajtók választására, így otthona még inkább az Ön egyéni ízlésére szabható.
Teljes műszaki leírás és dokumentáció rendelkezésre áll, kérésre szívesen megküldöm.
Jelenlegi készültségi szint: A falazásnál tartanak
Az ár kulcsrakész állapotra vonatkozik.
Átadás várható ideje: 2026.06.30.
osztatlan közös ügyvédi megosztás.
Ne hagyja ki ezt a kivételes lehetőséget!
Hívjon a hét bármelyik napján, hogy megismerje közelebbről ezt a kiváló, minden igényt kielégítő családi házat!
További információval örömmel állok rendelkezésére.
Regisztrációs szám
U0048801
Az ingatlan adatai
Értékesités
eladó
Jogi státusz
új
Jelleg
ház
Építési mód
tégla
Méret
161,4 m²
Bruttó méret
216,4 m²
Telek méret
449 m²
Fűtés
hőszivattyú
Belmagasság
275 cm
Lakáson belüli szintszám
1
Tájolás
Dél-nyugat
Állapot
Kiváló
Homlokzat állapota
Kiváló
Környék
csendes, jó közlekedés, zöld, központi
Építés éve
2025
Fürdőszobák száma
2
Garázs
Benne van az árban
Víz
Van
Gáz
Utcán
Villany
Van
Csatorna
Van
Helyiségek
előszoba
6.67 m²
nappali-konyha
40.57 m²
wc-kézmosó
2.35 m²
kamra
3.36 m²
lépcsőház
5.74 m²
közlekedő
1.87 m²
tároló
1.98 m²
terasz
12.38 m²
garázs
27.44 m²
közlekedő
7.47 m²
szoba
9.92 m²
szoba
9.78 m²
szoba
10.19 m²
fürdőszoba
5.39 m²
közlekedő
9.53 m²
lépcsőház
4.02 m²
fürdőszoba-wc
2.62 m²
gardrób
2.66 m²