Elérhető Otthon Start hitellel
Eladó újépítésű családi ház,
U0049414
Budapest XVIII. kerület, Kossuth Ferenc-telep
145 000 000 Ft
383 000 €
- 150m²
- 5 szoba
Új, 5 szobás ház XVIII. kerületben
A Kossuth Ferenc-telepen elhelyezkedő, kiváló állapotú ház 144 négyzetméteres alapterülettel és egy 500 négyzetméteres telken várja új tulajdonosát, aki akár saját otthonát, akár befektetési céllal keres ingatlant.
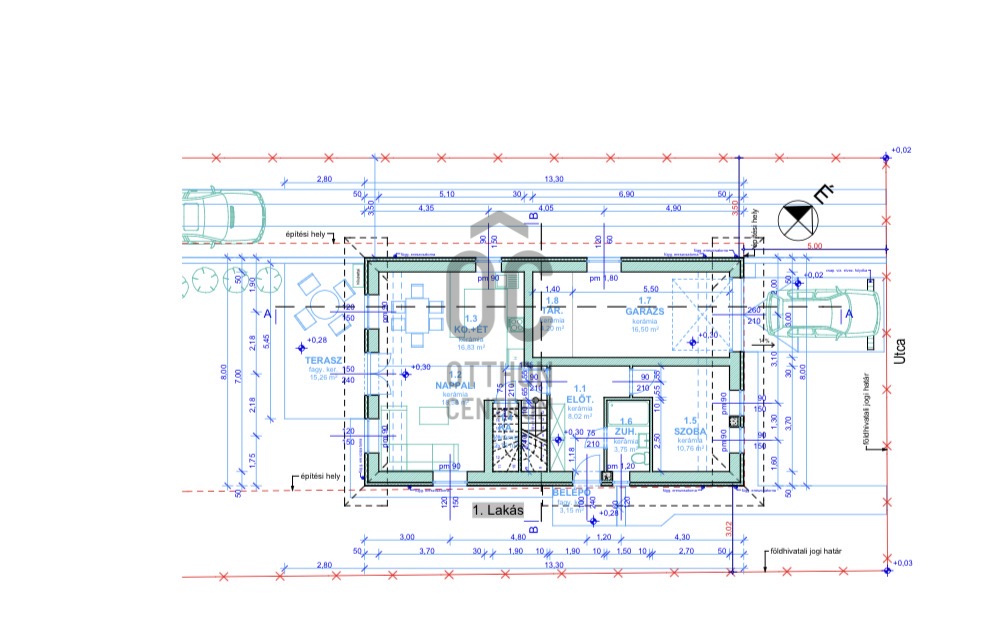
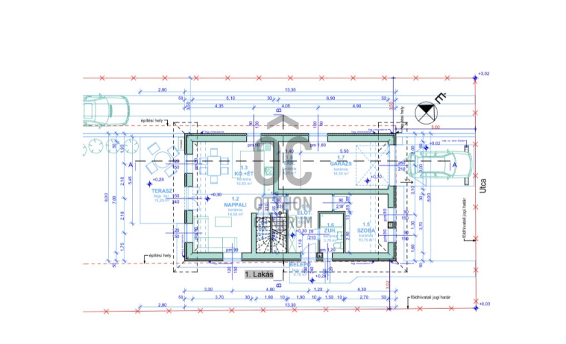
Alsó szint:1 szoba, zuhanyzó-wc ,nappali-konyha ,kamra
Felső szint:3 szoba, háztartási helység, fürdő-wc
Ez az impozáns, öt szobás ingatlan tágas tereivel és világos, napfényes helyiségeivel ideális választás családok számára.
A két fürdőszoba maximális kényelmet biztosít, így a reggeli készülődés sosem lesz többé stresszes.
A ház megújuló energiaforrással fűtött( hőszivattyú ,), amely nemcsak a környezetbarát megoldások iránti elkötelezettséget tükrözi, hanem a fenntartási költségek csökkentését is lehetővé teszi.
Műszaki tartalom:
-viablokk 37,5 tégla
-Homlokzat 10 cm (EPS)
-Hőszivattyú 12 W
-3 rétegű ablakok
-Padlás szigetelés 30 cm (Gyapot)
-szaniterek 400.000 Ft-ig választható
-hideg burkolatok 7500Ft-ig választható meleg burkolat 5500 ft-ig
-beltéri ajtók 100.000 ft /db
színes nyílászárók kívül ( fehér vagy antracit választható) , elektromos kiállások,
elektromos kiállások kérhetők a redőnyre
Referenciákkal a Kivitelező rendelkezik!
A környék csendes, biztonságos, és remek lehetőségeket kínál a szabadidő eltöltésére. A közeli parkok és zöld területek ideálisak a családi programokhoz, valamint a sportolásra vágyók számára. A közlekedési lehetőségek is kiválóak: a környéken több buszjárat és villamosmegálló található, amelyek gyors és kényelmes hozzáférést biztosítanak Budapest belvárosához. Az autóval közlekedők számára pedig az M5-ös autópálya közelsége jelent jelentős előnyt, hiszen az ország többi része is könnyen megközelíthető.
Az ingatlanpiac dinamikus, és mi itt vagyunk, hogy Ön a legjobb döntést hozhassa meg!
Alsó szint:1 szoba, zuhanyzó-wc ,nappali-konyha ,kamra
Felső szint:3 szoba, háztartási helység, fürdő-wc
Ez az impozáns, öt szobás ingatlan tágas tereivel és világos, napfényes helyiségeivel ideális választás családok számára.
A két fürdőszoba maximális kényelmet biztosít, így a reggeli készülődés sosem lesz többé stresszes.
A ház megújuló energiaforrással fűtött( hőszivattyú ,), amely nemcsak a környezetbarát megoldások iránti elkötelezettséget tükrözi, hanem a fenntartási költségek csökkentését is lehetővé teszi.
Műszaki tartalom:
-viablokk 37,5 tégla
-Homlokzat 10 cm (EPS)
-Hőszivattyú 12 W
-3 rétegű ablakok
-Padlás szigetelés 30 cm (Gyapot)
-szaniterek 400.000 Ft-ig választható
-hideg burkolatok 7500Ft-ig választható meleg burkolat 5500 ft-ig
-beltéri ajtók 100.000 ft /db
színes nyílászárók kívül ( fehér vagy antracit választható) , elektromos kiállások,
elektromos kiállások kérhetők a redőnyre
Referenciákkal a Kivitelező rendelkezik!
A környék csendes, biztonságos, és remek lehetőségeket kínál a szabadidő eltöltésére. A közeli parkok és zöld területek ideálisak a családi programokhoz, valamint a sportolásra vágyók számára. A közlekedési lehetőségek is kiválóak: a környéken több buszjárat és villamosmegálló található, amelyek gyors és kényelmes hozzáférést biztosítanak Budapest belvárosához. Az autóval közlekedők számára pedig az M5-ös autópálya közelsége jelent jelentős előnyt, hiszen az ország többi része is könnyen megközelíthető.
Az ingatlanpiac dinamikus, és mi itt vagyunk, hogy Ön a legjobb döntést hozhassa meg!
Regisztrációs szám
U0049414
Az ingatlan adatai
Értékesités
eladó
Jogi státusz
új
Jelleg
ház
Építési mód
ytong
Méret
150 m²
Bruttó méret
187 m²
Telek méret
337 m²
Terasz / erkély mérete
16 m²
Fűtés
megújuló
Belmagasság
265 cm
Lakáson belüli szintszám
1
Tájolás
Dél-kelet
Állapot
Kiváló
Homlokzat állapota
Kiváló
Környék
jó közlekedés, zöld
Építés éve
2026
Fürdőszobák száma
2
Garázs férőhely
1
Víz
Van
Gáz
Van
Villany
Van
Csatorna
Van
Helyiségek
konyha-étkező
17 m²
nappali
19 m²
terasz
15 m²
garázs
17 m²
szoba
11 m²
zuhanyzó
4 m²
előszoba
8 m²
kamra
2 m²
szoba
13 m²
fürdőszoba-wc
8 m²
gardrób
5 m²
szoba
14 m²
szoba
12 m²
háztartási helyiség
5 m²
közlekedő
10 m²