Elérhető Otthon Start hitellel
Eladó újépítésű ikerház, U0048755
Orfű

114 999 999 Ft

305 000 €

  • 120m²
  • 4 szoba

New, single-story semi-detached house in Orfű

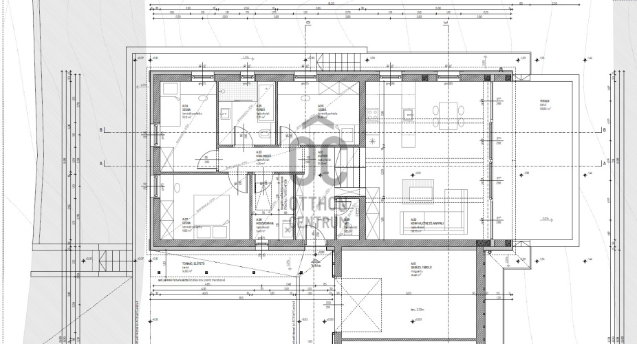
17 km from Pécs, in Orfű near the Kistó, there is a new semi-detached house of 120 square meters house is for sale. It features 3 rooms plus an American kitchen-dining-living area with a 29 m² terrace. A double garage is also situated on a 527 m² plot. The heating system consists of is gas boiler, radiators, and the house is technically suitable for the installation of special heat pump structure as well. The final flooring, sanitary and interior design of the property can be completed according to the preferences of the new owner. Asking Price: 115 million HUF.

Regisztrációs szám

U0048755

Az ingatlan adatai

Értékesités
eladó
Jogi státusz
új
Jelleg
ház
Építési mód
tégla
Méret
120 m²
Bruttó méret
135 m²
Telek méret
527 m²
Terasz / erkély mérete
29 m²
Fűtés
Gáz cirkó
Belmagasság
260 cm
Tájolás
Kelet
Panoráma
Zöldre néző panoráma
Állapot
Kiváló
Homlokzat állapota
Kiváló
Környék
csendes
Építés éve
2025
Fürdőszobák száma
2
Társaház kert
igen
Garázs
Benne van az árban
Garázs férőhely
2
Víz
Van
Gáz
Van
Villany
Van
Csatorna
Van
Tároló
Önálló
Vízpart távolsága
több mint 500 méterre

Helyiségek

előszoba
10.2 m²
wc
2 m²
közlekedő
9.24 m²
mosókonyha
5.46 m²
szoba
10.4 m²
fürdőszoba-wc
7.27 m²
szoba
10.1 m²
szoba
11.8 m²
konyha-étkező
39.76 m²
terasz
28.8 m²
garázs
24.4 m²
Mecseki Lászlóné - Éva
Mecseki Lászlóné - Éva

Hitelszakértő

Irodánk kínálatából - Pécs - Király utca

eladó panel lakás

Index image
Elérhető Otthon Start hitellel
15

eladó panel lakás

Index image
Elérhető Otthon Start hitellel
18

for sale family house

Index image
data_sheet.details.realestate.section.main.otthonstart_flag.label
27

eladó családi ház

Index image
Elérhető Otthon Start hitellel
21