155 000 000 Ft
399 000 €
- 169,5m²
- 6 szoba









AHOGY AZT ÖN MEGÁLMODTA! - ÚJÉPÍTÉSŰ 6 szobás ikerház Dunaharasztiban
Dunaharasztilegkedveltebb részén exkluzív ikerház várja leendő tulajdonosát!
Ismerje meg az érzést amikor egy ház ÖNNEK ÉPÜL!
Még mind a két fél szabad, szabadon választható!
- az ingatlan alapterülete: 203 m2
- 6 szoba - 3 fürdőszoba - 2 garázs (33 m2) - terasz (18m2) - kerti tároló
- hatalmas belső tér: nappali - konyha - étkező 37 m2!!!
- jelen szakaszban még változtatható elosztású belső tér és akár részleteiben újratervezhető ház!!!
Az ingatlan Porotherm Klíma 30 kerámia falazó elemből, 10 cm-es EPS külső hőszigeteléssel, 25 cm-es födémszigeteléssel, 3 rétegű műanyag nyílászárókkal + redőnnyel és szúnyoghálóval, betoncserép fedéssel épül. Burkolatok 6.000 Ft / m2 áron szabadon megválaszthatóak.
A fűtés hőszivattyús vagy egyéb igény esetén gáz cirkó (Bosch vagy Ariston kazán) rendszerrel megoldott, választhatóan radiátor / padlófűtés kialakítással.
A tágas nappali és az amerikaikonyha világos, sok ablakos és tökéletes helyszín a közös családi pillanatokhoz.
A klíma a nyári melegben biztosítja a kellemes hőmérsékletet, melyet telepített napelemes rendszer (3 kW) tud támogatni.
A garázs fűtött és elektromos kapunyitóval felszerelt.
A riasztó- és telekommunikációs rendszer előkészítése megtörténik.
Egy kert lehetőséget ad arra, hogy a szabadban tölthesse a szabadidejét, a gyerekek pedig biztonságos környezetben játszhatnak.
A kivitelező a városban számos referenciával rendelkezik, melyeket közösen meg is tudunk tekinteni!
Tervezett átadás: 2026. I negyedév
A környék ellátottsága kiváló, a kitűnő közlekedés lehetővé teszi, hogy akár a fővárosba is gyorsan bejusson, így a munkába járás sem jelent problémát.
A csendes utcák és a barátságos szomszédok ideális környezetet biztosítanak a családi élethez, míg a közeli iskolák, óvodák és boltok kényelmes mindennapi életet garantálnak.
Ez a tehermentes ingatlan CSOK és hitel kompatibilis.
Már 10% önerő befizetésével le tudja foglalni ezt a remek lehetőséget és így rögzítheti a vételárat, ezzel elkerülheti az ingatlanárak növekedését!
Kérdéseivel bizalommal fordulhat hozzánk, szívesen segítünk Önnek a legjobb döntés meghozatalában!
Az ingatlan piacon ritkán található ilyen különleges ajánlat, így érdemes mielőbb lépnie, hogy ne maradjon le erről a nagyszerű lehetőségről!
Ismerje meg az érzést amikor egy ház ÖNNEK ÉPÜL!
Még mind a két fél szabad, szabadon választható!
- az ingatlan alapterülete: 203 m2
- 6 szoba - 3 fürdőszoba - 2 garázs (33 m2) - terasz (18m2) - kerti tároló
- hatalmas belső tér: nappali - konyha - étkező 37 m2!!!
- jelen szakaszban még változtatható elosztású belső tér és akár részleteiben újratervezhető ház!!!
Az ingatlan Porotherm Klíma 30 kerámia falazó elemből, 10 cm-es EPS külső hőszigeteléssel, 25 cm-es födémszigeteléssel, 3 rétegű műanyag nyílászárókkal + redőnnyel és szúnyoghálóval, betoncserép fedéssel épül. Burkolatok 6.000 Ft / m2 áron szabadon megválaszthatóak.
A fűtés hőszivattyús vagy egyéb igény esetén gáz cirkó (Bosch vagy Ariston kazán) rendszerrel megoldott, választhatóan radiátor / padlófűtés kialakítással.
A tágas nappali és az amerikaikonyha világos, sok ablakos és tökéletes helyszín a közös családi pillanatokhoz.
A klíma a nyári melegben biztosítja a kellemes hőmérsékletet, melyet telepített napelemes rendszer (3 kW) tud támogatni.
A garázs fűtött és elektromos kapunyitóval felszerelt.
A riasztó- és telekommunikációs rendszer előkészítése megtörténik.
Egy kert lehetőséget ad arra, hogy a szabadban tölthesse a szabadidejét, a gyerekek pedig biztonságos környezetben játszhatnak.
A kivitelező a városban számos referenciával rendelkezik, melyeket közösen meg is tudunk tekinteni!
Tervezett átadás: 2026. I negyedév
A környék ellátottsága kiváló, a kitűnő közlekedés lehetővé teszi, hogy akár a fővárosba is gyorsan bejusson, így a munkába járás sem jelent problémát.
A csendes utcák és a barátságos szomszédok ideális környezetet biztosítanak a családi élethez, míg a közeli iskolák, óvodák és boltok kényelmes mindennapi életet garantálnak.
Ez a tehermentes ingatlan CSOK és hitel kompatibilis.
Már 10% önerő befizetésével le tudja foglalni ezt a remek lehetőséget és így rögzítheti a vételárat, ezzel elkerülheti az ingatlanárak növekedését!
Kérdéseivel bizalommal fordulhat hozzánk, szívesen segítünk Önnek a legjobb döntés meghozatalában!
Az ingatlan piacon ritkán található ilyen különleges ajánlat, így érdemes mielőbb lépnie, hogy ne maradjon le erről a nagyszerű lehetőségről!
Regisztrációs szám
U0048181
Az ingatlan adatai
Értékesités
eladó
Jogi státusz
új
Jelleg
ház
Építési mód
tégla
Méret
169,5 m²
Bruttó méret
203,1 m²
Telek méret
470 m²
Terasz / erkély mérete
18 m²
Fűtés
megújuló
Belmagasság
280 cm
Lakáson belüli szintszám
2
Tájolás
Dél
Panoráma
városi panoráma, Zöldre néző panoráma
Állapot
Kiváló
Homlokzat állapota
Kiváló
Környék
csendes, zöld
Építés éve
2025
Fürdőszobák száma
3
Garázs
Benne van az árban
Garázs férőhely
2
Víz
Van
Gáz
Van
Villany
Van
Csatorna
Van
Tároló
Önálló
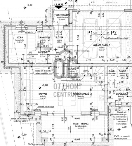
Helyiségek
előszoba
6.21 m²
gardrób
2.55 m²
fürdőszoba-wc
3.4 m²
szoba
10.08 m²
nappali-konyha
36.84 m²
lépcsőház
4.35 m²
közlekedő
2.2 m²
kamra
2.86 m²
kazánház
3.6 m²
garázs
33.55 m²
előszoba
2.69 m²
terasz
21.04 m²
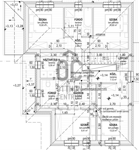
közlekedő
7.12 m²
közlekedő
2.4 m²
szoba
10.8 m²
fürdőszoba-wc
5 m²
szoba
10.8 m²
háztartási helyiség
5.06 m²
gardrób
5.04 m²
fürdőszoba-wc
5.88 m²
szoba
9.41 m²
szoba
13.23 m²

Horváth Eleonóra
Hitelszakértő