Elérhető Otthon Start hitellel
Eladó újépítésű családi ház,
U0048019
Kiskunlacháza
63 900 000 Ft
171 000 €
- 69m²
- 3 szoba
Ha egy új otthonra vágysz, ami nemcsak a modern életstílustokhoz illik, hanem ideális befektetési lehetőség is, érdemes megismerkedned ezzel az új építésű házzal Kiskunlacházán, Pest vármegyében.
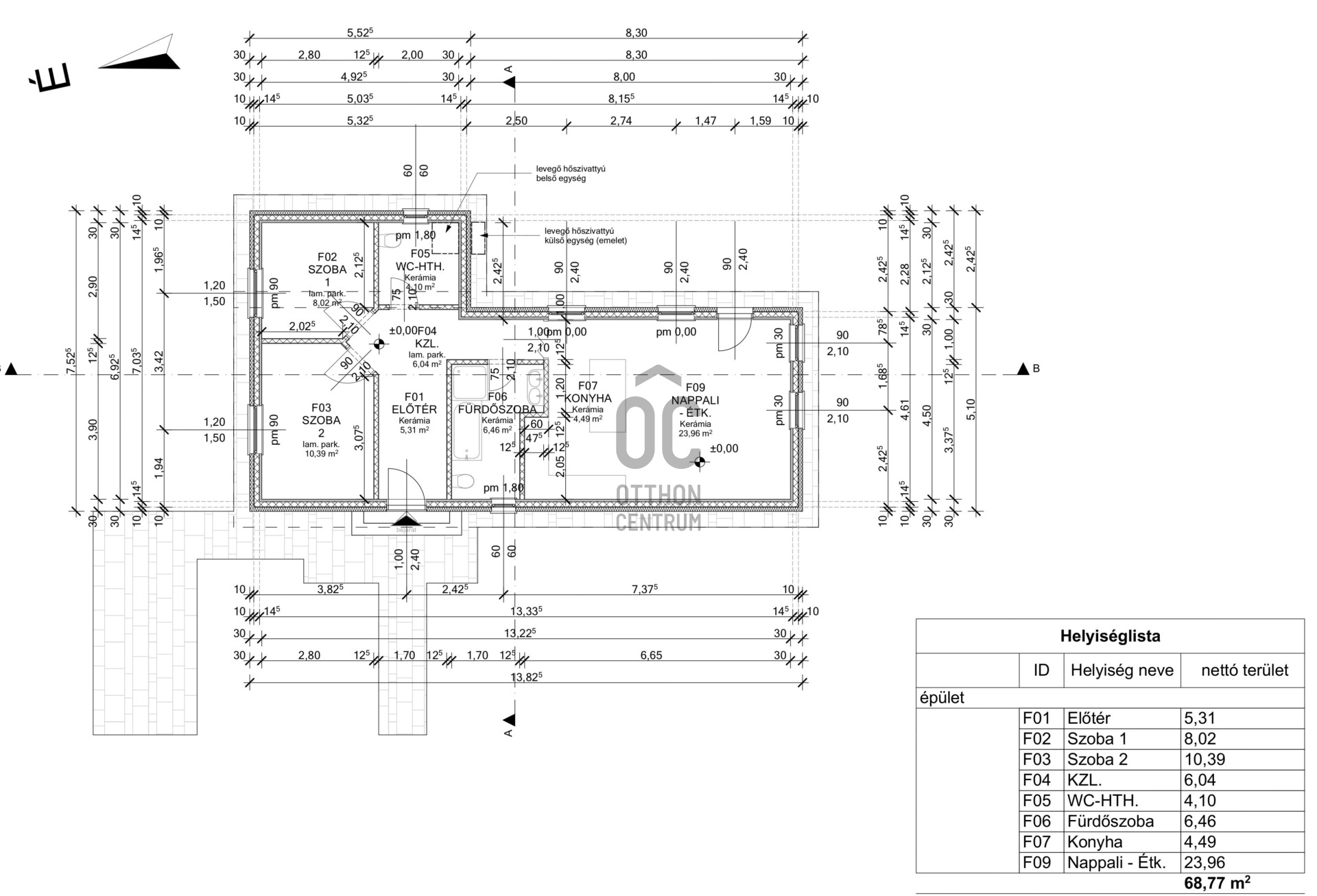
Ez a 69 m²-es ház három tágas szobával rendelkezik, amelyek elegendő teret biztosítanak a családtagoknak vagy akár a barátoknak is. A fürdőszoba tágas kialakítású, így a reggeli rutin nem jelent majd problémát. Az ingatlan hőszivattyús fűtése nemcsak környezetbarát, hanem költséghatékony megoldás is, amely segít csökkenteni a rezsiköltségeket. A telek mérete 368 m², ami elegendő helyet biztosít a szabadidős tevékenységekhez, kertészkedéshez vagy akár egy kis szabadtéri pihenéshez.
Az ingatlan csendes környéken helyezkedik el, ahol a nyugalom és a természet közelsége garantálja a kellemes, stresszmentes mindennapokat. A környék adottságai páratlanok. Kiskunlacháza zöldövezeti része ideális választás mindazok számára, akik a város zajától távol szeretnének élni, de mégis közel a fontosabb közlekedési lehetőségekhez. A település könnyen megközelíthető autóval, és a közeli buszmegállók révén a tömegközlekedés is kiváló. A közeli városok, mint Százhalombatta vagy Dabas, gyorsan elérhetőek, így a munkahelyek és a bevásárlási lehetőségek is a közelben vannak. A csendes környezet nemcsak a pihenésre alkalmas, hanem a helyi közösség is barátságos és összetartó. A környéken található üzletek, éttermek és iskolák mind hozzájárulnak ahhoz, hogy itt valóban otthon érezhessétek magatokat. A közeli parkok és zöld területek pedig remek lehetőséget kínálnak a szabadidős programokhoz, legyen szó futásról, kerékpározásról vagy egyszerű sétákról.
Ha felkeltette az érdeklődéseteket ez a kiváló ingatlan, hívj, ne maradj le róla !
Ez a 69 m²-es ház három tágas szobával rendelkezik, amelyek elegendő teret biztosítanak a családtagoknak vagy akár a barátoknak is. A fürdőszoba tágas kialakítású, így a reggeli rutin nem jelent majd problémát. Az ingatlan hőszivattyús fűtése nemcsak környezetbarát, hanem költséghatékony megoldás is, amely segít csökkenteni a rezsiköltségeket. A telek mérete 368 m², ami elegendő helyet biztosít a szabadidős tevékenységekhez, kertészkedéshez vagy akár egy kis szabadtéri pihenéshez.
Az ingatlan csendes környéken helyezkedik el, ahol a nyugalom és a természet közelsége garantálja a kellemes, stresszmentes mindennapokat. A környék adottságai páratlanok. Kiskunlacháza zöldövezeti része ideális választás mindazok számára, akik a város zajától távol szeretnének élni, de mégis közel a fontosabb közlekedési lehetőségekhez. A település könnyen megközelíthető autóval, és a közeli buszmegállók révén a tömegközlekedés is kiváló. A közeli városok, mint Százhalombatta vagy Dabas, gyorsan elérhetőek, így a munkahelyek és a bevásárlási lehetőségek is a közelben vannak. A csendes környezet nemcsak a pihenésre alkalmas, hanem a helyi közösség is barátságos és összetartó. A környéken található üzletek, éttermek és iskolák mind hozzájárulnak ahhoz, hogy itt valóban otthon érezhessétek magatokat. A közeli parkok és zöld területek pedig remek lehetőséget kínálnak a szabadidős programokhoz, legyen szó futásról, kerékpározásról vagy egyszerű sétákról.
Ha felkeltette az érdeklődéseteket ez a kiváló ingatlan, hívj, ne maradj le róla !
Regisztrációs szám
U0048019
Az ingatlan adatai
Értékesités
eladó
Jogi státusz
új
Jelleg
ház
Építési mód
prokoncept
Méret
69 m²
Bruttó méret
69 m²
Telek méret
368 m²
Fűtés
hőszivattyú
Belmagasság
275 cm
Lakáson belüli szintszám
1
Tájolás
Dél-kelet
Állapot
Kiváló
Homlokzat állapota
Kiváló
Építés éve
2025
Fürdőszobák száma
1
Víz
Van
Gáz
Utcán
Villany
Van
Csatorna
Van
Helyiségek
nappali-konyha
1 m²
szoba
1 m²
szoba
1 m²
fürdőszoba
1 m²
Torday Tibor
Hitelszakértő