Elérhető Otthon Start hitellel
Eladó újépítésű családi ház, U0044056
Veresegyház, Széchenyi-domb

145 500 000 Ft

374 000 €

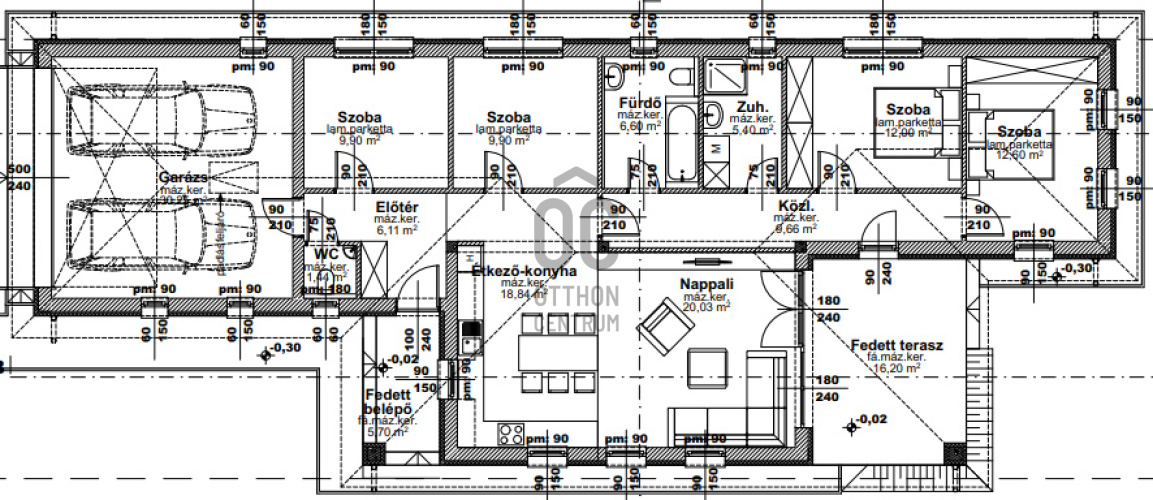
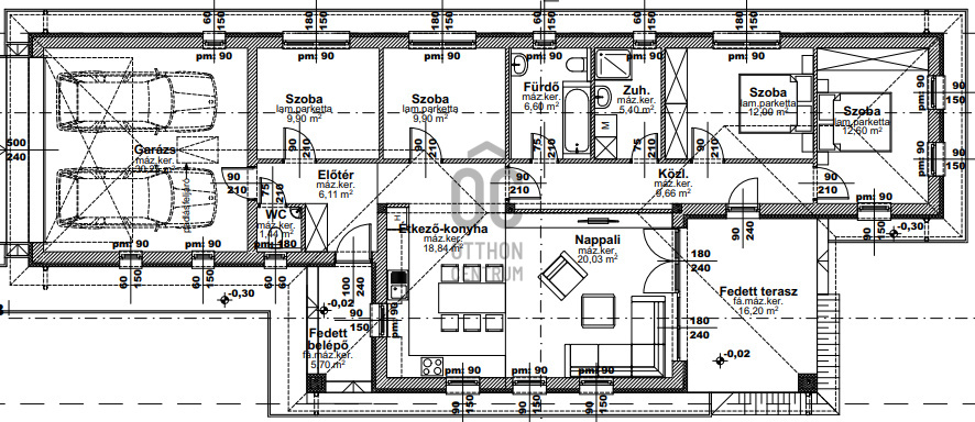
  • 112m²
  • 5 szoba

GARÁZSOS CSALÁDI HÁZ ELADÓ!

Veresegyház egyik legszebb részén, Széchenyidombon eladó újonnan épülő FÖLDSZINTES CSALÁDI HÁZ, DUPLA GARÁZZSAL.
Több családi ház kivitelezése folyamatban van egymás mellett.
Tervezési fázisban vannak, tehát még az ön igényeire tudjuk szabni.

JELLEMZŐK ÉS EXTRÁK:

- Hőszivattyús Fűtés rendszer
- Padlófűtés mindenhol
- Napelem előkészítés
- H tarifa 1x32 A
- 3x20 A nappali áram
- EÜ Gerendás födém, tehát pakolható padlástér
- Két fürdőszoba
- 3 rétegű, 6 légkamrás műanyag ablakok
- Motoros kapu előkészítés
- Riasztó előkészítés
- Kaputelefon kiállás
- Fedett terasz
és még sok extra...

Az ingatlanokat már 10% önerővel le lehet foglalózni!
Átadás: 2024.

Magas referenciával és nagy szakmai múlttal rendelkező cég.
Hitel, csok, bármely támogatás igényelhető díjmentesen.

Regisztrációs szám

U0044056

Az ingatlan adatai

Értékesités
eladó
Jogi státusz
új
Jelleg
ház
Építési mód
tégla
Méret
112 m²
Bruttó méret
148 m²
Telek méret
830 m²
Terasz / erkély mérete
16,2 m²
Fűtés
hőszivattyú
Belmagasság
270 cm
Tájolás
Kelet
Állapot
Kiváló
Homlokzat állapota
Kiváló
Környék
csendes, jó közlekedés, zöld
Építés éve
2024
Fürdőszobák száma
2
Garázs
Benne van az árban
Garázs férőhely
2
Víz
Van
Gáz
Utcán
Villany
Van
Csatorna
Van

Helyiségek

előszoba
6.11 m²
közlekedő
9.66 m²
nappali-konyha
38.84 m²
terasz
16.2 m²
szoba
9.9 m²
szoba
9.9 m²
szoba
12 m²
szoba
12.6 m²
fürdőszoba-wc
6.6 m²
fürdőszoba
5.4 m²
wc-kézmosó
1.44 m²
garázs
30.25 m²
Víg Attila
Víg Attila

Hitelszakértő

Irodánk kínálatából - Dunakeszi

for sale semi-detached house

Index image
54

for sale panel apartment

Index image
data_sheet.details.realestate.section.main.otthonstart_flag.label
27

for sale family house

Index image
data_sheet.details.realestate.section.main.otthonstart_flag.label
15

for sale semi-detached house

Index image
data_sheet.details.realestate.section.main.otthonstart_flag.label
52

for sale commercial property

Index image
17

for sale family house

Index image
data_sheet.details.realestate.section.main.otthonstart_flag.label
26

for rent family house

Index image
33

for sale family house

Index image
data_sheet.details.realestate.section.main.otthonstart_flag.label
25