200 000 000 Ft
515 000 €
- 136m²
- 5 szoba
- földszint






















2 lakásos új építésű ház medencével
2 új építésű, korszerű energetikai ellátású, kertes lakás várja tulajdonosait egy önálló családi házban. Lehetőség van a kettő együttes megvásárlására, illetve külön - külön is megvehetőek. A földszinti 84 m2-es lakás nappali +2 hálószobás, az emeleti 69 m2-es nappali + 1 hálószobás. Külön kazánokkal és önálló mérőórákkal lesznek ellátva, elektromos padlófűtés biztosítja a komfortos belső hőmérsékletet. Közös bejáraton keresztül lehet megközelíteni a lépcsőházat, innen lehet lejutni a pincébe, ahova a kazánok kerülnek, valamint tárolásra alkalmas területek és garázs áll rendelkezésre. A földszinti lakáshoz medence szerepel a tervekben, a pince használati megosztása külön értékesítés esetén az első vevő választási opciója, mint pl. a garázs lehetősége. A telek hátsó része füvesítés, parkosítás után kínál teret a szabadban pihenésnek, kikapcsolódásnak.
Regisztrációs szám
U0043208
Az ingatlan adatai
Értékesités
eladó
Jogi státusz
új
Jelleg
ház
Építési mód
tégla
Méret
136 m²
Bruttó méret
222 m²
Telek méret
791 m²
Fűtés
elektromos cirkó
Belmagasság
280 cm
Lakáson belüli szintszám
1
Tájolás
Dél
Panoráma
városi panoráma, Zöldre néző panoráma
Lépcsőház típusa
zárt lépcsőház
Állapot
Kiváló
Homlokzat állapota
Kiváló
Lépcsőház állapota
Kiváló
Pince
Közös
Környék
jó közlekedés, zöld
Építés éve
2022
Fürdőszobák száma
2
Fekvés
utcai
Garázs
Külön vásárolható
Garázs férőhely
1
Víz
Van
Villany
Van
Csatorna
Van
Tároló
Önálló
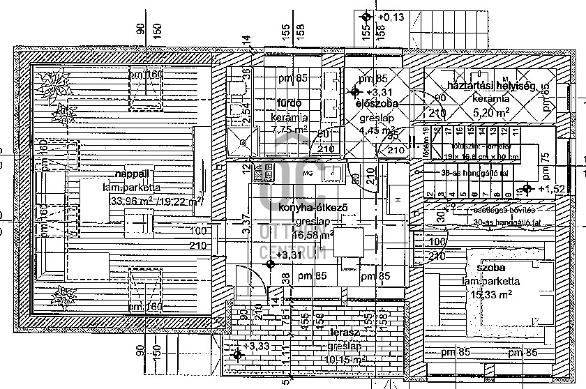
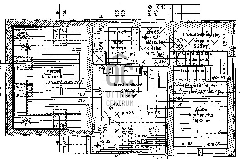
Helyiségek
előszoba
2.06 m²
előszoba
4.49 m²
tároló
5.2 m²
nappali
16.66 m²
wc
1.32 m²
konyha-étkező
18.54 m²
szoba
15.33 m²
szoba
15.46 m²
fürdőszoba
5.03 m²
terasz
14.23 m²
terasz
6.25 m²
lépcsőház
7.52 m²
előszoba
4.45 m²
fürdőszoba-wc
7.75 m²
szoba
15.33 m²
nappali
19.22 m²
háztartási helyiség
5.2 m²
konyha-étkező
16.58 m²
terasz
10.15 m²

Torday Tibor
Hitelszakértő