Elérhető Otthon Start hitellel
Eladó újépítésű családi ház,
U0042031
Hajdúszoboszló
129 000 000 Ft
332 000 €
- 420m²
- 13 szoba










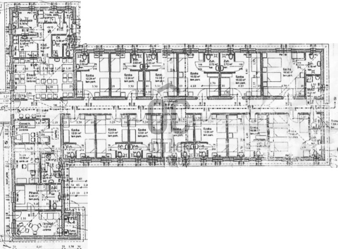
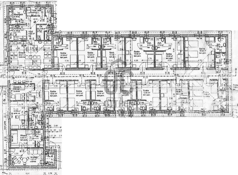
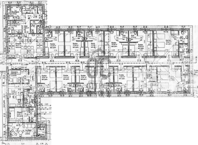
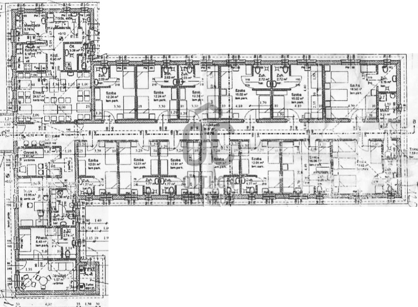
Most kialakuló lakóparkban 420 nm-es 13 apartmanos épülő ingatlan eladó
Épülő lakóparkban eredetileg idősek otthonának tervezett 420 nm-es most épülő ingatlan 1400 nm-es telken eladó.
Az épület kiválóan hasznosítható panziónak, apartman háznak, de akár 6 - 8 lakásos társaházzá is alakítható.
jelenlegi állapot:
- 13 apartman, (szoba + fürdőszoba)
- kiszolgáló helyiségek, konyha, étkező, társalkodó, stb, mely még bármi más funkcióra is átalakítható
- villamos hálózat kiépítve
- víz és fűtés csövek részben kiépítve
- belső vakolt falak
- kűlső műanyag nyílászárók, fa beltéri ajtók
- külső szigetelés 80%-ban befejezve
- lindab lemeztető
- összes közmű bekötve
Az épület mostani formájában még sokcélú hasznosítási tevékenységgel fejezhető be, elhelyezkedése miatt rendkívűl jó befektetési lehetőség,
Az épület kiválóan hasznosítható panziónak, apartman háznak, de akár 6 - 8 lakásos társaházzá is alakítható.
jelenlegi állapot:
- 13 apartman, (szoba + fürdőszoba)
- kiszolgáló helyiségek, konyha, étkező, társalkodó, stb, mely még bármi más funkcióra is átalakítható
- villamos hálózat kiépítve
- víz és fűtés csövek részben kiépítve
- belső vakolt falak
- kűlső műanyag nyílászárók, fa beltéri ajtók
- külső szigetelés 80%-ban befejezve
- lindab lemeztető
- összes közmű bekötve
Az épület mostani formájában még sokcélú hasznosítási tevékenységgel fejezhető be, elhelyezkedése miatt rendkívűl jó befektetési lehetőség,
Regisztrációs szám
U0042031
Az ingatlan adatai
Értékesités
eladó
Jogi státusz
új
Jelleg
ház
Építési mód
tégla
Méret
420 m²
Bruttó méret
450 m²
Telek méret
1 420 m²
Fűtés
Gáz cirkó
Belmagasság
340 cm
Tájolás
Dél
Állapot
Kiváló
Homlokzat állapota
Kiváló
Környék
csendes
Építés éve
2021
Fürdőszobák száma
1
Víz
Van
Gáz
Van
Villany
Van
Csatorna
Van
Tároló
Önálló
Helyiségek
szoba
12 m²
szoba
12 m²
szoba
12 m²
szoba
12 m²
szoba
12 m²
szoba
12 m²
szoba
12 m²
szoba
12 m²
szoba
16 m²
szoba
16 m²
szoba
16 m²
szoba
17 m²
szoba
17 m²
fürdőszoba
2 m²

Plébán László
Hitelszakértő