Elérhető Otthon Start hitellel
Eladó újépítésű ikerház, P4800-1-0A-NA-002
Bocskaikert,

100 000 000 Ft

264 000 €

  • 126m²
  • 4 szoba

ÚJ ÉPÍTÉSŰ IKERHÁZAK BOCSKAIKERT KÖZPONTI RÉSZÉN

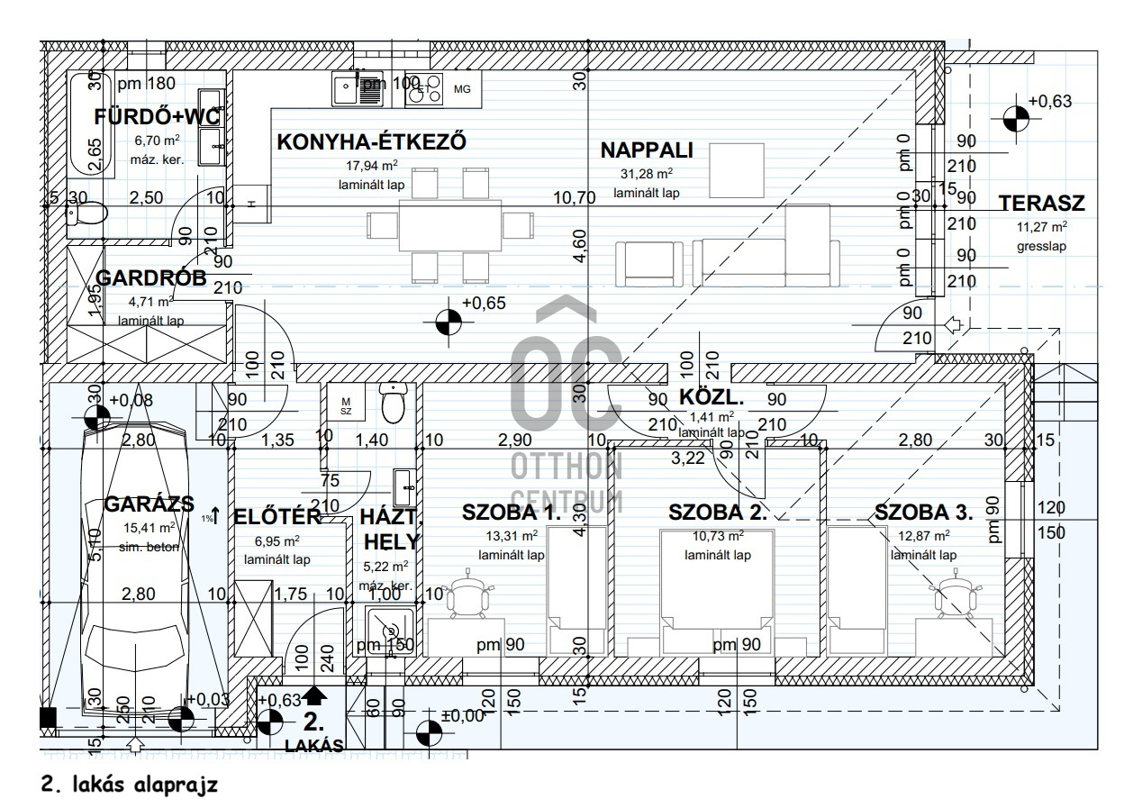
2. lakás Br.132 nm egy szinten, nagy telekhányaddal:

- amerikaikonyhás nappali (49 nm) teraszkapcsolattal
- 3 hálószoba (13,11,13 nm)
- 2 fürdőszoba (kád és tusoló kialakítással)
- gardrób (5 nm)
- garázs (15 nm)
- kertkapcsolat (660 nm).

Regisztrációs szám

P4800-1-0A-NA-002

Az ingatlan adatai

Értékesités
eladó
Jogi státusz
új
Jelleg
ház
Építési mód
tégla
Méret
126 m²
Bruttó méret
132 m²
Telek méret
1 000 m²
Terasz / erkély mérete
12 m²
Fűtés
hőszivattyú
Belmagasság
260 cm
Tájolás
Észak-kelet
Állapot
Kiváló
Homlokzat állapota
Kiváló
Környék
csendes, jó közlekedés, központi
Építés éve
2027
Fürdőszobák száma
2
Garázs
Benne van az árban
Garázs férőhely
1
Víz
Van
Villany
Van
Csatorna
Van

Helyiségek

konyha-étkező
18 m²
nappali
31 m²
hálószoba
13 m²
hálószoba
11 m²
hálószoba
13 m²
fürdőszoba-wc
7 m²
gardrób
5 m²
fürdőszoba-wc
5 m²
garázs
15 m²
terasz
11 m²
Czellér András
Czellér András

Hitelszakértő

Irodánk kínálatából - Debrecen - Kálvin tér

kiadó családi ház

Index image
20

kiadó lakás

Index image
6

eladó lakás

Index image
Elérhető Otthon Start hitellel
7

eladó családi ház

Index image
Elérhető Otthon Start hitellel
18