Elérhető Otthon Start hitellel
Eladó újépítésű ikerház, P4800-1-0A-NA-001
Bocskaikert,

83 000 000 Ft

219 000 €

  • 116m²
  • 4 szoba

ÚJ ÉPÍTÉSŰ IKERHÁZAK BOCSKAIKERT KÖZPONTI RÉSZÉN

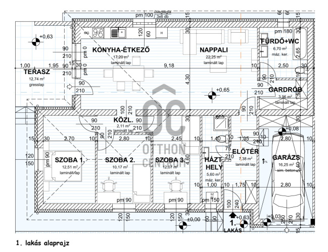
1. lakás Br.122 nm egy szinten utcafronti elhelyezkedéssel:

- amerikaikonyhás nappali (40 nm) teraszkapcsolattal
- 3 hálószoba (13,12,10 nm)
- 2 fürdőszoba (kád és tusoló kialakítással)
- gardrób (4 nm)
- garázs (16 nm)
- kertkapcsolat (270 nm).

Regisztrációs szám

P4800-1-0A-NA-001

Az ingatlan adatai

Értékesités
eladó
Jogi státusz
új
Jelleg
ház
Építési mód
tégla
Méret
116 m²
Bruttó méret
122 m²
Telek méret
1 000 m²
Terasz / erkély mérete
13 m²
Fűtés
hőszivattyú
Belmagasság
270 cm
Tájolás
Dél
Állapot
Kiváló
Homlokzat állapota
Kiváló
Környék
csendes, jó közlekedés, központi
Építés éve
2026
Fürdőszobák száma
2
Garázs
Benne van az árban
Garázs férőhely
1
Víz
Van
Villany
Van
Csatorna
Van

Helyiségek

konyha-étkező
17 m²
nappali
22 m²
fürdőszoba-wc
7 m²
gardrób
4 m²
hálószoba
12 m²
hálószoba
10 m²
hálószoba
13 m²
közlekedő
2 m²
fürdőszoba-wc
6 m²
előszoba
7 m²
garázs
16 m²
terasz
13 m²
Czellér András
Czellér András

Hitelszakértő

Irodánk kínálatából - Debrecen - Kálvin tér

kiadó családi ház

Index image
20

kiadó lakás

Index image
6

eladó lakás

Index image
Elérhető Otthon Start hitellel
7

eladó családi ház

Index image
Elérhető Otthon Start hitellel
18