Eladó újépítésű lakás, P4786-1-01-04-001
Budapest XIII. kerület, Angyalföld

79 600 000 Ft

205 000 €

  • 41,7m²
  • 2 szoba
  • 4. emelet

Regisztrációs szám

P4786-1-01-04-001

Az ingatlan adatai

Értékesités
eladó
Jogi státusz
új
Jelleg
lakás
Építési mód
tégla
Méret
41,7 m²
Bruttó méret
42 m²
Terasz / erkély mérete
4,8 m²
Fűtés
hőszivattyú
Belmagasság
270 cm
Tájolás
Nyugat
Lépcsőház típusa
zárt lépcsőház
Állapot
Kiváló
Homlokzat állapota
Kiváló
Lépcsőház állapota
Kiváló
Környék
csendes, jó közlekedés, zöld, központi
Építés éve
2027
Fürdőszobák száma
1
Fekvés
utcai
Garázs
Kötelezően vásárolandó
Víz
Van
Villany
Van
Csatorna
Van
Lift
van
Tároló
Kötelezően vásárolandó

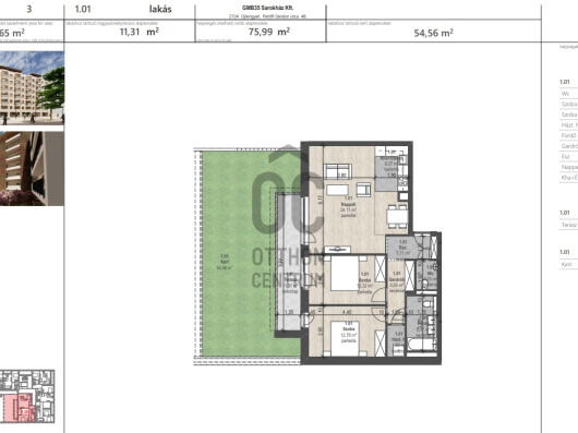
Helyiségek

nappali
16.49 m²
konyha-étkező
5.43 m²
hálószoba
11.33 m²
fürdőszoba-wc
4.37 m²
előszoba
3.84 m²
erkély
4.86 m²
Németh István
Németh István

Hitelszakértő

Irodánk kínálatából - XIII. kerület - Dagály Residence

for sale apartment

Index image
15

for sale apartment

Index image
8

for sale family house

Index image
data_sheet.details.realestate.section.main.otthonstart_flag.label
12

for sale apartment

Index image
data_sheet.details.realestate.section.main.otthonstart_flag.label
15