Elérhető Otthon Start hitellel
Eladó újépítésű ikerház, P4755-1-0A-NA-004
Debrecen, Vargakert

137 465 000 Ft

363 000 €

  • 137m²
  • 5 szoba

3 MILLIÓ Ft AJÁNDÉK IKEA UTALVÁNY – csak az utolsó 3 LAKÁSRA!

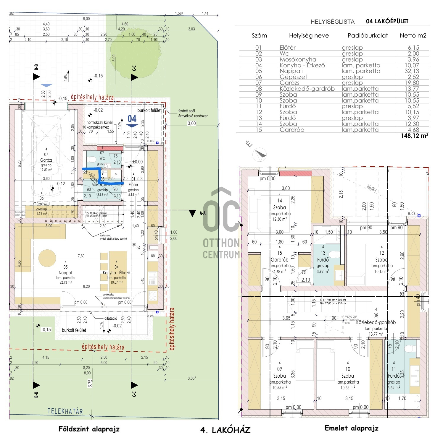
4. lakóház Br. 155 nm, nappali + 4 hálós:

Földszint:
- amerikaikonyhás nappali étkezővel (42 nm), teraszkapcsolattal
- mosókonyha (4 nm)
- vendég WC
- garázs gépészettel (22 nm)
- kertkapcsolat (160 nm)

Emelet:
- szülői háló gardróbbal és fürdőszobával (21 nm)
- 3 hálószoba ( 10, 11, 11 nm)
- fürdőszoba (6 nm)
- közlekedő gardróbbal (14 nm)

Regisztrációs szám

P4755-1-0A-NA-004

Az ingatlan adatai

Értékesités
eladó
Jogi státusz
új
Jelleg
ház
Építési mód
tégla
Méret
137 m²
Bruttó méret
155 m²
Telek méret
480 m²
Terasz / erkély mérete
7 m²
Fűtés
hőszivattyú
Belmagasság
260 cm
Lakáson belüli szintszám
1
Tájolás
Dél-nyugat
Állapot
Kiváló
Homlokzat állapota
Kiváló
Környék
csendes, jó közlekedés
Építés éve
2026
Fürdőszobák száma
2
Társaház kert
igen
Garázs
Benne van az árban
Garázs férőhely
1
Víz
Van
Gáz
Van
Villany
Van
Csatorna
Van
Tároló
Önálló

Helyiségek

nappali
32 m²
konyha-étkező
10 m²
mosókonyha
4 m²
wc-kézmosó
2 m²
előszoba
6 m²
garázs
20 m²
egyéb helyiség
2 m²
terasz
7 m²
szoba
11 m²
szoba
11 m²
szoba
10 m²
fürdőszoba-wc
6 m²
hálószoba
12 m²
gardrób
5 m²
fürdőszoba-wc
4 m²
közlekedő
14 m²
Czellér András
Czellér András

Hitelszakértő

Irodánk kínálatából - Debrecen - Kálvin tér

for rent family house

Index image
20

for rent apartment

Index image
6

for sale apartment

Index image
data_sheet.details.realestate.section.main.otthonstart_flag.label
7

for sale family house

Index image
data_sheet.details.realestate.section.main.otthonstart_flag.label
18