Elérhető Otthon Start hitellel
Eladó újépítésű lakás,
P4736-1-01-01-006
Debrecen, Postakert
78 995 000 Ft
204 000 €
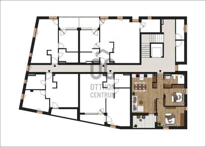
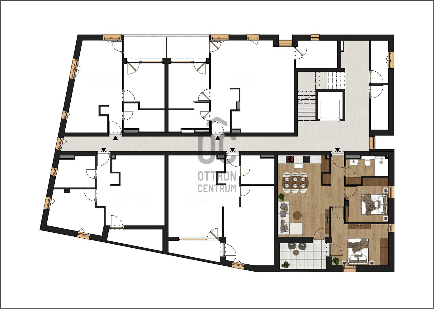
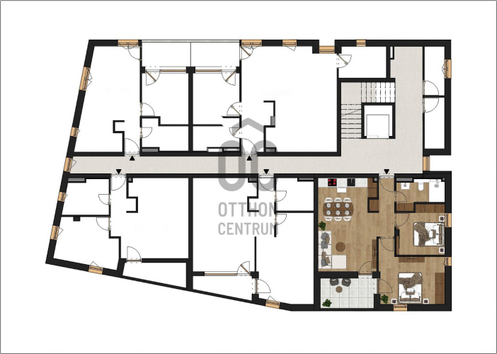
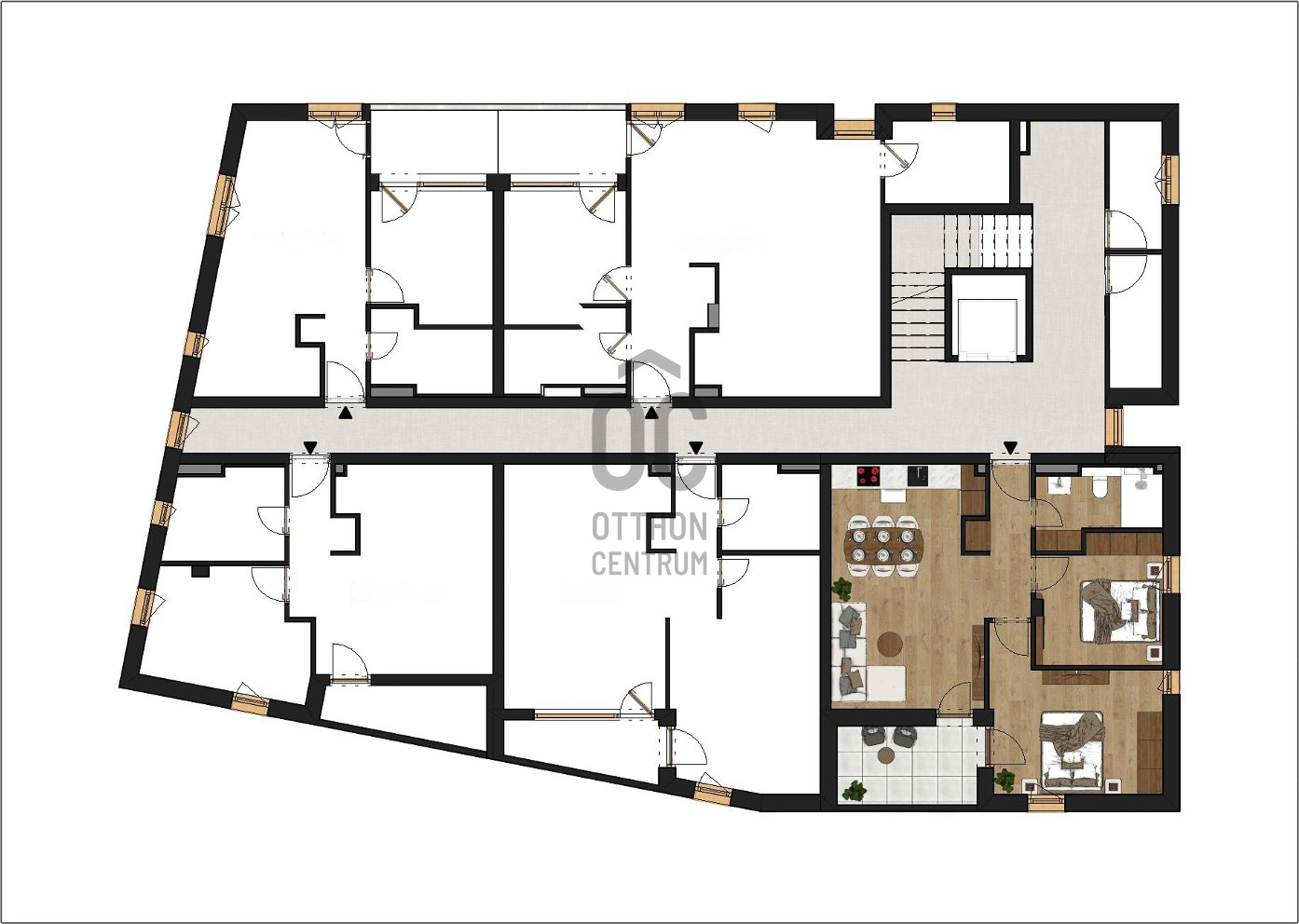
- 53,5m²
- 3 szoba
- 1. emelet








Belváros közeli prémium lakások a Postakertben
Debrecen frekventált városrészében, a Postakertben új építésű, 37-75 nm-es prémium lakások eladók. A 17 lakásos, liftes, 3 emeletes épületben a privát kertkapcsolatos lakásoktól a penthousig mindent megtalál.
Ez az 1. emeleti lakás 53,35 nm-es, nappali-étkező-konyha +2 szobás, 6,56 nm-es loggiával.
Jellemzők:
-Kulcsrakész, precíz kivitelezés, magas színvonalú burkolatokkal és szaniterekkel
-Hőszivattyús fűtési rendszer padlófűtéssel, hőszivattyús klímák
- Modern hőközpont, lakásokban egyedi rádiós almérőkkel
-3 rétegű műanyag nyílászárók a kiváló hő- és hangszigetelés érdekében
-Extra hőmegtartó képességű innovatív, Porotherm X-therm tégla falazat, grafitos homlokzati hőszigeteléssel
-Személyfelvonó
-Zárt lépcsőház, modern homlokzat
-Kiváló energetikai besorolás, alacsony fenntartási költségek
-Riasztórendszer előkészítés
-Rejtett redőnytok elektromos kiállással
-Tágas, világos belső terek prémium nyílászárókkal
-Teremgarázs beállók, tárolók
-Lift közvetlen eléréssel a parkoló szintről
Iskola, óvoda,tömegközlekedési lehetőségek a közelben, a belváros gyalogosan is megközelíthető. Autópálya felhajtó, bevásárló központok 3 perc autóútra vannak.
Ideális választás családoknak, pároknak vagy befektetőknek. Ha új építésű, energiatakarékos, kulcsrakész otthonra vágyik zöld környezetben, ne hagyja ki ezt a lehetőséget!
Ez az 1. emeleti lakás 53,35 nm-es, nappali-étkező-konyha +2 szobás, 6,56 nm-es loggiával.
Jellemzők:
-Kulcsrakész, precíz kivitelezés, magas színvonalú burkolatokkal és szaniterekkel
-Hőszivattyús fűtési rendszer padlófűtéssel, hőszivattyús klímák
- Modern hőközpont, lakásokban egyedi rádiós almérőkkel
-3 rétegű műanyag nyílászárók a kiváló hő- és hangszigetelés érdekében
-Extra hőmegtartó képességű innovatív, Porotherm X-therm tégla falazat, grafitos homlokzati hőszigeteléssel
-Személyfelvonó
-Zárt lépcsőház, modern homlokzat
-Kiváló energetikai besorolás, alacsony fenntartási költségek
-Riasztórendszer előkészítés
-Rejtett redőnytok elektromos kiállással
-Tágas, világos belső terek prémium nyílászárókkal
-Teremgarázs beállók, tárolók
-Lift közvetlen eléréssel a parkoló szintről
Iskola, óvoda,tömegközlekedési lehetőségek a közelben, a belváros gyalogosan is megközelíthető. Autópálya felhajtó, bevásárló központok 3 perc autóútra vannak.
Ideális választás családoknak, pároknak vagy befektetőknek. Ha új építésű, energiatakarékos, kulcsrakész otthonra vágyik zöld környezetben, ne hagyja ki ezt a lehetőséget!
Regisztrációs szám
P4736-1-01-01-006
Az ingatlan adatai
Értékesités
eladó
Jogi státusz
új
Jelleg
lakás
Építési mód
tégla
Méret
53,5 m²
Bruttó méret
60 m²
Terasz / erkély mérete
6,5 m²
Fűtés
hőszivattyú
Belmagasság
260 cm
Tájolás
Dél-kelet
Lépcsőház típusa
zárt lépcsőház
Állapot
Kiváló
Homlokzat állapota
Kiváló
Lépcsőház állapota
Kiváló
Környék
csendes, zöld, központi
Építés éve
2025
Fürdőszobák száma
1
Fekvés
kertre néző
Garázs
Külön vásárolható
Víz
Van
Villany
Van
Csatorna
Van
Lift
van
Helyiségek
nappali
7.55 m²
konyha-étkező
15.69 m²
szoba
13.61 m²
szoba
9.03 m²

Czellér András
Hitelszakértő