215,000,000 Ft
601,000 €
- 255m²
Debrecen Gáspár György kert: Tökéletes üzleti lehetőség vár Önre!
Debrecen egyik fejlődő ipari részén a Gáspár György kertben eladó 26710 nm-es iparivá minősíthető terület.
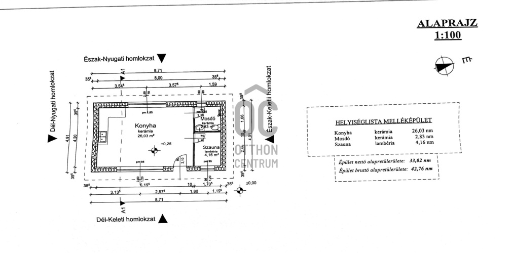
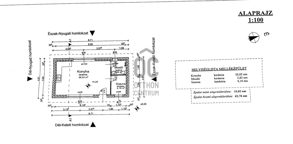
Jellemzők:
- 175 nm-es szerkezetkész csarnok,
- 35 nm-es iroda,
- 45 nm-es műhely/garázs,
- ipari áram 3X32A,
- vezetékes víz,
- fúrott kút,
- a telek előtt internet optikai kábel,
- 53 méteres utcafronttal.
Jelenleg egy félbe maradt építéssel együtt eladó, aminek már a befejezése az új tulajdonos feladata lesz.
Az ingatlanról teljes körű videó felvétel készült, a megtekintése érdekében weboldalunkon keresse a UZ019362 regisztrációs számon vagy keressen telefonon közvetlenül.
Kedves Üzleti Vállalkozók! Ha Önöknek is fontos, hogy cégük számára a legjobb helyszínt találják meg, akkor figyelmükbe ajánljuk ezt a fantasztikus ingatlant, amely ideális lehetőséget kínál üzleti célú hasznosításra. A környék kiváló adottságokkal rendelkezik, és a közlekedési lehetőségek is kiválóak.
Bármilyen kérdésre szívesen válaszolok, keressen nyugodtan!
Ez az ingatlan a “Felezőcsomag” megbízási portfólióhoz tartozik. A részletek az Otthon Centrum weboldalán olvashatja.
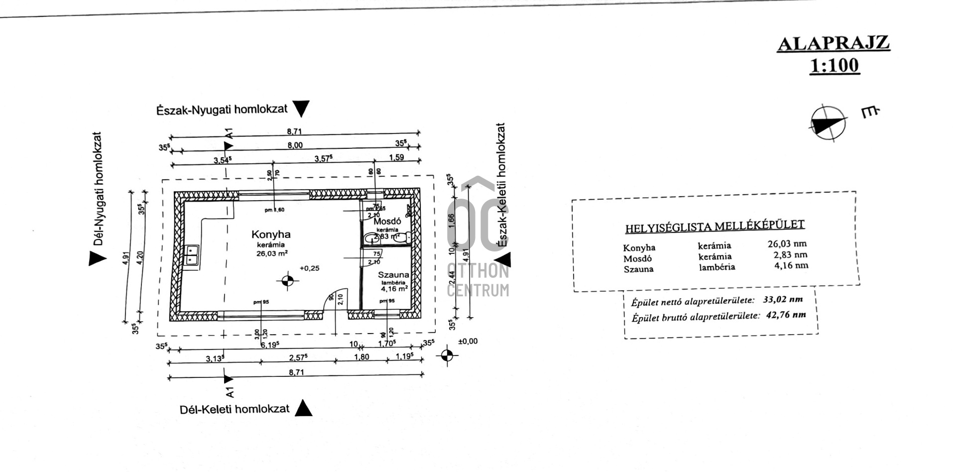
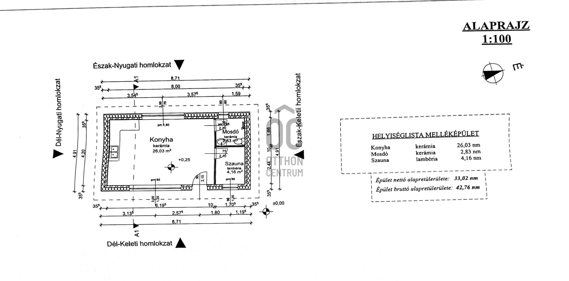
Jellemzők:
- 175 nm-es szerkezetkész csarnok,
- 35 nm-es iroda,
- 45 nm-es műhely/garázs,
- ipari áram 3X32A,
- vezetékes víz,
- fúrott kút,
- a telek előtt internet optikai kábel,
- 53 méteres utcafronttal.
Jelenleg egy félbe maradt építéssel együtt eladó, aminek már a befejezése az új tulajdonos feladata lesz.
Az ingatlanról teljes körű videó felvétel készült, a megtekintése érdekében weboldalunkon keresse a UZ019362 regisztrációs számon vagy keressen telefonon közvetlenül.
Kedves Üzleti Vállalkozók! Ha Önöknek is fontos, hogy cégük számára a legjobb helyszínt találják meg, akkor figyelmükbe ajánljuk ezt a fantasztikus ingatlant, amely ideális lehetőséget kínál üzleti célú hasznosításra. A környék kiváló adottságokkal rendelkezik, és a közlekedési lehetőségek is kiválóak.
Bármilyen kérdésre szívesen válaszolok, keressen nyugodtan!
Ez az ingatlan a “Felezőcsomag” megbízási portfólióhoz tartozik. A részletek az Otthon Centrum weboldalán olvashatja.
Registration Number
UZ019362
Property Details
Sales
for sale
Legal Status
used
Character
commercial
Type of Business Property
entire building
Construction Method
other
Net Size
255 m²
Plot Size
26,710 m²
Above-Ground Net Size
255 m²
Ceiling Height
270 cm
View
Other
Condition
Excellent
Condition of Facade
Excellent
Year of Construction
2025
Water
Available
Gas
On the street
Electricity
Available
Possible Functions
office, office and showroom or shop, office and warehouse, showroom and service or warehouse, industrial hall or warehouse, logistics center
Visibility
Located on a side street
Accessibility
Accessible without permit for trucks over 12 tons
Utilization
vacant
Czellér András
Credit Expert