167 000 000 Ft
438 000 €
- 114m²
- 5 szoba
PILISBOROSJENŐN ÚJ ÉPÍTÉSŰ CSALÁDI HÁZAK ELADÓK!
A telek Pilisborosjenőn csodálatos környezetben, a pilisi Nagy-Kevély lábánál fekszik, melyről gyönyörű panoráma tárul elénk a környező hegyekre, településekre, este a Parlament látványa is lenyűgöző.
A házak magas műszaki tartalommal, energiahatékony megoldásokkal és prémium minőségű anyagokkal kerülnek kialakításra az épület szerkezetétől egészen a látható és tapintható anyagokig. Az épület ’A’ energetikai besorolású, korszerű anyagokból és technológiákkal épül, ezért gazdaságosan üzemeltethető. A padlófűtés hőszivattyúról működik, míg a hűtésért split klímák felelnek., melyek alternatív fűtési megoldást is nyújtanak.
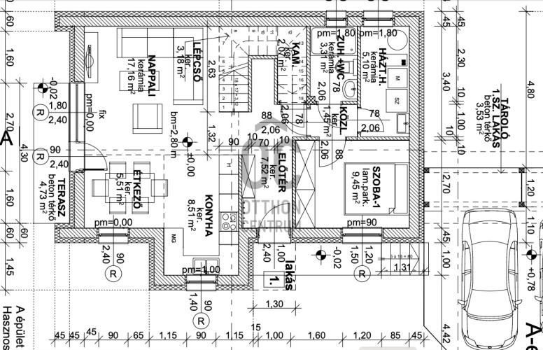
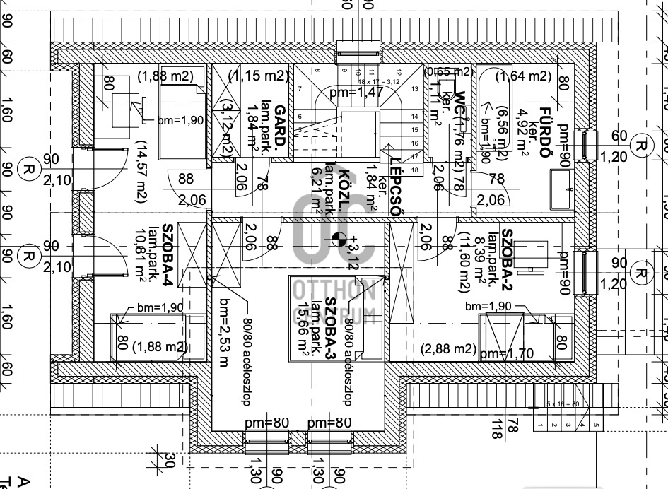
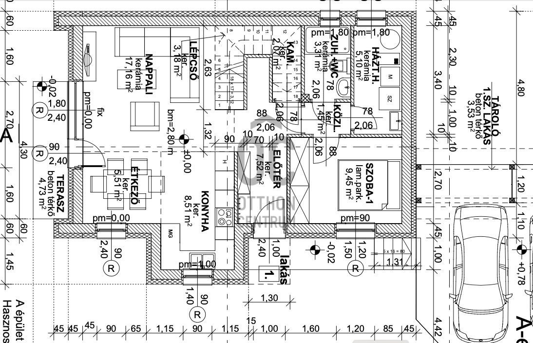
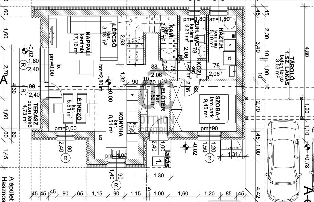
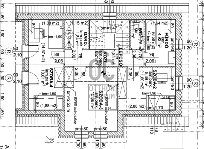
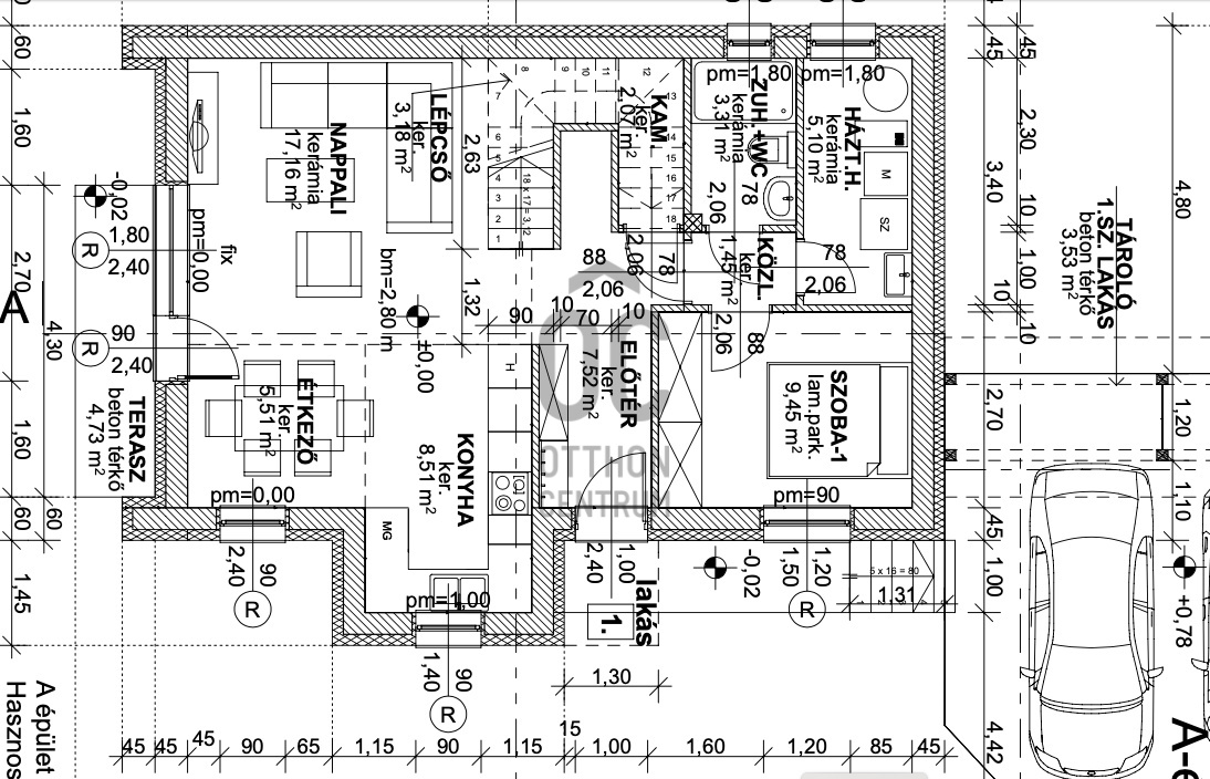
Összesen 6 ház, 3x2 lakóépület épül (A, B, C épületek), mind önálló, saját kerttel, autóbeállóval vagy garázzsal kerül értékesítésre. Az egyes házak egy közös útról közelíthetőek meg. A házak kétszintesek, 114-196 m²-esek, alsó szinten a közösségi tér, azaz előszoba, konyha, étkező nappali, zuhanyzós fürdő, WC, háztartási helyiség, kamra és 1 szoba kerül kialakításra. A tetőtéri szinten a közlekedőből 3db hálószoba, gardrób és fürdőszoba nyílik.
A C épület 2.-es lakása 3 szintes, azaz a pinceszinten kerül kialakításra egy 2 állásos garázs, a gépészeti helyiség és további tárolási lehetőség.
Ez a Pest megyei régió, Üröm, Pilisborosjenő folyamatosan fejlődő része, egy zsáktelepülés, mely Budapesttől északnyugatra, 13 km-re található. Autóval Budapesttől a 3.kerületen át a 10-es úton, vagy Csillaghegy felől is megközelíthető. Tömegközlekedés terén autóbusz az Árpád híd irányába és Ürömön vonatmegálló is elérhető, mely a Nyugati Pályaudvar fele közlekedik.
Élhető, nyugodt település minden korosztály számára, egy kis gyöngyszem a főváros közelségében. Megtalálható új építésű óvoda, bölcsőde, általános iskola nagy tornateremmel, orvosi rendelők és szociális létesítmények. Pilisborosjenő erdős hegyekkel övezve, a természet közelségében rengeteg kirándulási lehetőséget is kínál. Közelben az Egri vár másolata, Teve-szikla, , Kevélyhegyi tanösvény, levendula mezők, lovardák, a pilisborosjenői szőlővidék található.
Bővebb információért, műszaki tartalommal, megtekintéssel kapcsolatban keressen bizalommal!
A telek Pilisborosjenőn csodálatos környezetben, a pilisi Nagy-Kevély lábánál fekszik, melyről gyönyörű panoráma tárul elénk a környező hegyekre, településekre, este a Parlament látványa is lenyűgöző.
A házak magas műszaki tartalommal, energiahatékony megoldásokkal és prémium minőségű anyagokkal kerülnek kialakításra az épület szerkezetétől egészen a látható és tapintható anyagokig. Az épület ’A’ energetikai besorolású, korszerű anyagokból és technológiákkal épül, ezért gazdaságosan üzemeltethető. A padlófűtés hőszivattyúról működik, míg a hűtésért split klímák felelnek., melyek alternatív fűtési megoldást is nyújtanak.
Összesen 6 ház, 3x2 lakóépület épül (A, B, C épületek), mind önálló, saját kerttel, autóbeállóval vagy garázzsal kerül értékesítésre. Az egyes házak egy közös útról közelíthetőek meg. A házak kétszintesek, 114-196 m²-esek, alsó szinten a közösségi tér, azaz előszoba, konyha, étkező nappali, zuhanyzós fürdő, WC, háztartási helyiség, kamra és 1 szoba kerül kialakításra. A tetőtéri szinten a közlekedőből 3db hálószoba, gardrób és fürdőszoba nyílik.
A C épület 2.-es lakása 3 szintes, azaz a pinceszinten kerül kialakításra egy 2 állásos garázs, a gépészeti helyiség és további tárolási lehetőség.
Ez a Pest megyei régió, Üröm, Pilisborosjenő folyamatosan fejlődő része, egy zsáktelepülés, mely Budapesttől északnyugatra, 13 km-re található. Autóval Budapesttől a 3.kerületen át a 10-es úton, vagy Csillaghegy felől is megközelíthető. Tömegközlekedés terén autóbusz az Árpád híd irányába és Ürömön vonatmegálló is elérhető, mely a Nyugati Pályaudvar fele közlekedik.
Élhető, nyugodt település minden korosztály számára, egy kis gyöngyszem a főváros közelségében. Megtalálható új építésű óvoda, bölcsőde, általános iskola nagy tornateremmel, orvosi rendelők és szociális létesítmények. Pilisborosjenő erdős hegyekkel övezve, a természet közelségében rengeteg kirándulási lehetőséget is kínál. Közelben az Egri vár másolata, Teve-szikla, , Kevélyhegyi tanösvény, levendula mezők, lovardák, a pilisborosjenői szőlővidék található.
Bővebb információért, műszaki tartalommal, megtekintéssel kapcsolatban keressen bizalommal!
Regisztrációs szám
P4715-1-01-NA-001
Az ingatlan adatai
Értékesités
eladó
Jogi státusz
új
Jelleg
ház
Építési mód
tégla
Méret
114 m²
Bruttó méret
124 m²
Telek méret
312 m²
Terasz / erkély mérete
5 m²
Kert méret
249 m²
Fűtés
values.realestate.futes.27
Belmagasság
265 cm
Lakáson belüli szintszám
2
Tájolás
Dél-nyugat
Állapot
Kiváló
Homlokzat állapota
Kiváló
Környék
csendes, zöld
Építés éve
2026
Fürdőszobák száma
2
Társaház kert
igen
Garázs
Benne van az árban
Fedett beállók száma
1
Víz
Van
Gáz
Van
Villany
Van
Csatorna
Van
Tároló
Önálló
Helyiségek
nappali-konyha
31.5 m²
szoba
9.45 m²
előszoba
7.5 m²
zuhanyzó
3.3 m²
háztartási helyiség
5.1 m²
terasz
5 m²
közlekedő
1.5 m²
szoba
10.8 m²
szoba
15.66 m²
szoba
8.4 m²
fürdőszoba
4.92 m²
wc-kézmosó
1.5 m²
gardrób
2 m²
Plébán László
Hitelszakértő