Eladó újépítésű lakás, P4697-1-01-01-003
Budapest III. kerület,

141 500 000 Ft

366 000 €

  • 68m²
  • 3 szoba
  • 1. emelet

3.kerület Törökkő, 3 szobás, nagy teraszos duplakomfortos lakás

3.kerület Törökkőn, 3 szobás, nagy teraszos, duplakomfortos lakás eladó!
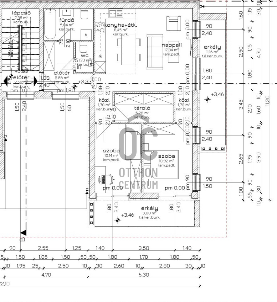
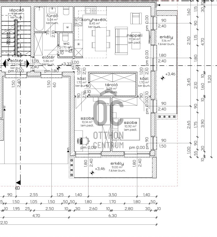
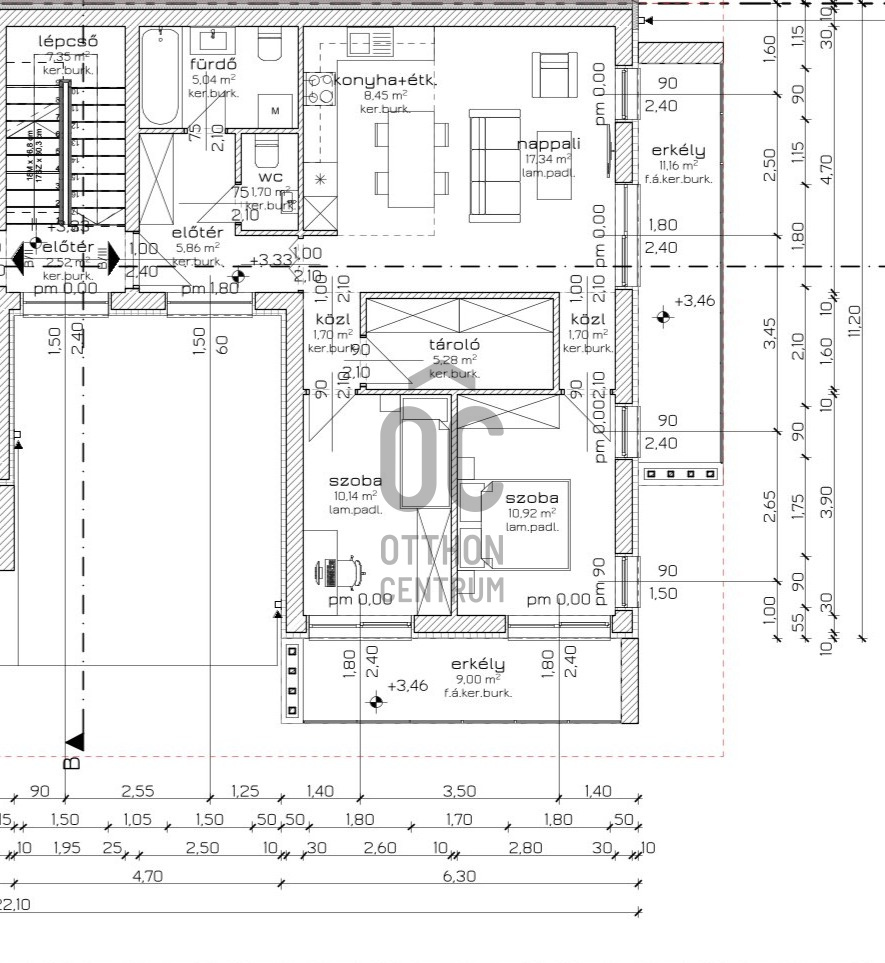
Megvételre kínálom a 3.kerület Törökkő egy csendes utcájában, ezt a 4 lakásos társasház 1.emeletén lévő nettó 68 nm-es, amerikai konyha + 2 hálószobás duplakomfortos lakást.

Lakás jellemzők:

- nettó 68 nm, 3 szoba,
- 26,92 nm üvegkorlátos terasz,
- amerikai konyhás nappali,
- önálló tároló,
- kádas fürdőszoba,
- wc-kézmosó,
- hőszivattyús fűtés-hűtés,
- padlófűtés,
- Ny-i tájolás,
- alumínium, 3 rétegű üvegezésű, 6 légkamrás nyílászárók,
- kiépített árnyékolástechnika,
- riasztó előkészítés,
- üvegkorlát

Minden lakáshoz tartozik garázs, melynek ára 10 MFt (kötelezően vásárolandó),



Jöjjön és helyezze kényelembe magát új otthonában!

Regisztrációs szám

P4697-1-01-01-003

Az ingatlan adatai

Értékesités
eladó
Jogi státusz
új
Jelleg
lakás
Építési mód
tégla
Méret
68 m²
Bruttó méret
77 m²
Terasz / erkély mérete
26,9 m²
Fűtés
hőszivattyú
Belmagasság
270 cm
Lakáson belüli szintszám
1
Tájolás
Nyugat
Panoráma
városi panoráma
Lépcsőház típusa
zárt lépcsőház
Állapot
Kiváló
Homlokzat állapota
Kiváló
Lépcsőház állapota
Kiváló
Építés éve
2025
Fürdőszobák száma
1
Fekvés
kertre néző
Társaház kert
igen
Garázs
Kötelezően vásárolandó
Víz
Van
Gáz
Van
Villany
Van
Csatorna
Van
Tároló
Önálló

Helyiségek

nappali-konyha
25.79 m²
hálószoba
10.14 m²
hálószoba
10.92 m²
tároló
5.28 m²
fürdőszoba-wc
5.04 m²
wc-kézmosó
1.7 m²
közlekedő
3.4 m²
előszoba
5.86 m²
terasz
26.92 m²
Gerber Dorottya
Gerber Dorottya

Hitelszakértő

Irodánk kínálatából - III. kerület - Óbuda

for sale panel apartment

Index image
data_sheet.details.realestate.section.main.otthonstart_flag.label
22

for sale apartment

Index image
data_sheet.details.realestate.section.main.otthonstart_flag.label
25

eladó lakás

Index image
31

eladó tanya

Index image
42

eladó panel lakás

Index image
Elérhető Otthon Start hitellel
27

for rent apartment

Index image
14

eladó családi ház

Index image
Elérhető Otthon Start hitellel
5

eladó lakás

Index image
10

kiadó panel lakás

Index image
15

for rent apartment

Index image
7