Eladó újépítésű lakás, P4695-1-01-FZ-004
Siófok, Sóstó

169 000 000 Ft

447 000 €

  • 79,6m²
  • 3 szoba
  • földszint

Live in Siófok! - Sóstó apartments - premium quality

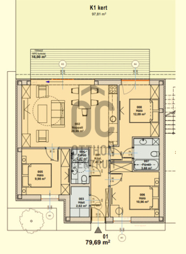
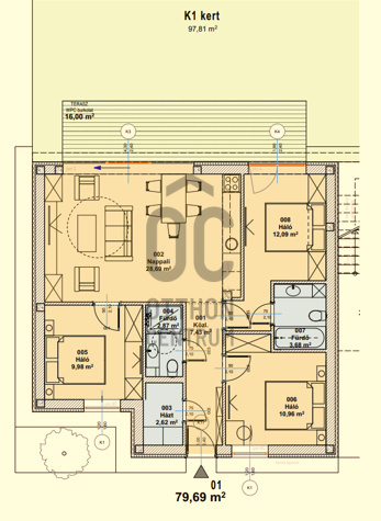
Here is the translation of the provided text into English: - Floor area: 79.69 m² - Terrace area: 16 m² - Exclusive garden use: 97.81 m² - + 1 surface parking space - The heating and cooling energy needs of this ground floor apartment will be covered by a dedicated heat pump. The heat distribution systems are wall-mounted and supplemented with a water-based underfloor heating system. - The glazing is triple-layered and highly insulated. - The interior doors will be custom, panel-mounted openings. - The terrace will have a slip-resistant surface made with frost-resistant adhesive. - The courtyard will be paved with viacolor. If our offer has piqued your interest, please feel free to contact us!

Regisztrációs szám

P4695-1-01-FZ-004

Az ingatlan adatai

Értékesités
eladó
Jogi státusz
új
Jelleg
lakás
Építési mód
tégla
Méret
79,6 m²
Bruttó méret
95,6 m²
Terasz / erkély mérete
16 m²
Kert méret
97 m²
Fűtés
hőszivattyú
Belmagasság
260 cm
Tájolás
Dél-nyugat
Panoráma
Zöldre néző panoráma
Lépcsőház típusa
zárt lépcsőház
Állapot
Kiváló
Homlokzat állapota
Kiváló
Lépcsőház állapota
Kiváló
Környék
csendes, jó közlekedés, zöld
Építés éve
2026
Fürdőszobák száma
1
Fekvés
kertre néző
Társaház kert
igen
Víz
Van
Villany
Van
Csatorna
Van
Lift
van
Tároló
Külön vásárolható
Vízpart távolsága
több mint 500 méterre

Helyiségek

terasz
16 m²
nappali-étkező
26.37 m²
konyha
13.08 m²
szoba
13.42 m²
szoba
13.32 m²
közlekedő
4.09 m²
fürdőszoba
6.51 m²
wc-kézmosó
2.9 m²

Irodánk kínálatából - Siófok - Petőfi sétány

for sale vacation home

Index image
16

for sale family house

Index image
data_sheet.details.realestate.section.main.otthonstart_flag.label
10

for sale family house

Index image
data_sheet.details.realestate.section.main.otthonstart_flag.label
33

for sale family house

Index image
data_sheet.details.realestate.section.main.otthonstart_flag.label
23

for sale new construction semi-detached house

Index image
data_sheet.details.realestate.section.main.otthonstart_flag.label
14

for sale family house

Index image
data_sheet.details.realestate.section.main.otthonstart_flag.label
31