141 350 000 Ft
364 000 €
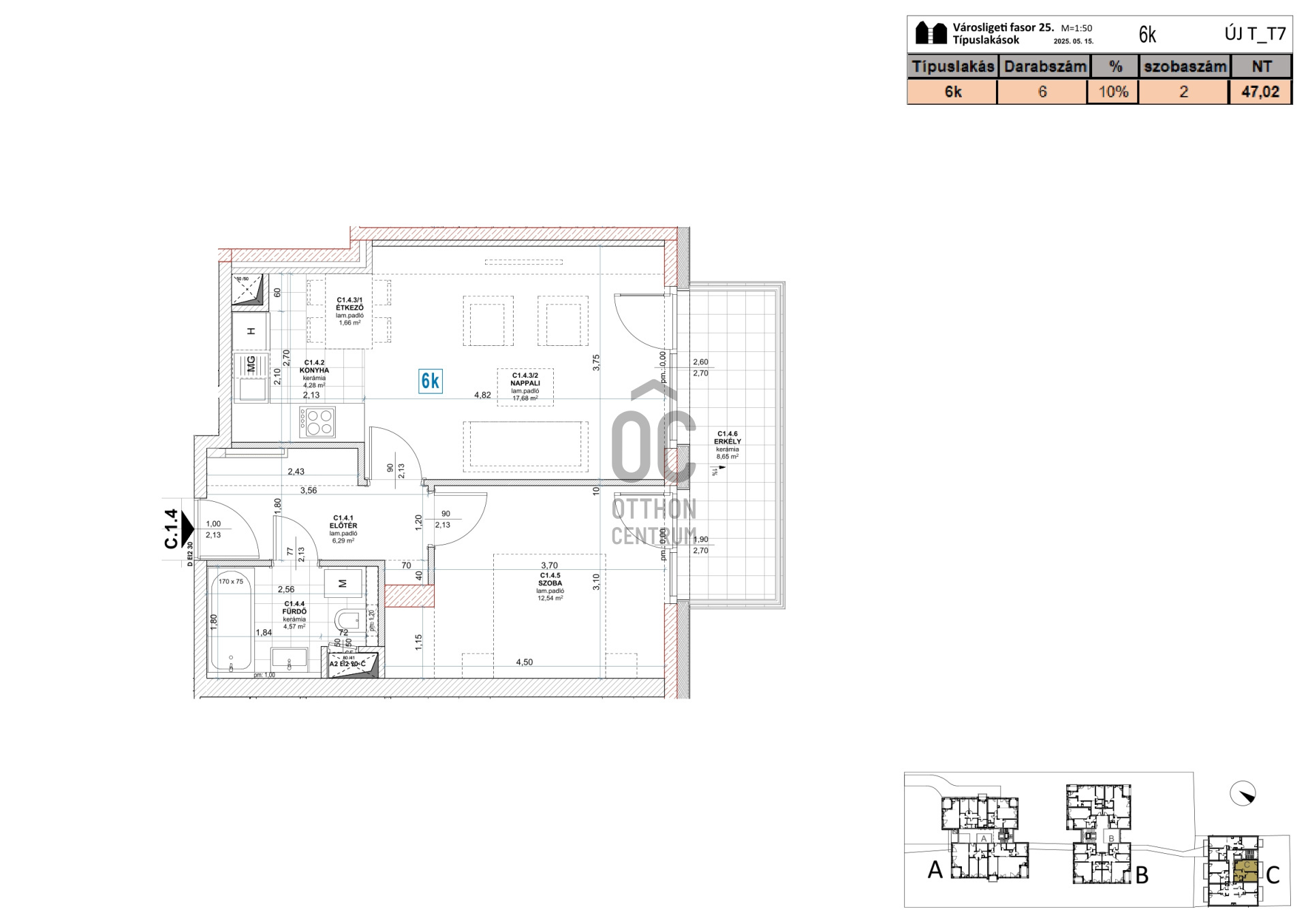
- 47m²
- 2 szoba
- 1. emelet


LIGET VILLA unique homes by Faedra Group
Regisztrációs szám
P4670-1-0C-01-004
Az ingatlan adatai
Értékesités
eladó
Jogi státusz
új
Jelleg
lakás
Építési mód
tégla
Méret
47 m²
Bruttó méret
47 m²
Terasz / erkély mérete
8,6 m²
Fűtés
hőszivattyú
Belmagasság
292 cm
Tájolás
Észak-nyugat
Lépcsőház típusa
zárt lépcsőház
Állapot
Kiváló
Homlokzat állapota
Kiváló
Lépcsőház állapota
Kiváló
Környék
zöld
Építés éve
2027
Fürdőszobák száma
1
Fekvés
udvari
Garázs
Külön vásárolható
Víz
Van
Villany
Van
Csatorna
Van
Lift
van
Tároló
Külön vásárolható
Helyiségek
előszoba
6.29 m²
konyha
4.28 m²
ebédlő
1.66 m²
nappali
17.68 m²
fürdőszoba
4.57 m²
szoba
12.54 m²