385 000 000 Ft
1 019 000 €
- 103,3m²
- 4 szoba
- földszint
II. KERÜLETI ÚJ ÉPÍTÉSŰ LAKÁSOK – MODERN ÉLETTÉR BUDA SZÍVÉBEN
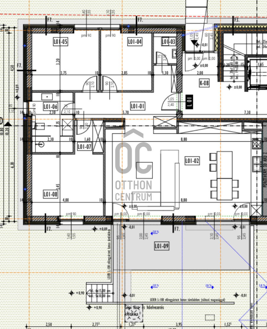
Eladásra kínálok a II. kerületben, a Rózsadomb csendes zöldövezetében egy 103,33 m² alapterületű, 4 szobás földszinti lakást!
Ideális választás mindazoknak, akik egy tágas, modern, saját kerttel rendelkező otthonra vágynak.
A lakáshoz tartozik egy 20,3 m²-es terasz és egy 130 m²-es kizárólagos használatú kert, amely tökéletes helyszíne lehet a nyugodt pihenésnek vagy a családi és baráti összejöveteleknek.
Helyiségek részletese:
előszoba: 11.66 m²
nappali-konyha: 43.96 m²
wc: 2.21 m²
szoba:9.12 m²
szoba: 12 m²
fürdőszoba: 2.7 m²
gardrób: 2.88 m²
szoba:13.8 m²
Parkolás: 2 db garázsbeálló és 1 db tároló a mélygarázsban
A garázs és a tároló vásárolható hozzá külön!
Főbb jellemzők:
Kulcsrakész kivitelezés prémium anyaghasználattal
Lakásonkénti hőszivattyús fűtés és hűtés (levegő–víz rendszer, padlófűtéssel és mennyezethűtéssel)
Lakás-központi hővisszanyerős szellőztetőrendszer a maximális komfortért
Használati melegvíz előállítás lakásonként saját hőszivattyúval
Energiatakarékos és fenntartható megoldások, alacsony rezsivel
Extra műszaki tartalom:
Elektromos kiegészítő fűtés a HMV-hez
Fürdőkben padlófűtés, külön vizesblokk-szellőztetés
Konyhai elszívás külön tetőkivezetéssel
Lakásonként vízlágyító előkészítés
Intelligens gépészeti rendszer, külön mérőkkel
Pinceszinten tárolók, parkolók, gépészeti helyiségek
Elhelyezkedés:
A Bolyai utca a II. kerületben, a Margit híd és a Rózsadomb között található – nyugodt, zöld környezetben, mégis könnyen megközelíthető helyen. A környék kiváló közlekedéssel és szolgáltatásokkal rendelkezik, így ideális választás családoknak, fiatal pároknak és befektetőknek egyaránt.
Egyedi igényekre szabott lakáshitelekkel állunk rendelkezésére. Bankfüggetlen hitelcentrumunk az országban elérhető összes bank és hitelintézet ajánlatát versenyezteti az Ön számára díjmentesen. Munkatársaink nagy szakmai tapasztalattal várják Önt az előre egyeztetett időpontban akár a normál munkaidő után is.
Bővebb információért és a megtekintéssel kapcsolatban hívjon bizalommal!
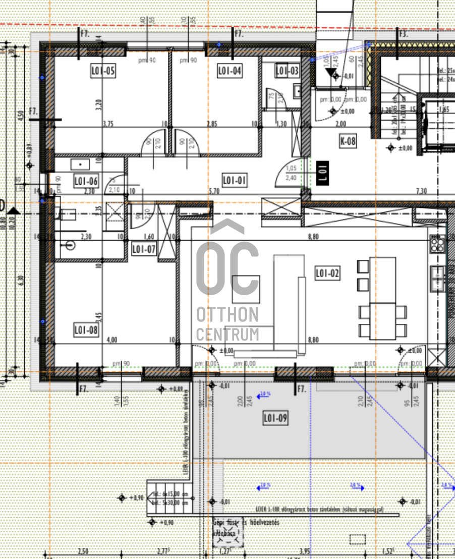
Ideális választás mindazoknak, akik egy tágas, modern, saját kerttel rendelkező otthonra vágynak.
A lakáshoz tartozik egy 20,3 m²-es terasz és egy 130 m²-es kizárólagos használatú kert, amely tökéletes helyszíne lehet a nyugodt pihenésnek vagy a családi és baráti összejöveteleknek.
Helyiségek részletese:
előszoba: 11.66 m²
nappali-konyha: 43.96 m²
wc: 2.21 m²
szoba:9.12 m²
szoba: 12 m²
fürdőszoba: 2.7 m²
gardrób: 2.88 m²
szoba:13.8 m²
Parkolás: 2 db garázsbeálló és 1 db tároló a mélygarázsban
A garázs és a tároló vásárolható hozzá külön!
Főbb jellemzők:
Kulcsrakész kivitelezés prémium anyaghasználattal
Lakásonkénti hőszivattyús fűtés és hűtés (levegő–víz rendszer, padlófűtéssel és mennyezethűtéssel)
Lakás-központi hővisszanyerős szellőztetőrendszer a maximális komfortért
Használati melegvíz előállítás lakásonként saját hőszivattyúval
Energiatakarékos és fenntartható megoldások, alacsony rezsivel
Extra műszaki tartalom:
Elektromos kiegészítő fűtés a HMV-hez
Fürdőkben padlófűtés, külön vizesblokk-szellőztetés
Konyhai elszívás külön tetőkivezetéssel
Lakásonként vízlágyító előkészítés
Intelligens gépészeti rendszer, külön mérőkkel
Pinceszinten tárolók, parkolók, gépészeti helyiségek
Elhelyezkedés:
A Bolyai utca a II. kerületben, a Margit híd és a Rózsadomb között található – nyugodt, zöld környezetben, mégis könnyen megközelíthető helyen. A környék kiváló közlekedéssel és szolgáltatásokkal rendelkezik, így ideális választás családoknak, fiatal pároknak és befektetőknek egyaránt.
Egyedi igényekre szabott lakáshitelekkel állunk rendelkezésére. Bankfüggetlen hitelcentrumunk az országban elérhető összes bank és hitelintézet ajánlatát versenyezteti az Ön számára díjmentesen. Munkatársaink nagy szakmai tapasztalattal várják Önt az előre egyeztetett időpontban akár a normál munkaidő után is.
Bővebb információért és a megtekintéssel kapcsolatban hívjon bizalommal!
Regisztrációs szám
P4658-1-01-FZ-000
Az ingatlan adatai
Értékesités
eladó
Jogi státusz
új
Jelleg
lakás
Építési mód
tégla
Méret
103,3 m²
Bruttó méret
113,4 m²
Terasz / erkély mérete
20,3 m²
Fűtés
hőszivattyú
Belmagasság
300 cm
Tájolás
Dél-nyugat
Panoráma
Zöldre néző panoráma
Lépcsőház típusa
zárt lépcsőház
Állapot
Kiváló
Homlokzat állapota
Kiváló
Lépcsőház állapota
Kiváló
Környék
csendes, zöld
Építés éve
2026
Fürdőszobák száma
1
Fekvés
kertre néző
Garázs
Külön vásárolható
Víz
Van
Gáz
Utcán
Villany
Van
Csatorna
Van
Kertkapcsolatos
igen
Tároló
Külön vásárolható
Helyiségek
előszoba
11.66 m²
nappali-konyha
43.96 m²
wc
2.21 m²
szoba
9.12 m²
szoba
12 m²
fürdőszoba
2.7 m²
gardrób
2.88 m²
szoba
13.8 m²