Elérhető Otthon Start hitellel
Eladó újépítésű lakás,
P4622-D-01-FZ-005
Pécs, Kertváros
57 879 000 Ft
149 000 €
- 42,8m²
- 2 szoba
- földszint


Fedezze fel Pécs új KINCS-ét !
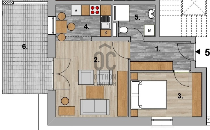
D épület fsz 5. lakás nappali+ 1 háló
Regisztrációs szám
P4622-D-01-FZ-005
Az ingatlan adatai
Értékesités
eladó
Jogi státusz
új
Jelleg
lakás
Építési mód
ytong
Méret
42,8 m²
Bruttó méret
49 m²
Terasz / erkély mérete
12,5 m²
Fűtés
hőszivattyú
Belmagasság
260 cm
Lakáson belüli szintszám
1
Tájolás
Nyugat
Lépcsőház típusa
zárt lépcsőház
Állapot
Kiváló
Homlokzat állapota
Kiváló
Lépcsőház állapota
Kiváló
Környék
jó közlekedés
Építés éve
2025
Fürdőszobák száma
1
Fekvés
udvari
Víz
Van
Villany
Van
Csatorna
Van
Helyiségek
előszoba
5.7 m²
nappali
17.2 m²
szoba
10 m²
konyha-étkező
6 m²
fürdőszoba-wc
3.9 m²

Mecseki Lászlóné - Éva
Hitelszakértő