Eladó újépítésű lakás, P4601-2-02-02-000
Debrecen, Belváros

136 000 000 Ft

348 000 €

  • 62,3m²
  • 3 szoba
  • 2. emelet

Newly built apartments for sale in the heart of Debrecen, in close proximity to the Great Church!

In the city center of Debrecen, very close to the Great Church, newly built apartments are available for purchase, 90% completed. The residential building was designed by a renowned designer couple (Csaba Balázs and Andrea Vecsey). These modern apartments feature high quality and comfortable, spacious living areas. The building consists of 11 apartments arranged in two wings: nine apartments are located in the new left wing, while two are in the old wing. Out of the 11 apartments, 2 have an internal two-level layout. Garages can be purchased for the apartments. Car storage is available in a three-level Klaus Multiparking system with 11 parking spaces, accessible from the courtyard. This is a property that does not require years of waiting for completion, given its current level of readiness. The developer has realized the project with high technical standards and did not compromise on quality materials. Features of the residential building include: - divided, heat and sound-insulated, three-layer metal windows, - reinforced concrete pillar frame structure, - heating via underfloor heating, cooling through split air conditioning, - individual meters installed in every apartment, resulting in very low utility costs. If our advertisement has piqued your interest, we look forward to your call every day of the week!

Regisztrációs szám

P4601-2-02-02-000

Az ingatlan adatai

Értékesités
eladó
Jogi státusz
új
Jelleg
lakás
Építési mód
tégla
Méret
62,3 m²
Bruttó méret
77,4 m²
Terasz / erkély mérete
15,1 m²
Fűtés
egyedi távfűtés
Belmagasság
280 cm
Lakáson belüli szintszám
5
Tájolás
Nyugat
Panoráma
városi panoráma
Lépcsőház típusa
zárt lépcsőház
Állapot
Kiváló
Homlokzat állapota
Kiváló
Lépcsőház állapota
Kiváló
Környék
csendes, jó közlekedés, központi
Építés éve
2025
Fürdőszobák száma
2
Fekvés
utcai
Garázs
Külön vásárolható
Víz
Van
Villany
Van
Csatorna
Van
Lift
van
Tároló
Külön vásárolható

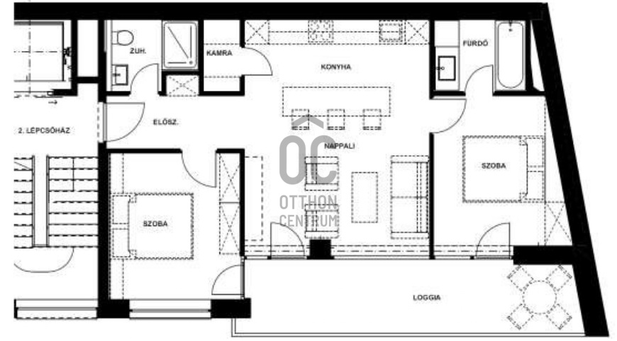
Helyiségek

szoba
14 m²
szoba
12 m²
előszoba
2 m²
nappali
18 m²
fürdőszoba
4 m²
fürdőszoba-wc
4 m²
kamra
2 m²
konyha-étkező
6.33 m²
terasz
15.11 m²
Plébán László
Plébán László

Hitelszakértő

Irodánk kínálatából - Debrecen - Hatvan utca

for sale new construction semi-detached house

Index image
data_sheet.details.realestate.section.main.otthonstart_flag.label
7

eladó panel lakás

Index image
Elérhető Otthon Start hitellel
16

eladó újépítésű ikerház

Index image
Elérhető Otthon Start hitellel
14

eladó újépítésű ikerház

Index image
Elérhető Otthon Start hitellel
14

Hajdú Residence

Index image
Elérhető Otthon Start hitellel
4

eladó családi ház

Index image
Elérhető Otthon Start hitellel
10