Elérhető Otthon Start hitellel
Eladó újépítésű ikerház,
U0049535
Téglás
85 000 000 Ft
217 000 €
- 94m²
- 4 szoba
ÚJ ÉPÍTÉSŰ, PRÉMIUM IKERHÁZ ELADÓ TÉGLÁSON (Mindkét oldal eladó!)
Tégláson prémium, azonnal költözhető ikerház eladó Debrecen közelében
Ha egy modern, energiatakarékos és nyugodt környezetben lévő otthont keresel Debrecen közelében, akkor ez az ingatlan tökéletes választás lehet.
Téglás egyik csendes, rendezett lakóparkjában kínálunk eladásra egy 2025-ben átadott, prémium kivitelezésű ikerházat, amelyet a Téglás Centrum Kft épített.
Az ingatlan elhelyezkedése különösen kedvező: Debrecen és Nyíregyháza mindössze kb. 20 perc autóútra, így a városi infrastruktúra gyorsan elérhető, miközben a mindennapokat egy nyugodt, családbarát környezetben élvezheti.
Főbb jellemzők
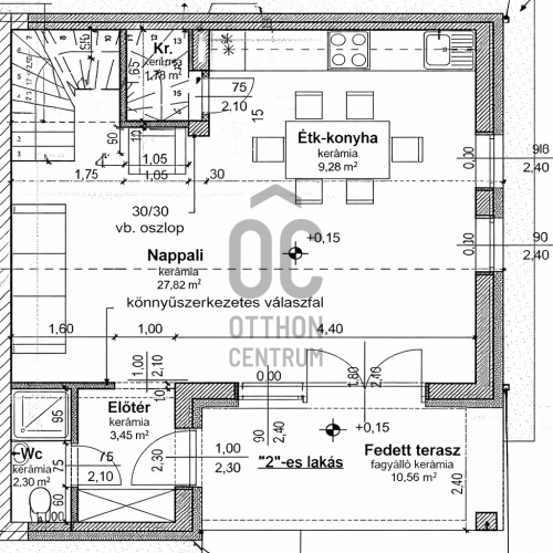
• 94 m² lakótér
• 11 m² fedett terasz
• 7 m² erkély
• nappali + 3 hálószoba
• 2 fürdőszoba (zuhanyzó és kád)
Bruttó 117 m2
A 94 m²-es lakótér átgondolt elrendezésű:
tágas nappali, 3 külön nyíló hálószoba és 2 fürdőszoba (zuhanyzóval és káddal) biztosít kényelmes életteret akár egy nagyobb család számára is.
A nappaliból közvetlen kijárat nyílik a 11 m²-es fedett teraszra, ahol kellemesen tölthetők a reggeli kávézások vagy a nyugodt esti beszélgetések. Az emeleten található 7 m²-es erkély további kikapcsolódási lehetőséget kínál.
Műszaki tartalom
• 15 cm grafitos hőszigetelés
• korszerű hőszivattyús fűtési rendszer
• energiatakarékos modern gépészet
• 3 rétegű, antracit nyílászárók
• elektromos kapu és kaputelefon
• térkövezett autóbeálló
• teljesen körbekerített, önálló udvar
Extrák
• azonnal költözhető
• bútorozott állapotban eladó
• egyedi, prémium beépített konyhabútor gépekkel
• beépített gardrób és előszobaszekrény
• modern, magas minőségű burkolatok
A környék infrastruktúrája kiváló: Lidl, Penny, iskola és óvoda rövid távolságon belül elérhető.
Ez az ingatlan ideális választás azok számára, akik modern, alacsony fenntartási költségű és azonnal költözhető otthont keresnek Debrecen közelében.
Ha egy modern, energiatakarékos és nyugodt környezetben lévő otthont keresel Debrecen közelében, akkor ez az ingatlan tökéletes választás lehet.
Téglás egyik csendes, rendezett lakóparkjában kínálunk eladásra egy 2025-ben átadott, prémium kivitelezésű ikerházat, amelyet a Téglás Centrum Kft épített.
Az ingatlan elhelyezkedése különösen kedvező: Debrecen és Nyíregyháza mindössze kb. 20 perc autóútra, így a városi infrastruktúra gyorsan elérhető, miközben a mindennapokat egy nyugodt, családbarát környezetben élvezheti.
Főbb jellemzők
• 94 m² lakótér
• 11 m² fedett terasz
• 7 m² erkély
• nappali + 3 hálószoba
• 2 fürdőszoba (zuhanyzó és kád)
Bruttó 117 m2
A 94 m²-es lakótér átgondolt elrendezésű:
tágas nappali, 3 külön nyíló hálószoba és 2 fürdőszoba (zuhanyzóval és káddal) biztosít kényelmes életteret akár egy nagyobb család számára is.
A nappaliból közvetlen kijárat nyílik a 11 m²-es fedett teraszra, ahol kellemesen tölthetők a reggeli kávézások vagy a nyugodt esti beszélgetések. Az emeleten található 7 m²-es erkély további kikapcsolódási lehetőséget kínál.
Műszaki tartalom
• 15 cm grafitos hőszigetelés
• korszerű hőszivattyús fűtési rendszer
• energiatakarékos modern gépészet
• 3 rétegű, antracit nyílászárók
• elektromos kapu és kaputelefon
• térkövezett autóbeálló
• teljesen körbekerített, önálló udvar
Extrák
• azonnal költözhető
• bútorozott állapotban eladó
• egyedi, prémium beépített konyhabútor gépekkel
• beépített gardrób és előszobaszekrény
• modern, magas minőségű burkolatok
A környék infrastruktúrája kiváló: Lidl, Penny, iskola és óvoda rövid távolságon belül elérhető.
Ez az ingatlan ideális választás azok számára, akik modern, alacsony fenntartási költségű és azonnal költözhető otthont keresnek Debrecen közelében.
Regisztrációs szám
U0049535
Az ingatlan adatai
Értékesités
eladó
Jogi státusz
új
Jelleg
ház
Építési mód
tégla
Méret
94 m²
Bruttó méret
112 m²
Telek méret
300 m²
Terasz / erkély mérete
18 m²
Fűtés
hőszivattyú
Belmagasság
275 cm
Lakáson belüli szintszám
1
Tájolás
Dél-nyugat
Állapot
Kiváló
Homlokzat állapota
Kiváló
Környék
jó közlekedés, zöld, központi
Építés éve
2025
Fürdőszobák száma
2
Társaház kert
igen
Víz
Van
Villany
Van
Csatorna
Van
Vízpart távolsága
500 méterre
Helyiségek
szoba
12.1 m²
szoba
12.1 m²
szoba
13.09 m²
fürdőszoba-wc
4.7 m²
közlekedő
3.1 m²
erkély
7 m²
előszoba
3.45 m²
wc
2.3 m²
terasz
11 m²
nappali
27.82 m²
konyha-étkező
9.28 m²
kamra
1.78 m²
Plébán László
Hitelszakértő