93 900 000 Ft
242 000 €
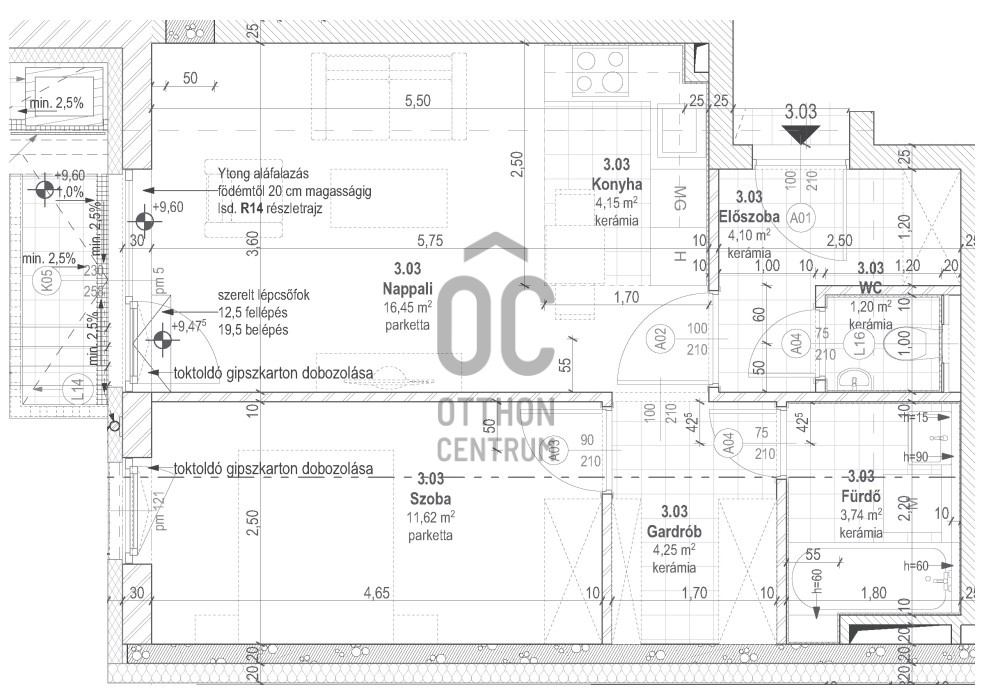
- 53,9m²
- 2 szoba
- 3. emelet




Regisztrációs szám
P4180-1-01-03-003
Az ingatlan adatai
Értékesités
eladó
Jogi státusz
új
Jelleg
lakás
Építési mód
tégla
Méret
53,9 m²
Bruttó méret
56,7 m²
Terasz / erkély mérete
5,5 m²
Fűtés
hőszivattyú
Belmagasság
270 cm
Tájolás
Nyugat
Lépcsőház típusa
zárt lépcsőház
Állapot
Kiváló
Homlokzat állapota
Kiváló
Lépcsőház állapota
Kiváló
Környék
csendes, zöld
Építés éve
2023
Fürdőszobák száma
1
Fekvés
udvari
Garázs
Külön vásárolható
Víz
Van
Villany
Van
Csatorna
Van
Lift
van
Tároló
Külön vásárolható
Helyiségek
előszoba
4.1 m²
fürdőszoba
3.74 m²
konyha
4.15 m²
gardrób
4.25 m²
nappali
16.45 m²
szoba
11.62 m²
wc
1.2 m²
terasz
2.16 m²

Németh István
Hitelszakértő