Elérhető Otthon Start hitellel
Eladó lakás, OHH180290
Mosonmagyaróvár, Városközpont

44 900 000 Ft

114 000 €

  • 47m²
  • 2 szoba
  • földszint
Kiemelt megbízás


MOSONMAGYARÓVÁR BELVÁROS KÖZELI, legjobb helyen lévő részén eladó egy 47 M²- es, stílusos, modern, fiatalos hangulatú társasházi lakás, amely kiváló elosztásával igazán kellemes, harmonikus otthont kínál.

A TÉGLAépítésű, újszerű, AMERIKAI KONYHA NAPPALIs és 1 külön HÁLÓSZOBÁS lakás egy 2008. évben épült társasház FÖLDSZINTjén található.    A napfényes terek, az amerikai konyhás nappali és a külön hálószoba KÉNYELMES, JÓL ÉLHETŐ LAKÓTERET biztosítanak.
A lakás központi élettere a tágas amerikai konyha–nappali, ahol a természetes fény, a nyitott tér kellemes, BARÁTSÁGOS HANGULATot teremt, a főzés, a beszélgetések és a mindennapi élet természetes TALÁLKAHELYe!

A nappali és a teljes lakás kellemes hőmérsékletét még a legmelegebb nyári napokon is biztosítja a pár éve üzembe helyezett HŰTŐ-FŰTŐ KLÍMA.
A fűtésről és a melegvíz ellátásáról a legmodernebb, leggazdaságosabb saját kondenzációs kazán gondoskodik!
A lakás KIVÁLÓ BENAPOZOTTSÁGának köszönhetően pedig a helyiségek egész nap világosak és barátságosak.
Praktikus megoldás, hogy a WC KÜLÖN helyiségben található, ami a mindennapos komfortot tovább növeli.

A teljes méretű ABLAKKAL RENDELKEZŐ külön HÁLÓSZOBA nyugodt elvonulási lehetőséget, meghitt pihenést biztosít!

A lakás FELÚJÍTOTT állapotú, AZONNAL KÖLTÖZHETŐ!

*
TÁGAS konyha étkezővel, nappalival

*
Fürdőszoba ZUHANYZÓval

*
KÜLÖN WC

*
KÜLÖN HÁLÓSZOBA

*
Hűtő - fűtő klíma

*
TÉGLA falazat és beton födém

A társasház előtt INGYENES PARKOLÁSt biztosító parkoló található a gépkocsik számára, amely különösen értékes ebben a városban.

Lokáció szempontjából kiváló választás:

- BELVÁROSI LAKÁS

- Közelben található több ÉLELMISZERÜZLET

- ISKOLA, ÓVODA, BÖLCSŐDE sétatávolságra található

- LAJTA folyó 50 méterre csörgedezik

- A VÁR közvetlen közelében helyezkedik el

 - Éttermek, kávézók, cukrászdák, fagyizók a közelben

 - Sétálóutca a szomszéd utcában

- BUSZMEGÁLLÓ kettő perc sétára van, így a logisztika, közlekedés és életminőség szempontjából is ideális választás

A lakás IDEÁLIS VÁLASZTÁS lehet ELSŐ OTTHONnak, EGYEDÜLÁLLÓKnak, FIATAL PÁRoknak, EGY GYERMEKES CSALÁDoknak, vagy akár BEFEKTETŐKnek, hiszen a jól kihasználható terek és a barátságos hangulat hosszú távon is ÉRTÉKET KÉPVISELnek.
Ha egy STÍLUSOS, MODERN, FIATALOS HANGULATÚ, NAPFÉNYES, KÖNNYEN SZERETHETŐ OTTHONt keres, amely azonnal HARMONIKUS HANGULATot áraszt, érdemes személyesen is MEGTEKINTENI!

Regisztrációs szám

OHH180290

Az ingatlan adatai

Értékesités
eladó
Jogi státusz
használt
Jelleg
lakás
Építési mód
tégla
Méret
47 m²
Fűtés
egyéb
Állapot
Építés éve
2008

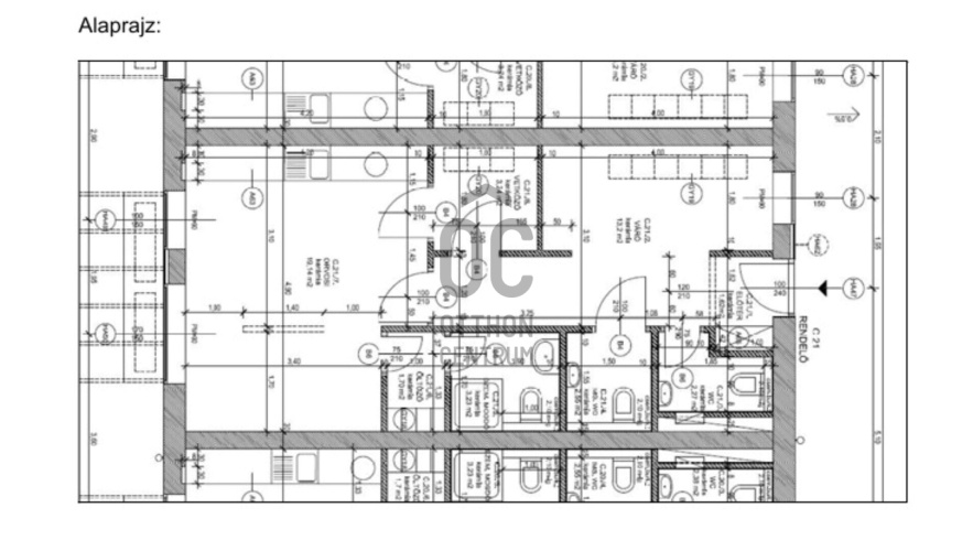
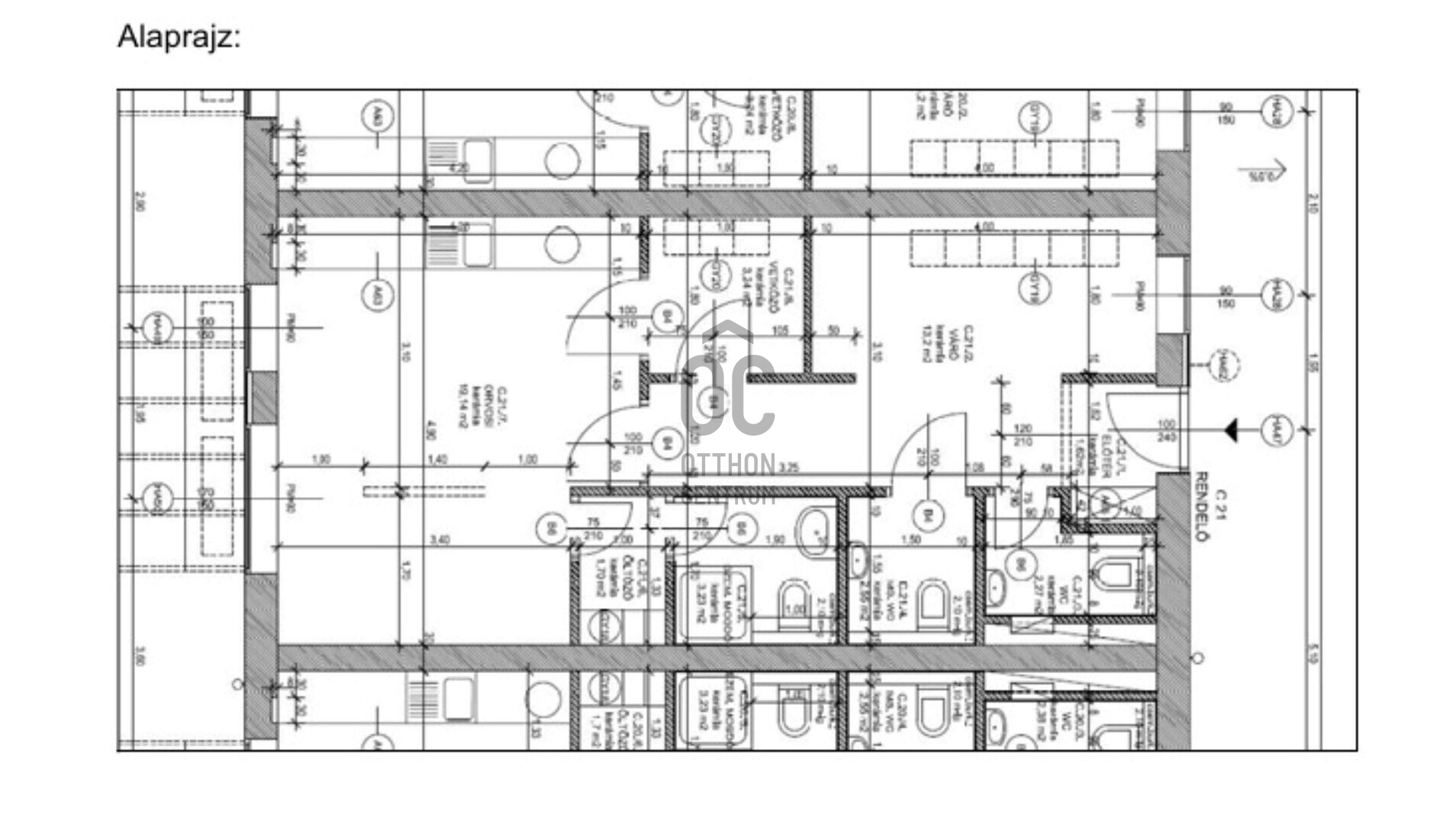
Helyiségek

egyéb
19.14 m²
egyéb
13.2 m²
közlekedő
1.62 m²
közlekedő
1.7 m²
fürdőszoba
3.23 m²
wc
2.38 m²
wc
2.55 m²
tároló
3.24 m²

Irodánk kínálatából - Győr - Batthyány tér

eladó lakás

Index image
Elérhető Otthon Start hitellel
14

for sale family house

Index image
data_sheet.details.realestate.section.main.otthonstart_flag.label
20

for sale family house

Index image
23

for sale family house

Index image
data_sheet.details.realestate.section.main.otthonstart_flag.label
39

eladó családi ház

Index image
26

eladó családi ház

Index image
Elérhető Otthon Start hitellel
23

eladó családi ház

Index image
Elérhető Otthon Start hitellel
18

eladó lakás

Index image
Elérhető Otthon Start hitellel
11

eladó családi ház

Index image
Elérhető Otthon Start hitellel
35

eladó családi ház

Index image
Elérhető Otthon Start hitellel
30