228 000 000 Ft
587 000 €
- 156m²
- 5 szoba
Egyedi hangulat, modern tartalom – otthon Zugló kertvárosában
Budapest XIV. kerületének egyik legkedveltebb, kertvárosi részén, a Zugló szívében, a Rákospatak vonzáskörzetében, egy forgalomtól mentes kis utcában kínálunk megvételre ezt a különleges ingatlant.
A fiatal építész-tervező csapat egy igazán egyedi koncepciót álmodott meg: a klasszikus, eredeti homlokzati karakter harmonikusan ötvöződik a modern, letisztult és funkcionális formavilággal. A belsőépítész a családias, bensőséges hangulat megteremtésére helyezte a hangsúlyt, így az otthonok egyszerre sugároznak eleganciát és melegséget.
A kialakítás
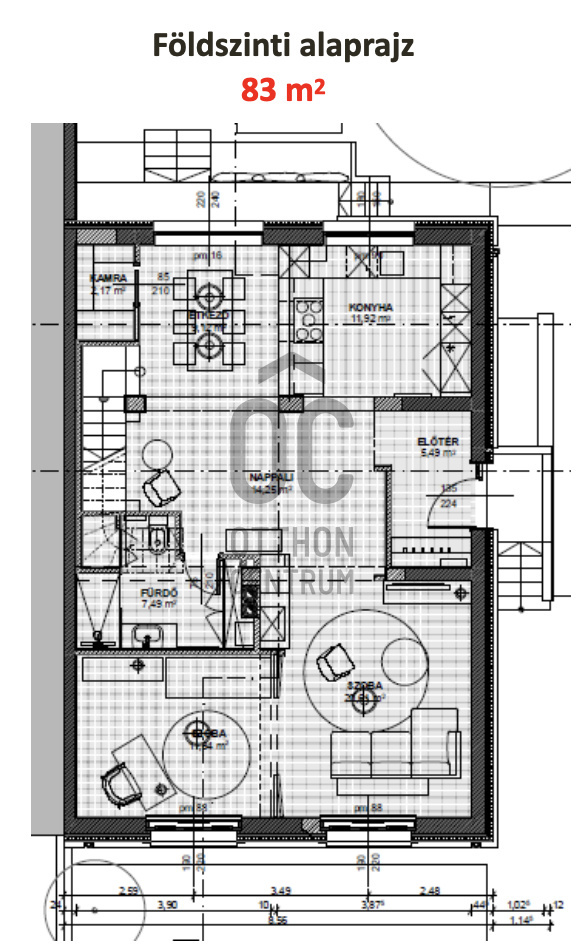
Földszint:
- 83 m² alapterület
- 33 m² teljes értékű szuterén, ahol fürdőszoba kialakítható
- Akár külön lakrészként, dolgozószobaként vagy vendégapartmanként is használható
- kert
- 2 db autóbeálló
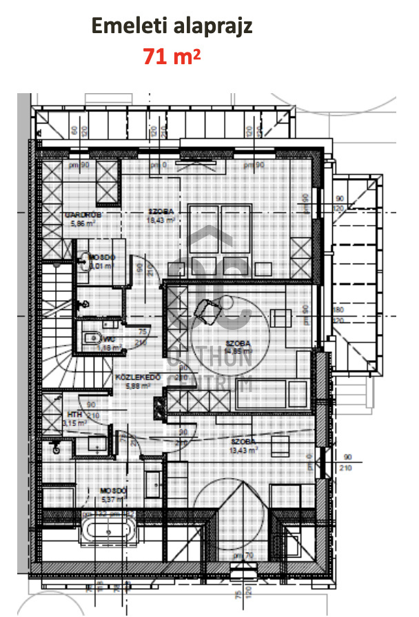
Emelet:
- 73 m² alapterület
- Világos, jól variálható belső terek
- a szobaméretek jelen készültségi fokban még alakíthatóak
Műszaki tartalom:
- Korszerű, energiatakarékos hőszivattyús hűtés–fűtés rendszer
- Igényes, modern műszaki megoldások
- Átgondolt térszervezés
Az ingatlan jelenlegi készültségi szintjén még lehetőség van:
- Burkolatok kiválasztására
- Belső elrendezés igény szerinti alakítására
Így az új tulajdonos valóban saját igényeire szabhatja leendő otthonát.
Rendelkezésre álló dokumentáció:
Az építkezés teljes körű, rendezett műszaki háttérrel rendelkezik:
- Egyszerű bejelentési dokumentáció lakóépület bővítésére (Zuglói főépítész által elfogadva, 2022. február)
- Méretezett alaprajzok (pince, földszint, emelet)
- Metszetrajzok, rétegrendek, anyaghasználati tervek
- Épületgépészeti és épületvillamossági rendszerleírások
- Teljes műszaki tervdokumentáció
- Tartószerkezeti és tetőszerkezeti tervek
- Vasalási tervek (alapozás, pincefödém, földszint feletti födém, tetőszerkezet)
- Vasmennyiségi kimutatások
- Anyagok
- A pince- és földszinti födémhez a teljes betonvas mennyiség rendelkezésre áll
Tervezett átadás 4-6 hónapon belül.
A kivitelező számos referenciával rendelkezik.
Ez az ingatlan ideális választás lehet:
- többgenerációs családoknak,
- befektetőknek (külön hasznosítható lakrészek),
- vagy azoknak, akik modern, mégis otthonos környezetben szeretnének élni Zugló egyik legnyugodtabb utcájában.
Ha egy különleges karakterű, személyre szabható otthont keres kertvárosi környezetben, ez az ingatlan kivételes lehetőség.
A fiatal építész-tervező csapat egy igazán egyedi koncepciót álmodott meg: a klasszikus, eredeti homlokzati karakter harmonikusan ötvöződik a modern, letisztult és funkcionális formavilággal. A belsőépítész a családias, bensőséges hangulat megteremtésére helyezte a hangsúlyt, így az otthonok egyszerre sugároznak eleganciát és melegséget.
A kialakítás
Földszint:
- 83 m² alapterület
- 33 m² teljes értékű szuterén, ahol fürdőszoba kialakítható
- Akár külön lakrészként, dolgozószobaként vagy vendégapartmanként is használható
- kert
- 2 db autóbeálló
Emelet:
- 73 m² alapterület
- Világos, jól variálható belső terek
- a szobaméretek jelen készültségi fokban még alakíthatóak
Műszaki tartalom:
- Korszerű, energiatakarékos hőszivattyús hűtés–fűtés rendszer
- Igényes, modern műszaki megoldások
- Átgondolt térszervezés
Az ingatlan jelenlegi készültségi szintjén még lehetőség van:
- Burkolatok kiválasztására
- Belső elrendezés igény szerinti alakítására
Így az új tulajdonos valóban saját igényeire szabhatja leendő otthonát.
Rendelkezésre álló dokumentáció:
Az építkezés teljes körű, rendezett műszaki háttérrel rendelkezik:
- Egyszerű bejelentési dokumentáció lakóépület bővítésére (Zuglói főépítész által elfogadva, 2022. február)
- Méretezett alaprajzok (pince, földszint, emelet)
- Metszetrajzok, rétegrendek, anyaghasználati tervek
- Épületgépészeti és épületvillamossági rendszerleírások
- Teljes műszaki tervdokumentáció
- Tartószerkezeti és tetőszerkezeti tervek
- Vasalási tervek (alapozás, pincefödém, földszint feletti födém, tetőszerkezet)
- Vasmennyiségi kimutatások
- Anyagok
- A pince- és földszinti födémhez a teljes betonvas mennyiség rendelkezésre áll
Tervezett átadás 4-6 hónapon belül.
A kivitelező számos referenciával rendelkezik.
Ez az ingatlan ideális választás lehet:
- többgenerációs családoknak,
- befektetőknek (külön hasznosítható lakrészek),
- vagy azoknak, akik modern, mégis otthonos környezetben szeretnének élni Zugló egyik legnyugodtabb utcájában.
Ha egy különleges karakterű, személyre szabható otthont keres kertvárosi környezetben, ez az ingatlan kivételes lehetőség.
Regisztrációs szám
H515427
Az ingatlan adatai
Értékesités
eladó
Jogi státusz
használt
Jelleg
ház
Építési mód
tégla
Méret
156 m²
Bruttó méret
189 m²
Telek méret
278 m²
Fűtés
hőszivattyú
Belmagasság
275 cm
Lakáson belüli szintszám
2
Tájolás
Nyugat
Panoráma
Zöldre néző panoráma
Állapot
Kiváló
Homlokzat állapota
Kiváló
Pince
Önálló
Környék
csendes, zöld
Építés éve
2026
Fürdőszobák száma
3
Garázs
Benne van az árban
Víz
Van
Villany
Van
Csatorna
Van
Helyiségek
előszoba
5.49 m²
konyha
11.92 m²
ebédlő
9.12 m²
nappali
14.25 m²
szoba
20.61 m²
szoba
11.84 m²
fürdőszoba-wc
7.49 m²
tároló
2.17 m²
előszoba
5.88 m²
szoba
18.43 m²
szoba
14.85 m²
szoba
13.43 m²
fürdőszoba
5.37 m²
wc
3.01 m²
háztartási helyiség
3.15 m²
gardrób
5.86 m²
wc
1.18 m²
egyéb helyiség
33.36 m²
Berkes-Jakus Kinga
Hitelszakértő