173 000 000 Ft
441 000 €
- 128,8m²
- 8 szoba
Többgenerációs balatoni bázis, tökéletes állapotban!
Többgenerációs balatoni bázist keresel, ahol együtt lehet a család, de mindenkinek megvan a saját tere vagy kiadáson töröd a fejed?
Siófok-Sóstón ez a 8 szobás, két szintes, kiváló állapotú családi ház garázzsal, 6 felszíni beállóval és zöldre néző panorámával vár. Két külön nappali-étkezős szint, hatalmas erkély és terasz, önálló tároló – tökéletes nagycsaládnak, “szülők lent, gyerekek fent” felállásra, vagy akár vendégezésre, vállalkozás mellé.
Csendes utca, sok autóhely - külön beálló rész a két szintnek! - Balaton-közeli életérzés – ha tágas otthont keresel, ez nagyon komoly opció.
Referencia szám: H515232
Besorolás: lakóingatlan, családi ház (emeletes ikerház)
Építés módja: tégla (30 cm)
Telek méret: 681 nm
Nettó méret: 128,8 nm
Bruttó méret: 157,4 nm
Belmagasság: 270 cm
Szobák száma: 8
Fürdőszobák: 2
Külön álló wc-k: 2
Terasz: van
Erkély: van
Szintszám: 2 szint (földszint + 1. emelet - külön megközelíthetőek)
Fűtés/hűtés: hűtő-fűtő klíma (3,5 kW), elektromos fűtőpanel és kandalló
Építés éve: 2024
Tájolás: D
Közút burkolata: aszfaltozott
Utcafronti szélesség: 20 m
Medence, jakuzzi: kertben van rá lehetőség
Szauna: kertben van rá lehetőség
Pince: nincs
Tároló: van
Garázs: van (2 férőhelyes)
Nyitott beálló férőhely: 6
Állapot
- ingatlan: kiváló
- ház/homlokzat állapota: kiváló
- szigetelés: korszerű (15 cm)
- nyílászárók: jó állapotú, modern műanyag, földszinten redőny és szúnyogháló
- tető: jó állapotú, ácsolt szerkezet, betoncserép
- burkolás, festés: igényes, jó állapotú (járólap + laminált)
Közművek
- víz: bekötve (csapadék szabad elvezetéssel), fúrt kút és locsolás mérő nincs
- gáz: nincs
- villany: bekötve (földkábel, 3x25A), érintésvédelem van, H tarifa nincs
- csatorna: bekötve
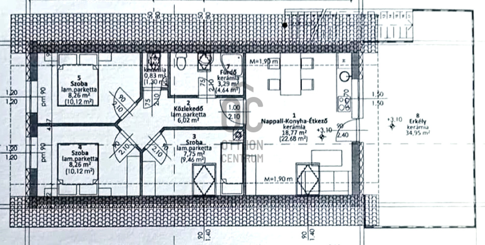
Helyiséglista:
Földszint: 64,5 nm + 22,23 nm terasz
- nappali-étkező: 22.68 m²
- hálószoba: 9.62 m²
- hálószoba: 10.12 m²
- hálószoba: 10.12 m²
- fürdőszoba: 4.64 m²
- wc: 1,3 m²
- közlekedő: 6.02 m²
- terasz: 20.23 m²
- garázs / tároló:
1. emelet: 64,3 nm + 34,95 nm erkély
- nappali-étkező: 22.68 m²
- hálószoba: 9.46 m²
- hálószoba: 10.12 m²
- hálószoba: 10.12 m²
- fürdőszoba: 4.64 m²
- wc: 1.3 m²
- közlekedő: 6.02 m²
- erkély: 34.95 m²
Összesen: 128,8 nm + 57,18 nm terasz/erkély = 185,98 nm
(A képek között mesterséges intelligencia segítségével készített látványtervek, 3D alaprajzok is vannak, amikkel bemutatom az ingatlanban rejlő potenciált. Ezek a képek tájékoztató jellegűek, a jelenlegi helyzettől eltérhetnek.)
Keressen bizalommal!
Siófok-Sóstón ez a 8 szobás, két szintes, kiváló állapotú családi ház garázzsal, 6 felszíni beállóval és zöldre néző panorámával vár. Két külön nappali-étkezős szint, hatalmas erkély és terasz, önálló tároló – tökéletes nagycsaládnak, “szülők lent, gyerekek fent” felállásra, vagy akár vendégezésre, vállalkozás mellé.
Csendes utca, sok autóhely - külön beálló rész a két szintnek! - Balaton-közeli életérzés – ha tágas otthont keresel, ez nagyon komoly opció.
Referencia szám: H515232
Besorolás: lakóingatlan, családi ház (emeletes ikerház)
Építés módja: tégla (30 cm)
Telek méret: 681 nm
Nettó méret: 128,8 nm
Bruttó méret: 157,4 nm
Belmagasság: 270 cm
Szobák száma: 8
Fürdőszobák: 2
Külön álló wc-k: 2
Terasz: van
Erkély: van
Szintszám: 2 szint (földszint + 1. emelet - külön megközelíthetőek)
Fűtés/hűtés: hűtő-fűtő klíma (3,5 kW), elektromos fűtőpanel és kandalló
Építés éve: 2024
Tájolás: D
Közút burkolata: aszfaltozott
Utcafronti szélesség: 20 m
Medence, jakuzzi: kertben van rá lehetőség
Szauna: kertben van rá lehetőség
Pince: nincs
Tároló: van
Garázs: van (2 férőhelyes)
Nyitott beálló férőhely: 6
Állapot
- ingatlan: kiváló
- ház/homlokzat állapota: kiváló
- szigetelés: korszerű (15 cm)
- nyílászárók: jó állapotú, modern műanyag, földszinten redőny és szúnyogháló
- tető: jó állapotú, ácsolt szerkezet, betoncserép
- burkolás, festés: igényes, jó állapotú (járólap + laminált)
Közművek
- víz: bekötve (csapadék szabad elvezetéssel), fúrt kút és locsolás mérő nincs
- gáz: nincs
- villany: bekötve (földkábel, 3x25A), érintésvédelem van, H tarifa nincs
- csatorna: bekötve
Helyiséglista:
Földszint: 64,5 nm + 22,23 nm terasz
- nappali-étkező: 22.68 m²
- hálószoba: 9.62 m²
- hálószoba: 10.12 m²
- hálószoba: 10.12 m²
- fürdőszoba: 4.64 m²
- wc: 1,3 m²
- közlekedő: 6.02 m²
- terasz: 20.23 m²
- garázs / tároló:
1. emelet: 64,3 nm + 34,95 nm erkély
- nappali-étkező: 22.68 m²
- hálószoba: 9.46 m²
- hálószoba: 10.12 m²
- hálószoba: 10.12 m²
- fürdőszoba: 4.64 m²
- wc: 1.3 m²
- közlekedő: 6.02 m²
- erkély: 34.95 m²
Összesen: 128,8 nm + 57,18 nm terasz/erkély = 185,98 nm
(A képek között mesterséges intelligencia segítségével készített látványtervek, 3D alaprajzok is vannak, amikkel bemutatom az ingatlanban rejlő potenciált. Ezek a képek tájékoztató jellegűek, a jelenlegi helyzettől eltérhetnek.)
Keressen bizalommal!
Regisztrációs szám
H515232
Az ingatlan adatai
Értékesités
eladó
Jogi státusz
használt
Jelleg
ház
Építési mód
tégla
Méret
128,8 m²
Bruttó méret
157,3 m²
Telek méret
681 m²
Terasz / erkély mérete
57,1 m²
Belmagasság
270 cm
Lakáson belüli szintszám
1
Tájolás
Dél
Panoráma
Zöldre néző panoráma
Állapot
Kiváló
Homlokzat állapota
Kiváló
Környék
csendes, zöld
Építés éve
2024
Fürdőszobák száma
2
Garázs
Benne van az árban
Garázs férőhely
2
Víz
Van
Villany
Van
Csatorna
Van
Többgenerációs
igen
Tároló
Önálló
Helyiségek
nappali-étkező
22.68 m²
hálószoba
9.62 m²
hálószoba
10.12 m²
hálószoba
10.12 m²
fürdőszoba
4.64 m²
wc
1.3 m²
terasz
20.23 m²
nappali-étkező
22.68 m²
hálószoba
9.46 m²
hálószoba
10.12 m²
hálószoba
10.12 m²
fürdőszoba
4.64 m²
wc
1.3 m²
erkély
34.95 m²
közlekedő
6.02 m²
közlekedő
6.02 m²
Dienes László
Hitelszakértő