Elérhető Otthon Start hitellel
Eladó lakás,
H514826
Nyíregyháza, Malomkert
51 000 000 Ft
133 000 €
- 46m²
- 2 szoba
- 1. emelet
Kivételes lehetőség a kórház közvetlen közelében!Fektessen be most!
Eladó lakás Nyíregyháza egyik legkeresettebb részén!
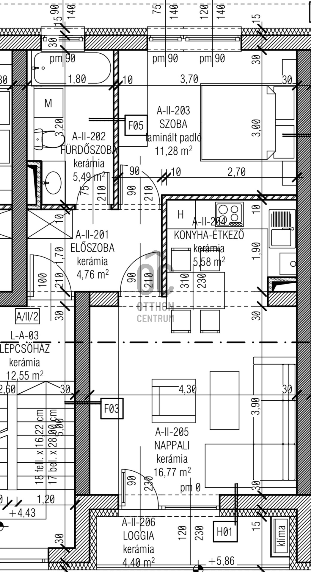
Nyíregyháza központi részén, a kórházzal szemben, kiváló elhelyezkedéssel eladó egy 44 m²-es, 1 szoba + amerikai konyhás nappalis társasházi lakás, 4 m²-es erkéllyel.
Elosztás:
előszoba • amerikai konyhás nappali • külön szoba • fürdőszoba • erkély
Ami igazán értékessé teszi:
✅ klímával felszerelt
✅ modern kondenzációs kazános fűtés
✅ saját udvari parkolóhely, ami a vételár része – a környéken szinte lehetetlen parkolni
✅ 4 m²-es erkély
Lokáció, ami mindent visz:
- kórház – 1 perc
- pláza – 1 perc
- belváros, Spar, Obi – kb. 5 perc séta
Befektetésnek is kiváló, a lakás jelenleg is bérbe van adva, így akár azonnali bevételt termelhet az új tulajdonosnak.
Tökéletes választás saját otthonnak vagy biztos befektetésnek Nyíregyháza egyik legjobb lokációjában.
További információért és megtekintéssel kapcsolatban keressen bizalommal
Az alaprajz tájékoztató jellegű.
A hirdetésben szereplő információk a megbízótól kapott adatok alapján készültek, pontosságukért felelősséget nem vállalunk!
Amennyiben vásárláshoz hitelre is szüksége van, független hitel tanácsadónk ingyenesen tud Önnek segítséget nyújtani a legjobb konstrukciók kiválasztásában és a folyamat lebonyolításában. Irodánk kereső ügyfeleinknek teljes körű szolgáltatást nyújt, szakszerű tanácsadással, energetikai tanúsítvány elkészítésével, hitelügyintézéssel és profi ügyvédi segítséggel. Abban az esetben ha az ingatlan felkeltette érdeklődését keressen bizalommal!
Nyíregyháza központi részén, a kórházzal szemben, kiváló elhelyezkedéssel eladó egy 44 m²-es, 1 szoba + amerikai konyhás nappalis társasházi lakás, 4 m²-es erkéllyel.
Elosztás:
előszoba • amerikai konyhás nappali • külön szoba • fürdőszoba • erkély
Ami igazán értékessé teszi:
✅ klímával felszerelt
✅ modern kondenzációs kazános fűtés
✅ saját udvari parkolóhely, ami a vételár része – a környéken szinte lehetetlen parkolni
✅ 4 m²-es erkély
Lokáció, ami mindent visz:
- kórház – 1 perc
- pláza – 1 perc
- belváros, Spar, Obi – kb. 5 perc séta
Befektetésnek is kiváló, a lakás jelenleg is bérbe van adva, így akár azonnali bevételt termelhet az új tulajdonosnak.
Tökéletes választás saját otthonnak vagy biztos befektetésnek Nyíregyháza egyik legjobb lokációjában.
További információért és megtekintéssel kapcsolatban keressen bizalommal
Az alaprajz tájékoztató jellegű.
A hirdetésben szereplő információk a megbízótól kapott adatok alapján készültek, pontosságukért felelősséget nem vállalunk!
Amennyiben vásárláshoz hitelre is szüksége van, független hitel tanácsadónk ingyenesen tud Önnek segítséget nyújtani a legjobb konstrukciók kiválasztásában és a folyamat lebonyolításában. Irodánk kereső ügyfeleinknek teljes körű szolgáltatást nyújt, szakszerű tanácsadással, energetikai tanúsítvány elkészítésével, hitelügyintézéssel és profi ügyvédi segítséggel. Abban az esetben ha az ingatlan felkeltette érdeklődését keressen bizalommal!
Regisztrációs szám
H514826
Az ingatlan adatai
Értékesités
eladó
Jogi státusz
használt
Jelleg
lakás
Építési mód
tégla
Méret
46 m²
Bruttó méret
48 m²
Terasz / erkély mérete
4 m²
Fűtés
gáz kazán
Belmagasság
270 cm
Tájolás
Dél
Panoráma
városi panoráma
Lépcsőház típusa
zárt lépcsőház
Állapot
Kiváló
Homlokzat állapota
Kiváló
Lépcsőház állapota
Kiváló
Környék
csendes, jó közlekedés, zöld, központi
Építés éve
2022
Fürdőszobák száma
1
Fekvés
utcai
Közös költség
8700
Víz
Van
Gáz
Van
Villany
Van
Csatorna
Van
Lift
van
Tároló
Közös
Helyiségek
nappali
16.77 m²
konyha
5.58 m²
előszoba
4.76 m²
szoba
11.28 m²
fürdőszoba-wc
5.49 m²
erkély
4.4 m²