Elérhető Otthon Start hitellel
Eladó lakás,
H514808
Pécs, Belváros
53 950 000 Ft
138 000 €
- 86m²
- 4 szoba
- földszint
Egy vagy két lakás
Egy vagy két lakás
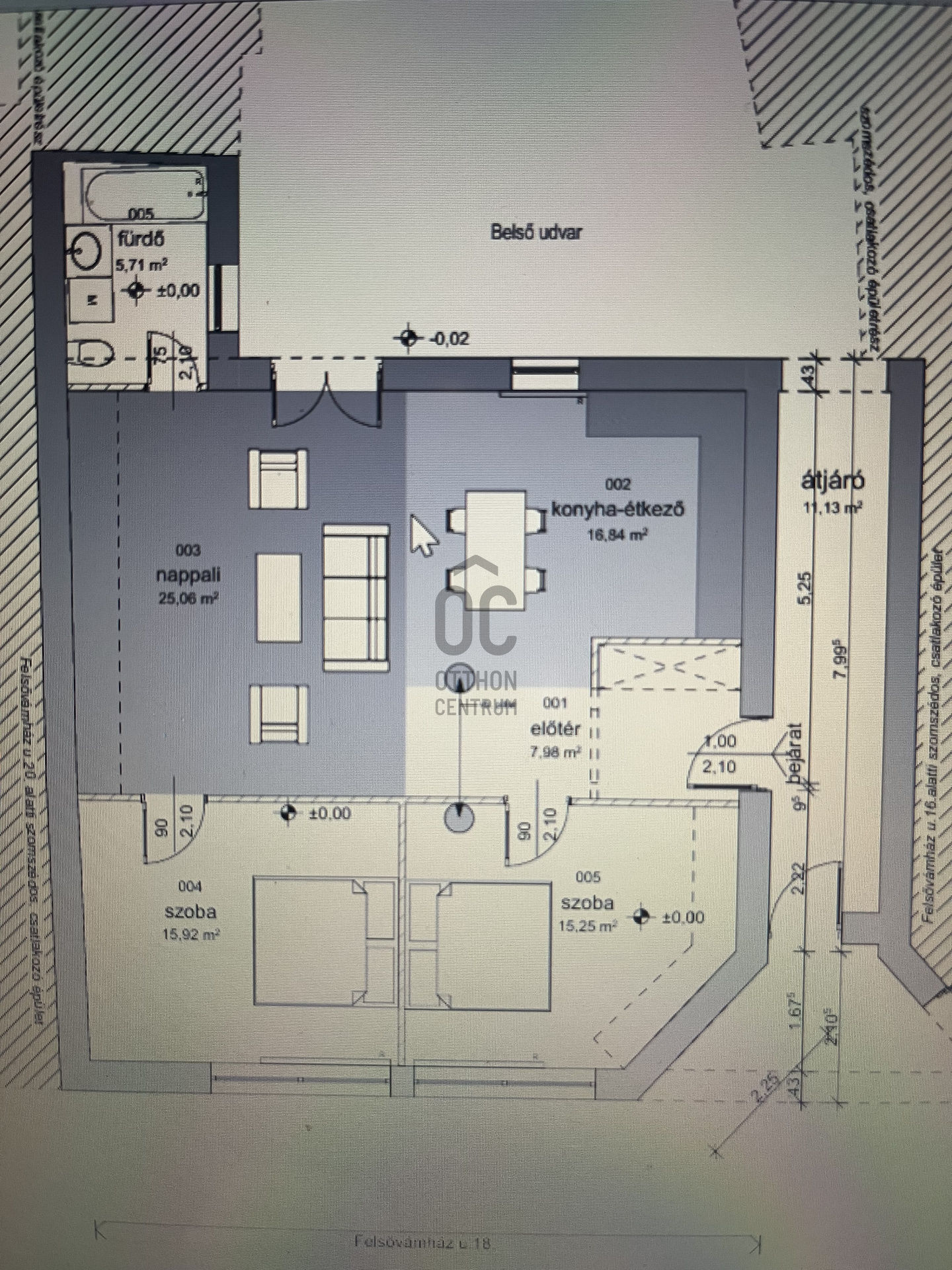
Eladásra kínáljuk ezt a belváros szélén lévő, jelenleg irodaként bejegyzett 86m2-es ingatlant.
A 2000-s évek elején épült társasházban található irodát a tágas terek jellemzik, fűtéséről modern házközponti gázkazán, hűtéséről inverteres klímák gondoskodnak.
Elhelyezkedése alapján kiválóan alkalmas irodának, de jogilag egy vagy két lakás is kialakítható belőle. Egy és két lakás kialakítására is készült koncepcióterv a helyi építési szabályok figyelembe vételével. Megegyezés szerint a tulajdonos akár vállalja az átminősítés procedúráját is.
Az udvarban 5db gépjármű számára van parkolási lehetőség az ingatlan számára.
A hirdetésben található fotók a jelenlegi állapotot tükrözik, azonban található köztük néhány kialakítható alaprajz is.
Amennyiben felkeltettük érdeklődését, keressen minket bizalommal!
Eladásra kínáljuk ezt a belváros szélén lévő, jelenleg irodaként bejegyzett 86m2-es ingatlant.
A 2000-s évek elején épült társasházban található irodát a tágas terek jellemzik, fűtéséről modern házközponti gázkazán, hűtéséről inverteres klímák gondoskodnak.
Elhelyezkedése alapján kiválóan alkalmas irodának, de jogilag egy vagy két lakás is kialakítható belőle. Egy és két lakás kialakítására is készült koncepcióterv a helyi építési szabályok figyelembe vételével. Megegyezés szerint a tulajdonos akár vállalja az átminősítés procedúráját is.
Az udvarban 5db gépjármű számára van parkolási lehetőség az ingatlan számára.
A hirdetésben található fotók a jelenlegi állapotot tükrözik, azonban található köztük néhány kialakítható alaprajz is.
Amennyiben felkeltettük érdeklődését, keressen minket bizalommal!
Regisztrációs szám
H514808
Az ingatlan adatai
Értékesités
eladó
Jogi státusz
használt
Jelleg
lakás
Építési mód
tégla
Méret
86 m²
Bruttó méret
86 m²
Kert méret
15 m²
Fűtés
központi fűtés
Belmagasság
260 cm
Tájolás
Észak
Lépcsőház típusa
zárt lépcsőház
Állapot
Jó
Homlokzat állapota
Jó
Lépcsőház állapota
Jó
Építés éve
1998
Fekvés
utcai
Társaház kert
igen
Víz
Van
Villany
Van
Csatorna
Van
Helyiségek
szoba
15 m²
szoba
15 m²
szoba
15 m²
fürdőszoba-wc
4 m²
háztartási helyiség
6 m²
nappali-konyha
31 m²
Mecseki Lászlóné - Éva
Hitelszakértő