Elérhető Otthon Start hitellel
Eladó családi ház,
H514120
Orfű
84 900 000 Ft
224 000 €
- 97m²
- 5 szoba
In the inner area of Orfű, a charming farmhouse with a large plot is for sale.
Do you long for a place where you can enjoy your morning coffee with a panoramic view of a church tower and the peacefulness of the edge of the forest? This unique, authentic farmhouse awaits its new owner on a huge, nearly 6000 m² double plot in the inner area of Orfű.
Spacious area, endless possibilities: The total area of 5956 m², located on two separate parcels, actually offers space for 2-3 building plots – ideal for a family residence, guesthouse, or investment. It provides a wonderful panorama of the village of Orfű, the church tower, and the surrounding hills. One end of the plot borders a forest.
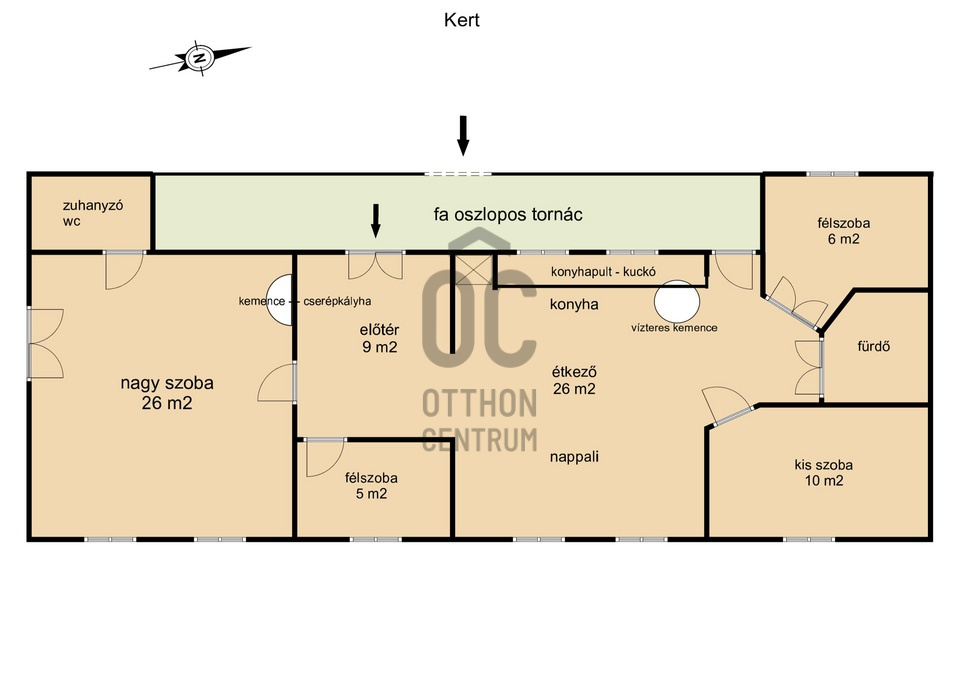
The beautiful, porch-style house is under local protection, with a net floor area of 97 m², which consists of an entrance hall, a large kitchen-dining-living room (26 m²), a large room that can also have a separate entrance with its own bathroom and toilet, a cozy stove, 2 half-rooms, a smaller room, and another bathroom and toilet. The bathrooms were renovated two years ago. The house includes a 15 m² cellar accessible from the outside, as well as an outbuilding, a shed that needs reinforcement.
The house was modernized in 2008, including the replacement of water and electrical wiring, the installation of exposed wooden beams, and the creation of drainage around the house. At that time, two tiled stoves were completed, one of which in the living room has a water-circulating design, which operates the radiator central heating system. The other one is in the large room and can be heated from the entrance hall through a Secessionist tiled stove. (Tip: This large room can be separated from the rest of the living space and can function as a separate apartment with its own street entrance.) The house features custom-made external and internal windows and doors, the cold flooring is made of brick tiles, while the wooden floor is custom-made by a carpenter but needs renovation. The ceiling and roof structure are still in their original condition.
More than just a property: a way of life.
This estate is not just made of walls – its strong aura and peace immediately captivate you. Here, the forest is your neighbor, and the view shows a different face every day.
The property is free of encumbrances and can be occupied immediately.
Come and feel its atmosphere, and be proud to be a resident of Orfű!
Please take a look at the informative floor plan!
Feel free to call for more information!
Spacious area, endless possibilities: The total area of 5956 m², located on two separate parcels, actually offers space for 2-3 building plots – ideal for a family residence, guesthouse, or investment. It provides a wonderful panorama of the village of Orfű, the church tower, and the surrounding hills. One end of the plot borders a forest.
The beautiful, porch-style house is under local protection, with a net floor area of 97 m², which consists of an entrance hall, a large kitchen-dining-living room (26 m²), a large room that can also have a separate entrance with its own bathroom and toilet, a cozy stove, 2 half-rooms, a smaller room, and another bathroom and toilet. The bathrooms were renovated two years ago. The house includes a 15 m² cellar accessible from the outside, as well as an outbuilding, a shed that needs reinforcement.
The house was modernized in 2008, including the replacement of water and electrical wiring, the installation of exposed wooden beams, and the creation of drainage around the house. At that time, two tiled stoves were completed, one of which in the living room has a water-circulating design, which operates the radiator central heating system. The other one is in the large room and can be heated from the entrance hall through a Secessionist tiled stove. (Tip: This large room can be separated from the rest of the living space and can function as a separate apartment with its own street entrance.) The house features custom-made external and internal windows and doors, the cold flooring is made of brick tiles, while the wooden floor is custom-made by a carpenter but needs renovation. The ceiling and roof structure are still in their original condition.
More than just a property: a way of life.
This estate is not just made of walls – its strong aura and peace immediately captivate you. Here, the forest is your neighbor, and the view shows a different face every day.
The property is free of encumbrances and can be occupied immediately.
Come and feel its atmosphere, and be proud to be a resident of Orfű!
Please take a look at the informative floor plan!
Feel free to call for more information!
Regisztrációs szám
H514120
Az ingatlan adatai
Értékesités
eladó
Jogi státusz
használt
Jelleg
ház
Építési mód
vályog
Méret
97 m²
Bruttó méret
120 m²
Telek méret
5 956 m²
Fűtés
cserépkályha (vegyes)
Belmagasság
265 cm
Tájolás
Nyugat
Panoráma
Zöldre néző panoráma
Állapot
Átlagos
Homlokzat állapota
Átlagos
Pince
Önálló
Környék
zöld
Építés éve
2008
Fürdőszobák száma
2
Víz
Van
Villany
Van
Csatorna
Van
Helyiségek
előszoba
10 m²
nappali-konyha
26 m²
szoba
26 m²
szoba
10 m²
félszoba
5 m²
félszoba
5 m²
fürdőszoba-wc
4 m²
fürdőszoba-wc
4 m²
Mecseki Lászlóné - Éva
Hitelszakértő