122 500 000 Ft
325 000 €
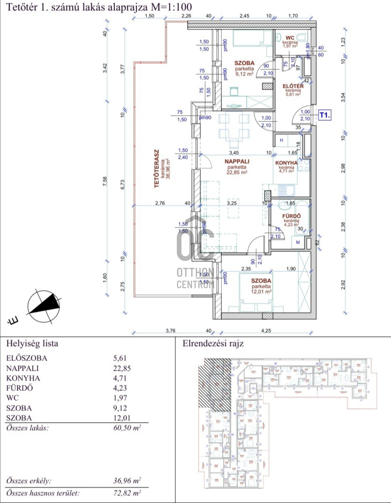
- 61m²
- 3 szoba
- 4. emelet
Kiváló állapotú 3 szobás lakás hatalmas terasszal.
Fedezze fel ezt a kivételes lehetőséget Budapest 13. kerületében, Angyalföld szívében, ahol a modern életstílus és a nyugalom találkozik. Ez a használt, de kiváló állapotú lakás ideális választás családok, fiatal szakemberek vagy befektetők számára, akik egy kényelmes, tágas otthonra vágynak. Az ingatlan 61 négyzetméteres alapterülettel rendelkezik, három világos szobájával és egy jól megtervezett fürdőszobájával tökéletesen megfelel a mai kor elvárásainak.
Az ingatlan különlegessége a 37 négyzetméteres terasz, amely nem csupán a lakás bővítményeként szolgál, hanem egy igazi oázist kínál a pihenésre és szórakozásra. Képzelje el, ahogy a nyári estéken barátokkal tölti itt az időt, vagy csak élvezi a reggeli kávéját a friss levegőn. A házközponti fűtés egyedi mérési lehetőséggel biztosítja a kellemes hőmérsékletet télen, így Önnek nem kell aggódnia a magas rezsiköltségek miatt.
Angyalföld nem csupán egy kellemes lakóhely, hanem a város egyik legdinamikusabban fejlődő területe is. A környék biztonságos, csendes utcákkal és zöld területekkel várja Önt. A közlekedési lehetőségek széles választéka garantálja, hogy könnyedén elérheti Budapest bármely pontját. A közeli metró- és buszmegállók, valamint a villamosvonalak gyors és kényelmes utazást biztosítanak, legyen szó munkába járásról vagy a város felfedezéséről. Ezen kívül a környéken számos bolt, étterem és szórakozási lehetőség található, így minden szükséges szolgáltatás karnyújtásnyira van.
A közeli parkok és játszóterek ideális helyszínt biztosítanak a családok számára, ahol a gyerekek biztonságos környezetben játszhatnak. Az ingatlan elhelyezkedése lehetővé teszi, hogy a városi élet nyüzsgésétől távol, mégis minden fontos dologhoz közel élvezhesse a mindennapokat. Bármilyen kérdése merülne fel ezzel a kivételes ingatlannal kapcsolatban, kérem, ne habozzon felkeresni.
Szívesen állok rendelkezésére, hogy minden részletet megosszak Önnel, és segítsek megtalálni álmai otthonát vagy befektetési lehetőségét. Az ingatlanpiac folyamatosan változik, ezért érdemes mihamarabb lépni, hogy ne maradjon le erről a nagyszerű lehetőségről!
Az ingatlan különlegessége a 37 négyzetméteres terasz, amely nem csupán a lakás bővítményeként szolgál, hanem egy igazi oázist kínál a pihenésre és szórakozásra. Képzelje el, ahogy a nyári estéken barátokkal tölti itt az időt, vagy csak élvezi a reggeli kávéját a friss levegőn. A házközponti fűtés egyedi mérési lehetőséggel biztosítja a kellemes hőmérsékletet télen, így Önnek nem kell aggódnia a magas rezsiköltségek miatt.
Angyalföld nem csupán egy kellemes lakóhely, hanem a város egyik legdinamikusabban fejlődő területe is. A környék biztonságos, csendes utcákkal és zöld területekkel várja Önt. A közlekedési lehetőségek széles választéka garantálja, hogy könnyedén elérheti Budapest bármely pontját. A közeli metró- és buszmegállók, valamint a villamosvonalak gyors és kényelmes utazást biztosítanak, legyen szó munkába járásról vagy a város felfedezéséről. Ezen kívül a környéken számos bolt, étterem és szórakozási lehetőség található, így minden szükséges szolgáltatás karnyújtásnyira van.
A közeli parkok és játszóterek ideális helyszínt biztosítanak a családok számára, ahol a gyerekek biztonságos környezetben játszhatnak. Az ingatlan elhelyezkedése lehetővé teszi, hogy a városi élet nyüzsgésétől távol, mégis minden fontos dologhoz közel élvezhesse a mindennapokat. Bármilyen kérdése merülne fel ezzel a kivételes ingatlannal kapcsolatban, kérem, ne habozzon felkeresni.
Szívesen állok rendelkezésére, hogy minden részletet megosszak Önnel, és segítsek megtalálni álmai otthonát vagy befektetési lehetőségét. Az ingatlanpiac folyamatosan változik, ezért érdemes mihamarabb lépni, hogy ne maradjon le erről a nagyszerű lehetőségről!
Regisztrációs szám
H513840
Az ingatlan adatai
Értékesités
eladó
Jogi státusz
használt
Jelleg
lakás
Építési mód
tégla
Méret
61 m²
Bruttó méret
98 m²
Terasz / erkély mérete
37 m²
Fűtés
központi fűtés
Belmagasság
270 cm
Lakáson belüli szintszám
1
Tájolás
Észak-kelet
Lépcsőház típusa
zárt lépcsőház
Állapot
Kiváló
Homlokzat állapota
Kiváló
Lépcsőház állapota
Jó
Környék
csendes, jó közlekedés
Építés éve
2019
Fürdőszobák száma
1
Fekvés
utcai
Víz
Van
Gáz
Van
Villany
Van
Csatorna
Van
Lift
van
Helyiségek
nappali
23 m²
dolgozószoba
12 m²
hálószoba
9 m²
előszoba
6 m²
konyha
5 m²
fürdőszoba
4 m²
wc
2 m²
terasz
37 m²