196 000 000 Ft
523 000 €
- 108m²
- 4 szoba
- 1. emelet
Make your dreams come true in Belbuda! An exceptional opportunity at the Buda foot of the Margaret Bridge.
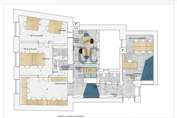
I am offering for sale a property located on a quiet and peaceful section of Frankel Leó Street, which is currently operating as an office. This exceptional 108 sqm property is suitable for conversion into a home with a living room and 3 to 4 bedrooms, tailored to your own needs and ideas. It is an ideal choice for those who wish to experience the vibrancy of urban life in a premium environment.
The property is free of encumbrances and is being sold as an apartment, although it currently functions as an office. The 108 sqm property, accessible from a well-maintained staircase, is in a technically renovated condition and offers the possibility of creating a premium home with a living room and 3 to 4 bedrooms and double bathrooms according to your own needs and vision.
Main features:
- Technical condition: Gas central heating, air conditioning, modernized insulated windows and flooring.
- Layout: Spacious, bright areas that can be flexibly arranged.
108 sqm | 4-5 separate rooms – spacious spaces that can be well varied.
- Location: A central yet calm area with excellent transport and infrastructure.
Bem József Square, the Danube bank, Batthyány Square, and Millenáris are just a few minutes' walk away. Proximity to the Danube: morning walks, evening runs, panoramic relaxation. - Transportation: Excellent accessibility! Easily reachable from anywhere in Budapest by public transport or by car.
This property is an ideal choice for large families or couples looking for a comfortable home tailored to their own needs in one of Buda's most sought-after areas, or even for creating a representative yet cozy living space. Additionally, it is suitable for investors, operating as both residential and commercial property, but the large floor area and spacious rooms also allow for the creation of 2 or 3 separate apartments. The currently thriving office can even be taken over with tenants.
The prestige of the area – elegant office buildings, quality restaurants, cultural and recreational opportunities – guarantees long-term value retention and livability. This property is not just an apartment; it is a lifestyle choice in one of the best-located areas of Belbuda.
???? Interested in the details? Feel free to contact me and view this special opportunity in person!
The property is free of encumbrances and is being sold as an apartment, although it currently functions as an office. The 108 sqm property, accessible from a well-maintained staircase, is in a technically renovated condition and offers the possibility of creating a premium home with a living room and 3 to 4 bedrooms and double bathrooms according to your own needs and vision.
Main features:
- Technical condition: Gas central heating, air conditioning, modernized insulated windows and flooring.
- Layout: Spacious, bright areas that can be flexibly arranged.
108 sqm | 4-5 separate rooms – spacious spaces that can be well varied.
- Location: A central yet calm area with excellent transport and infrastructure.
Bem József Square, the Danube bank, Batthyány Square, and Millenáris are just a few minutes' walk away. Proximity to the Danube: morning walks, evening runs, panoramic relaxation. - Transportation: Excellent accessibility! Easily reachable from anywhere in Budapest by public transport or by car.
This property is an ideal choice for large families or couples looking for a comfortable home tailored to their own needs in one of Buda's most sought-after areas, or even for creating a representative yet cozy living space. Additionally, it is suitable for investors, operating as both residential and commercial property, but the large floor area and spacious rooms also allow for the creation of 2 or 3 separate apartments. The currently thriving office can even be taken over with tenants.
The prestige of the area – elegant office buildings, quality restaurants, cultural and recreational opportunities – guarantees long-term value retention and livability. This property is not just an apartment; it is a lifestyle choice in one of the best-located areas of Belbuda.
???? Interested in the details? Feel free to contact me and view this special opportunity in person!
Regisztrációs szám
H513386
Az ingatlan adatai
Értékesités
eladó
Jogi státusz
használt
Jelleg
lakás
Építési mód
tégla
Méret
108 m²
Bruttó méret
108 m²
Fűtés
Gáz cirkó
Belmagasság
340 cm
Lakáson belüli szintszám
1
Tájolás
Kelet
Lépcsőház típusa
körfolyosó
Állapot
Jó
Homlokzat állapota
Kiváló
Lépcsőház állapota
Jó
Környék
jó közlekedés, központi
Építés éve
1910
Fürdőszobák száma
1
Fekvés
utcai
Víz
Van
Gáz
Van
Villany
Van
Csatorna
Van
Helyiségek
nappali
22 m²
szoba
17.5 m²
szoba
20 m²
szoba
21 m²
előszoba
12 m²
Örvössy Tamás
Hitelszakértő