Elérhető Otthon Start hitellel
Eladó családi ház,
H513292
Debrecen, Biharikert
108 500 000 Ft
287 000 €
- 107m²
- 3 szoba
Debrecen, Biharikert, 3 szobás, önálló családi ház, 648 nm-es telken eladó!
Debrecenben a kedvelt Biharikert városrészben, eladóvá vált, 107 nm-es tetőteres ház.
Ideális választás azok számára , akik szeretnék megteremteni családjuk otthonát egy csendes, mégis élénk környezetben.
Masszív beton alapra épült 1989 -ben. Falazatának, gázcirkó fűtésének és a födém szigetelésének köszönhetően kedvező fenntartási költségű. Nyílászárói fából vannak, hőszigetelt üvegezéssel, redőnnyel ellátva. Tágas nappalival és kettő kényelmes szobával rendelkezik, amelyek mind a családi együttlétek, mind a pihenés tökéletes helyszínéül szolgálnak. A nappali méretének és adottságainak köszönhetően, az ingatlan könnyen 4 szobássá alakítható! A két fürdőszoba kényelmet biztosít a mindennapok során, így a reggeli készülődés nem jelenthet gondot a családtagok számára. A közel 10 nm-es terasz ideális helyszín a reggeli kávézásra vagy a naplemente megcsodálására. A 648 négyzetméteres telek bőséges helyet kínál a szabadban való tevékenységekhez, legyen szó gyerekek játékáról vagy baráti összejövetelekről. A kertben fúrt kút biztosítja a növények öntözését . Az udvarra akár több autó beállása is megoldható a lemez garázson kívül. Az ingatlan lakható állapotú, de a leendő tulajdonos saját ízlésére formálhatja a teret, hogy az számára is otthonná váljon. A környék ellátottsága kiváló, számos bolt, iskola és egészségügyi intézmény található a közelben, amelyek megkönnyítik a mindennapi életet. A Biharikert városrész biztonságos, csendes utcái ideálisak a gyermekek számára, akik szabadon játszhatnak a szomszédságban. A közlekedési lehetőségek is kedvezőek, hiszen a város tömegközlekedési hálózata könnyen elérhető, így a Debrecen belvárosába történő bejutás is gyors és egyszerű. Ez a ház nem csupán egy ingatlan, hanem a családi élet színtere is lehet, ahol a szép emlékek születnek...
Csok + és 3%-os hitelre is alkalmas!
További felvilágosításért várom megkeresését!
Debrecen, eladó, családi ház, önálló, 3 szoba, gázfűtés, Biharikert
Ideális választás azok számára , akik szeretnék megteremteni családjuk otthonát egy csendes, mégis élénk környezetben.
Masszív beton alapra épült 1989 -ben. Falazatának, gázcirkó fűtésének és a födém szigetelésének köszönhetően kedvező fenntartási költségű. Nyílászárói fából vannak, hőszigetelt üvegezéssel, redőnnyel ellátva. Tágas nappalival és kettő kényelmes szobával rendelkezik, amelyek mind a családi együttlétek, mind a pihenés tökéletes helyszínéül szolgálnak. A nappali méretének és adottságainak köszönhetően, az ingatlan könnyen 4 szobássá alakítható! A két fürdőszoba kényelmet biztosít a mindennapok során, így a reggeli készülődés nem jelenthet gondot a családtagok számára. A közel 10 nm-es terasz ideális helyszín a reggeli kávézásra vagy a naplemente megcsodálására. A 648 négyzetméteres telek bőséges helyet kínál a szabadban való tevékenységekhez, legyen szó gyerekek játékáról vagy baráti összejövetelekről. A kertben fúrt kút biztosítja a növények öntözését . Az udvarra akár több autó beállása is megoldható a lemez garázson kívül. Az ingatlan lakható állapotú, de a leendő tulajdonos saját ízlésére formálhatja a teret, hogy az számára is otthonná váljon. A környék ellátottsága kiváló, számos bolt, iskola és egészségügyi intézmény található a közelben, amelyek megkönnyítik a mindennapi életet. A Biharikert városrész biztonságos, csendes utcái ideálisak a gyermekek számára, akik szabadon játszhatnak a szomszédságban. A közlekedési lehetőségek is kedvezőek, hiszen a város tömegközlekedési hálózata könnyen elérhető, így a Debrecen belvárosába történő bejutás is gyors és egyszerű. Ez a ház nem csupán egy ingatlan, hanem a családi élet színtere is lehet, ahol a szép emlékek születnek...
Csok + és 3%-os hitelre is alkalmas!
További felvilágosításért várom megkeresését!
Debrecen, eladó, családi ház, önálló, 3 szoba, gázfűtés, Biharikert
Regisztrációs szám
H513292
Az ingatlan adatai
Értékesités
eladó
Jogi státusz
használt
Jelleg
ház
Építési mód
szilikát
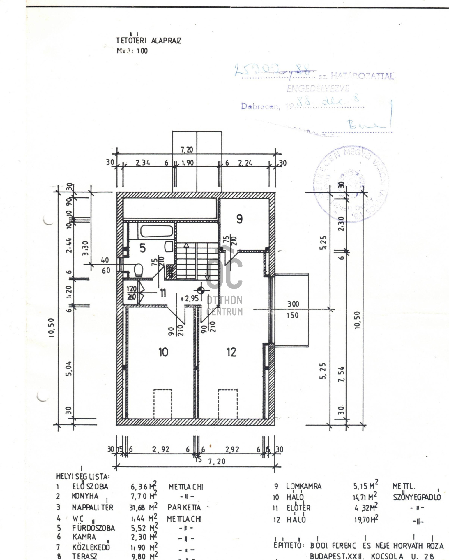
Méret
107 m²
Bruttó méret
120 m²
Telek méret
648 m²
Terasz / erkély mérete
9,8 m²
Fűtés
Gáz cirkó
Belmagasság
270 cm
Lakáson belüli szintszám
1
Tájolás
Dél
Állapot
Átlagos
Homlokzat állapota
Átlagos
Környék
csendes, jó közlekedés
Építés éve
1989
Fürdőszobák száma
2
Víz
Van
Gáz
Van
Villany
Van
Csatorna
Van
Helyiségek
konyha-étkező
7.7 m²
nappali
31.7 m²
szoba
19.7 m²
szoba
14.7 m²
fürdőszoba
5.5 m²
fürdőszoba-wc
6 m²
wc
1.44 m²
kamra
2.3 m²
Czellér András
Hitelszakértő