Eladó lakás, H513288
Budapest III. kerület, Aranyhegy, Almáskert utca

135 000 000 Ft

344 000 €

  • 61m²
  • 3 szoba
  • 1. emelet
Kiemelt megbízás

FOR SALE: New construction 61 m², 3-room apartment on the upper floor with a terrace in the III. District!

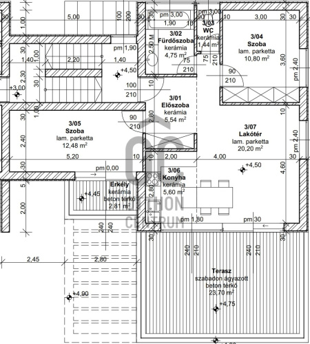
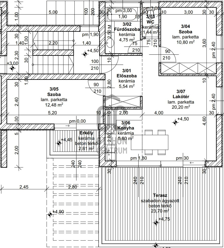
The property is a 61 m² newly built apartment with 3 rooms, located on the first floor. Its official designation is Minimal Energy Requirement. The operating costs of these properties, given today’s technological solutions, are among the lowest available. Properties in this category far exceed the nearly zero energy requirement construction energy regulations. This well-equipped smart home is located in a quiet, peaceful, family-friendly environment. A large terrace makes everyday life even more pleasant in this property, which is built with quality workmanship. The kitchen features Italian Veneta Cucine furnishings, and the equipment includes a Samsung refrigerator, as well as a Miele dishwasher and oven, ensuring reliable and premium quality usage. The bathroom is equipped with a Zen Cersanit bathtub, a Hansgrohe shower, and a RAK sink and toilet. The walls are covered with Benjamin Moore (USA) paint, and the doors are from Juga Doors. The bathroom furniture is provided by Wellis, known for its stylish and practical design. The layout includes separate rooms, a separate toilet and bathroom, a heat pump heating and cooling system, and numerous optional extras such as a smart home system based on Zigbee/Z-wave combined with star point electrical installation. Areas that can be integrated into the smart home include shading technology (shutters and blinds), secondary heating/cooling system, air technology (integration of a central ventilation system), lighting technology (integration of light switches), garden irrigation system, temperature control options for each room, motorized valves, construction of a closed storage unit for rainwater, integrated with an irrigation system, which can further enhance the comfort provided by this property. The area is ideal for relaxation and rejuvenation. Thanks to the green, fresh air, and the sound of chirping birds, you can enjoy a high-quality lifestyle. A train and bus stop are located within a few minutes' walking distance. Its official designation is Minimal Energy Requirement. The operating costs of these properties, given today’s technological solutions, are among the lowest available. Properties in this category far exceed the nearly zero energy requirement construction energy regulations. We offer tailored mortgage solutions for individual needs. Our bank-independent Credit Center competes for you with offers from all banks and financial institutions available in the country, free of charge. Our staff, with extensive professional experience, is ready to assist you with comprehensive CSOK PLUS and HOME START PROGRAM administration at a pre-arranged time, even after normal working hours. For more information and to arrange a viewing, please call us with confidence!

Regisztrációs szám

H513288

Az ingatlan adatai

Értékesités
eladó
Jogi státusz
használt
Jelleg
lakás
Építési mód
tégla
Méret
61 m²
Bruttó méret
61 m²
Terasz / erkély mérete
26,5 m²
Fűtés
hőszivattyú
Belmagasság
285 cm
Tájolás
Dél
Panoráma
Zöldre néző panoráma
Lépcsőház típusa
zárt lépcsőház
Állapot
Kiváló
Homlokzat állapota
Kiváló
Lépcsőház állapota
Kiváló
Környék
csendes, zöld
Építés éve
2025
Fürdőszobák száma
1
Fekvés
kertre néző
Garázs
Kötelezően vásárolandó
Víz
Van
Gáz
Utcán
Villany
Van
Csatorna
Van

Helyiségek

fürdőszoba
4.75 m²
wc
1.44 m²
szoba
10.8 m²
előszoba
5.54 m²
nappali
20.2 m²
konyha
5.6 m²
szoba
12.48 m²

Irodánk kínálatából - VII. kerület - Kertész utca

for sale apartment

Index image
29

kiadó üzleti célú ingatlan

Index image
10

for sale apartment

Index image
29

for sale apartment

Index image
20

for sale apartment

Index image
21

eladó lakás

Index image
20

for sale panel apartment

Index image
data_sheet.details.realestate.section.main.otthonstart_flag.label
23

for sale apartment

Index image
15

eladó családi ház

Index image
Elérhető Otthon Start hitellel
10

for sale apartment

Index image
data_sheet.details.realestate.section.main.otthonstart_flag.label
19