Elérhető Otthon Start hitellel
Eladó ikerház,
H513052
Balatonföldvár
64 900 000 Ft
170 000 €
- 44,8m²
- 2 szoba
ÚJJÁÉPÍTETT IKERHÁZ-FÉL BALATONFÖLDVÁRON – NYUGALOM, MINŐSÉG, KIVÁLÓ ELHELYEZKEDÉS
Balatonföldvár csendes, zöldövezeti részén, mégis a központhoz közel kínáljuk megvételre ezt a teljes körűen újjáépített, modern kialakítású ikerház-felet, amely ideális választás állandó otthonnak vagy prémium nyaralónak.
A világos nappali a közös pillanatok tere, a két hálószoba pedig a nyugodt elvonulásé. A fedett terasz a nyári esték kedvenc helyszíne lesz – beszélgetésekhez, borozáshoz, elcsendesedéshez.
A saját, kb. 300 nm-es kert intim, zöld menedék, ahol a város zaja megszűnik létezni.árolásról.
Főbb jellemzők:
Nappali + 1 hálószoba
Világos, jól tagolt belső terek
Fedett terasz, amely tökéletes helyszíne a reggeli kávéknak vagy esti pihenésnek
Kb. 300 nm saját kert, intim, zöld környezetben (használati megosztással)
Teljesen újjáépített műszaki és esztétikai állapot
Alacsony fenntartási költségek, korszerű megoldások
Elhelyezkedés:
Nyugodt, családias környezet
Balatonföldvár központja, kikötő, strand, üzletek rövid időn belül elérhetők
Kiváló infrastruktúra, mégis természetközeli életérzés
Felszereltség és extrák:
Teljes körűen felújított: új tető, új burkolatok, új nyílászárók, új festés
15 cm homlokzati szigetelés
Klíma Gree COMFORT Pro inverteres mono szett
Elektromos padlófűtés és elektromos törölközőszárító radiátor a fürdőben (külön kérhető energia tárolós napelem)
Szúnyoghálók és redőnyök minden ablakon
Konyhabútor (felár ellenében gépesítve)
Külön közművek
Használati megosztással osztott, gondozott kert
A telek két utcára nyílik, így a két ikernyaraló teljesen független egymástól
Kinek ajánljuk?
Akik minőségi, azonnal költözhető ingatlant keresnek a Balaton déli partján
Családoknak, pároknak, vagy akár befektetőknek
Azoknak, akik nem szeretnének kompromisszumot kötni elhelyezkedés, nyugalom és értékállóság között
További információért és megtekintésért keressen bizalommal!
Ez az ingatlan ritka lehetőség Balatonföldváron.
Kérem vegye figyelembe, a fotók látványtervek, az építkezési folyamat okán!
#újjáépítettház #ikerház #azonnalköltözhető #modernotthon #családiotthon #kertesingatlan #duplagarázs #balatonföldvár #balatondélipart #balatonközel #balatonhome #balatonlife #balatonimálom #otthontkeresek #újkezdet #állandólakhatás #nyaralóésotthon #értékálló
A világos nappali a közös pillanatok tere, a két hálószoba pedig a nyugodt elvonulásé. A fedett terasz a nyári esték kedvenc helyszíne lesz – beszélgetésekhez, borozáshoz, elcsendesedéshez.
A saját, kb. 300 nm-es kert intim, zöld menedék, ahol a város zaja megszűnik létezni.árolásról.
Főbb jellemzők:
Nappali + 1 hálószoba
Világos, jól tagolt belső terek
Fedett terasz, amely tökéletes helyszíne a reggeli kávéknak vagy esti pihenésnek
Kb. 300 nm saját kert, intim, zöld környezetben (használati megosztással)
Teljesen újjáépített műszaki és esztétikai állapot
Alacsony fenntartási költségek, korszerű megoldások
Elhelyezkedés:
Nyugodt, családias környezet
Balatonföldvár központja, kikötő, strand, üzletek rövid időn belül elérhetők
Kiváló infrastruktúra, mégis természetközeli életérzés
Felszereltség és extrák:
Teljes körűen felújított: új tető, új burkolatok, új nyílászárók, új festés
15 cm homlokzati szigetelés
Klíma Gree COMFORT Pro inverteres mono szett
Elektromos padlófűtés és elektromos törölközőszárító radiátor a fürdőben (külön kérhető energia tárolós napelem)
Szúnyoghálók és redőnyök minden ablakon
Konyhabútor (felár ellenében gépesítve)
Külön közművek
Használati megosztással osztott, gondozott kert
A telek két utcára nyílik, így a két ikernyaraló teljesen független egymástól
Kinek ajánljuk?
Akik minőségi, azonnal költözhető ingatlant keresnek a Balaton déli partján
Családoknak, pároknak, vagy akár befektetőknek
Azoknak, akik nem szeretnének kompromisszumot kötni elhelyezkedés, nyugalom és értékállóság között
További információért és megtekintésért keressen bizalommal!
Ez az ingatlan ritka lehetőség Balatonföldváron.
Kérem vegye figyelembe, a fotók látványtervek, az építkezési folyamat okán!
#újjáépítettház #ikerház #azonnalköltözhető #modernotthon #családiotthon #kertesingatlan #duplagarázs #balatonföldvár #balatondélipart #balatonközel #balatonhome #balatonlife #balatonimálom #otthontkeresek #újkezdet #állandólakhatás #nyaralóésotthon #értékálló
Regisztrációs szám
H513052
Az ingatlan adatai
Értékesités
eladó
Jogi státusz
használt
Jelleg
ház
Építési mód
tégla
Méret
44,8 m²
Bruttó méret
65 m²
Telek méret
300 m²
Terasz / erkély mérete
19,1 m²
Fűtés
egyéb
Belmagasság
260 cm
Tájolás
Dél-kelet
Állapot
Kiváló
Homlokzat állapota
Kiváló
Környék
csendes, jó közlekedés, zöld, központi
Építés éve
1973
Fürdőszobák száma
1
Víz
Van
Gáz
Utcán
Villany
Van
Csatorna
Van
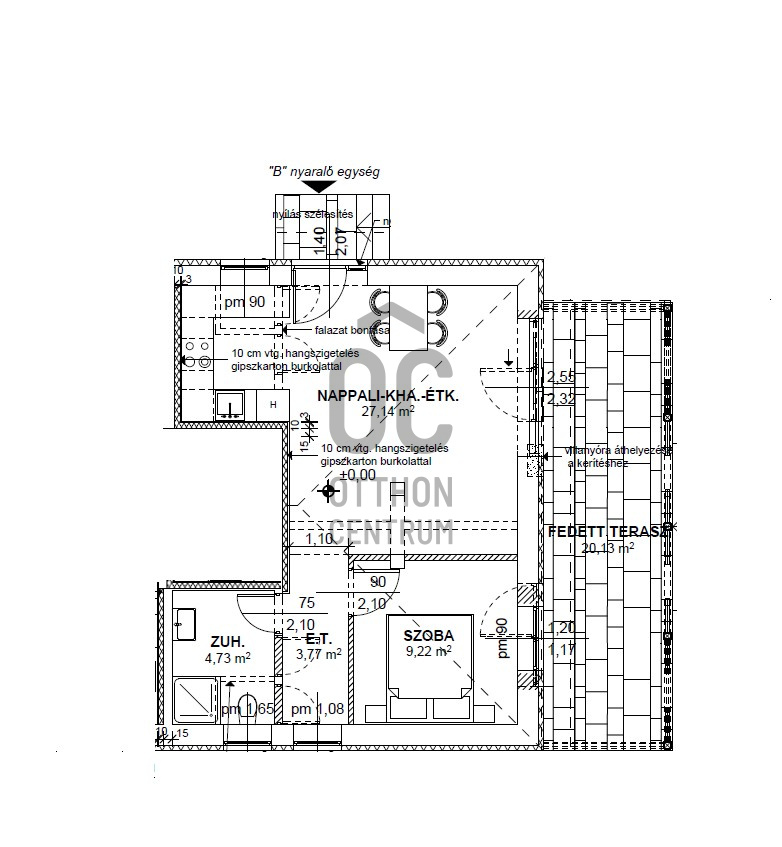
Helyiségek
nappali-konyha
27.14 m²
szoba
9.22 m²
fürdőszoba-wc
4.73 m²
közlekedő
3.77 m²
terasz
20.13 m²
Dienes László
Hitelszakértő