280 000 Ft
740 €
- 75m²
- 2 szoba
- 3. emelet
Újlipótvárosi régies hangulatú, 2 szobás lakás - nyugodt otthon
Kiadó hosszú távra egy 2 szobás, 3. emeleti lakás Újlipótváros (XIII. kerület) csendesebb, közkedvelt részén.
Közlekedés, lokáció:
A lakás a XIII. kerületben a Dózsa György úti metrómegálló közelében van a Dunához közel eső részen. Tömegközlekedés szempontjából is kiváló, a közelben jár a 15-ös busz, a 75-ös és 79-es trolibusz. A Dunapart 4-500 m-re gyalog sincs messze. Közelben a Lehel téri piac, de a környéken megtalálható számos egyéb szolgáltatás is.
Épület:
Ez az épület 1909-10-ben épült Habich Károly műépítész tervei alapján, jellegzetes újlipótvárosi bérházként a szecessziós korban népies, historizáló motívumos homlokzati stílussal, hangsúlyos sarokház kialakítással. A lakás a többszöri felújítás ellenére is megőrizte régies jellegét, többek között eredeti öntött terazzo burkolattal rendelkezik még a konyhában és a fürdőben is, és eredeti fa nyílászárói is még korhűen őrzik a régi idők hangulatát. Lépcsőháza szépen felújított. Műkő lépcső és a díszes kovácsolt vas korlátok is kifogástalan állapotban díszítik a tágas lépcsőházat. Néhány éve kapott új, modern liftet is a hangulatos belső udvar felől. Függőfolyosós rendszerben közelíthetőek meg az egyes lakások a társasházban.
Parkolás utcán, fizető övezetben, bejelentkező lakóként kedvezményes parkolással.
Lakás:
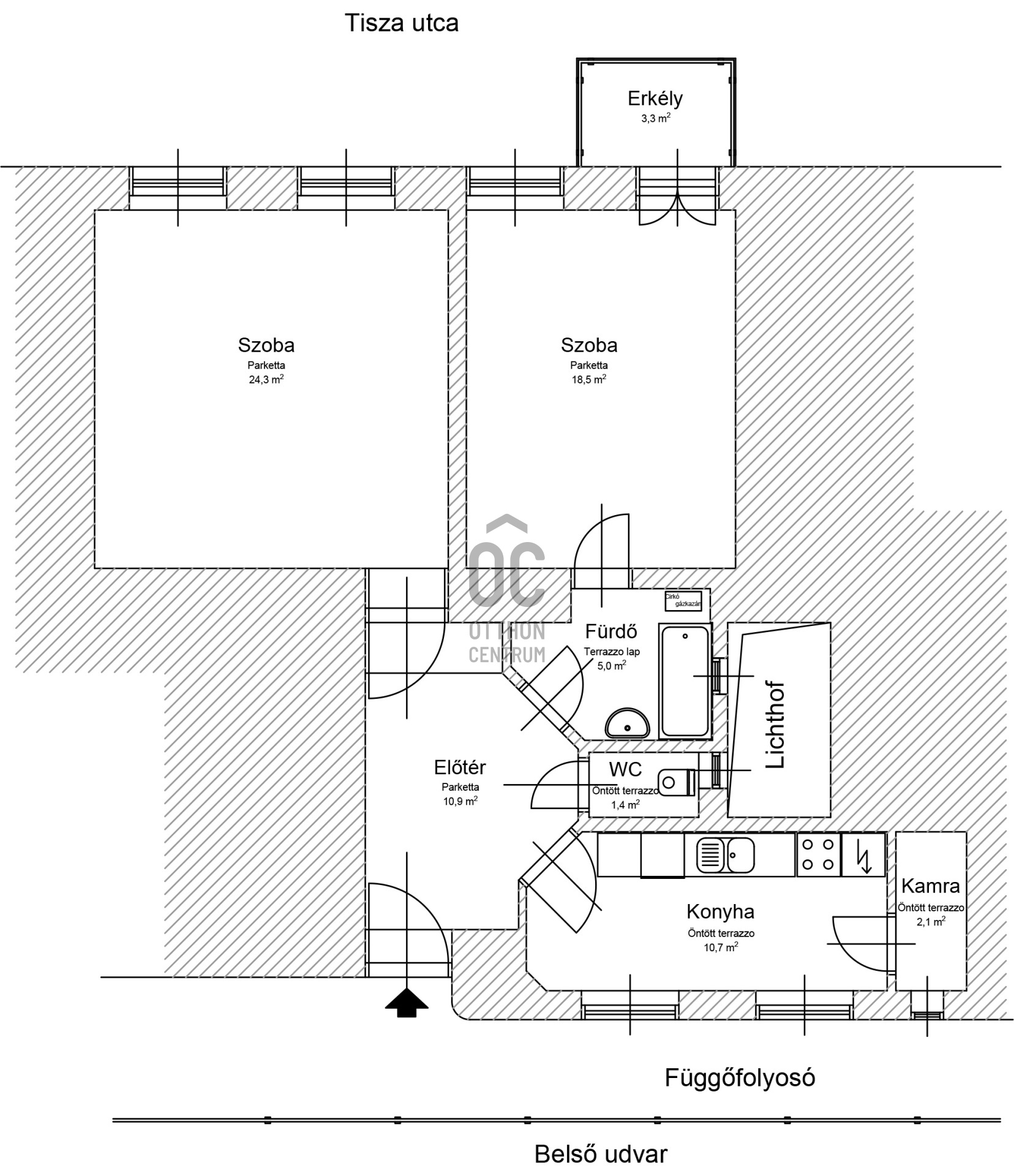
3. emeleti, 2 szobás, fürdőszobás összkomfortos, jó állapotú, erkélyes, világos lakás utcára, illetve belső udvarra nyíló, nagyméretű ablakokkal. A nappali déli tájolású, az erkély városi panorámával rendelkezik, az utca felőli homlokzatra nyílik.
A lakás igény szerint bútorozható. Fűtése és meleg víz ellátása gáz kombi kazános egyedi fűtés, klíma nincs, de a lakás jól átszellőztethető.
Konyhája gépesített, azaz gáztűzhely, hűtő és mosógép is rendelkezésre áll.
Pincében van egy kb. 6 nm-es, zárható tároló is. Belső udvarban térkamerákkal figyelt, fedett kerékpártároló is igénybe vehető.
Kisállat tartás nem lehetséges.
Egyéb:
Bérleti díj 280 e Ft/hó + rezsi.
Hosszú távra kiadó lakás 1, max. 2 leinformálható, keresőképes felnőtt ember számára.
Két havi kaució és 1 havi bérleti díj megfizetése esetén azonnal birtokba vehető.
Találjuk meg együtt a legjobb megoldást!
Közlekedés, lokáció:
A lakás a XIII. kerületben a Dózsa György úti metrómegálló közelében van a Dunához közel eső részen. Tömegközlekedés szempontjából is kiváló, a közelben jár a 15-ös busz, a 75-ös és 79-es trolibusz. A Dunapart 4-500 m-re gyalog sincs messze. Közelben a Lehel téri piac, de a környéken megtalálható számos egyéb szolgáltatás is.
Épület:
Ez az épület 1909-10-ben épült Habich Károly műépítész tervei alapján, jellegzetes újlipótvárosi bérházként a szecessziós korban népies, historizáló motívumos homlokzati stílussal, hangsúlyos sarokház kialakítással. A lakás a többszöri felújítás ellenére is megőrizte régies jellegét, többek között eredeti öntött terazzo burkolattal rendelkezik még a konyhában és a fürdőben is, és eredeti fa nyílászárói is még korhűen őrzik a régi idők hangulatát. Lépcsőháza szépen felújított. Műkő lépcső és a díszes kovácsolt vas korlátok is kifogástalan állapotban díszítik a tágas lépcsőházat. Néhány éve kapott új, modern liftet is a hangulatos belső udvar felől. Függőfolyosós rendszerben közelíthetőek meg az egyes lakások a társasházban.
Parkolás utcán, fizető övezetben, bejelentkező lakóként kedvezményes parkolással.
Lakás:
3. emeleti, 2 szobás, fürdőszobás összkomfortos, jó állapotú, erkélyes, világos lakás utcára, illetve belső udvarra nyíló, nagyméretű ablakokkal. A nappali déli tájolású, az erkély városi panorámával rendelkezik, az utca felőli homlokzatra nyílik.
A lakás igény szerint bútorozható. Fűtése és meleg víz ellátása gáz kombi kazános egyedi fűtés, klíma nincs, de a lakás jól átszellőztethető.
Konyhája gépesített, azaz gáztűzhely, hűtő és mosógép is rendelkezésre áll.
Pincében van egy kb. 6 nm-es, zárható tároló is. Belső udvarban térkamerákkal figyelt, fedett kerékpártároló is igénybe vehető.
Kisállat tartás nem lehetséges.
Egyéb:
Bérleti díj 280 e Ft/hó + rezsi.
Hosszú távra kiadó lakás 1, max. 2 leinformálható, keresőképes felnőtt ember számára.
Két havi kaució és 1 havi bérleti díj megfizetése esetén azonnal birtokba vehető.
Találjuk meg együtt a legjobb megoldást!
Regisztrációs szám
H512691
Az ingatlan adatai
Értékesités
kiadó
Jogi státusz
használt
Jelleg
lakás
Építési mód
tégla
Méret
75 m²
Bruttó méret
76,2 m²
Terasz / erkély mérete
3,3 m²
Fűtés
Gáz cirkó
Belmagasság
280 cm
Lakáson belüli szintszám
1
Tájolás
Dél
Lépcsőház típusa
függőfolyosó
Állapot
Jó
Homlokzat állapota
Jó
Lépcsőház állapota
Jó
Pince
Közös
Építés éve
1910
Fürdőszobák száma
1
Fekvés
utcai
Közös költség
23000
Víz
Van
Gáz
Van
Villany
Van
Csatorna
Van
Lift
van
Tároló
Önálló
Helyiségek
szoba
24.3 m²
szoba
18.5 m²
fürdőszoba
5 m²
wc
1.4 m²
előszoba
10.7 m²
konyha
10.7 m²
kamra
2.1 m²
Korcsog Melinda
Hitelszakértő