Elérhető Otthon Start hitellel
Eladó családi ház, H512488
Zalaegerszeg, Belváros

63 000 000 Ft

164 000 €

  • 77m²
  • 3 szoba
Kiemelt megbízás

The translation of the text is: A story in the walls, a future in the home!

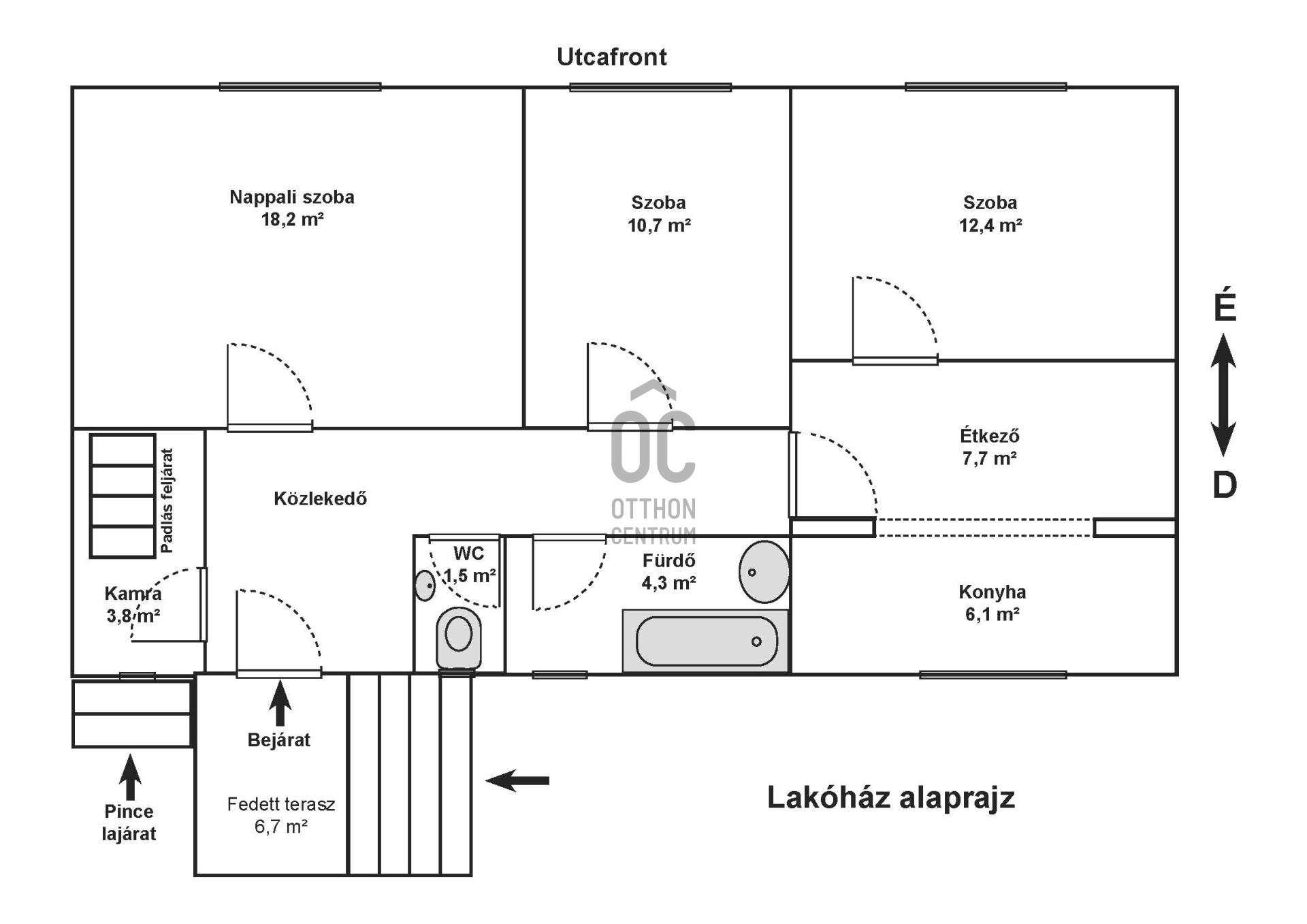
In the city center of Zalaegerszeg, near Vizslapark, a 3-room, 85 m² civil-style house with a garden has become available for sale, with the following features: - The brick-built property has a gross area of 85 m² (net 77 m²) and is situated on a 457 m² plot. - The house was built in the 1920s; however, the current owner fully renovated it in the mid-1980s to meet the needs of that era. - The roof is covered with Bramac tiles. - The external walls of the house have also been renewed. - The ceiling of the ground-level cellar has been reinforced, and its entrance has been renovated. - The electrical wiring has been replaced with aluminum, and the plumbing has been updated. - Gas has been connected to the property. - The cold floor coverings have been modernized, and the rooms are equipped with parquet flooring, which is currently in perfect condition. - The current heating system is provided by gas convectors. Their coverings are unique and special, perfectly harmonizing with the house's internal charm. - The windows and doors are made of wood, and the entrance door is protected and insulated by an external wooden door. - Hot water is supplied by an electric boiler. - In the yard, there is also a brick garage, storage rooms, and a building suitable for keeping animals (chickens, poultry). - The storage rooms offer numerous possibilities (home gym, hobby room, family wellness area with sauna, jacuzzi, etc.). The realization of these ideas is left to the imagination of the new owner. - The temperature in the ground-level cellar allows for the winter storage of plants, fruits, and vegetables. Alternatively, it can be transformed into a wine cellar, providing a counterbalance to the hectic everyday life, where family and friends can enjoy carefree conversations and sip delicious wines in a romantic atmosphere. - The yard, adorned with evergreens, flowers, and a fruit tree, is also rich in possibilities, waiting for the new owner's ideas to be realized. ...and who would I recommend this property to? This little jewel box is truly meant for those who are loyal to the architecture of the past and see the potential for their own future within it. Those who believe that old things are not outdated, but simply waiting for a new life – in a modern form, yet with an unchanged soul. Our office provides a full range of services for searching clients; if you need a loan, we can help! We offer professional advice, comprehensive free loan and CSOK administration, preparation of energy certificates, and assistance with an attorney at favorable rates! If you would like to learn more about this property or have any questions, please feel free to contact us with confidence. Your satisfaction is the most important thing to us, and we are happy to assist you in making the best decision.

Regisztrációs szám

H512488

Az ingatlan adatai

Értékesités
eladó
Jogi státusz
használt
Jelleg
ház
Építési mód
tégla
Méret
77 m²
Bruttó méret
85 m²
Telek méret
457 m²
Terasz / erkély mérete
6,7 m²
Kert méret
340 m²
Fűtés
gázkonvektor
Belmagasság
300 cm
Tájolás
Észak
Állapot
Átlagos
Homlokzat állapota
Pince
Önálló
Környék
csendes, jó közlekedés, zöld, központi
Építés éve
1920
Fürdőszobák száma
1
Társaház kert
igen
Garázs
Benne van az árban
Garázs férőhely
1
Víz
Van
Gáz
Van
Villany
Van
Csatorna
Van
Tároló
Önálló

Helyiségek

szoba
12 m²
szoba
11 m²
szoba
18 m²
konyha
6 m²
ebédlő
8 m²
fürdőszoba
4 m²
wc
2 m²
kamra
4 m²
közlekedő
12 m²

Irodánk kínálatából - Zalaegerszeg - Eötvös utca

eladó családi ház

Index image
Elérhető Otthon Start hitellel
36

eladó családi ház

Index image
Elérhető Otthon Start hitellel
49

eladó családi ház

Index image
Elérhető Otthon Start hitellel
40

eladó nyaraló

Index image
13

eladó családi ház

Index image
Elérhető Otthon Start hitellel
26

eladó családi ház

Index image
Elérhető Otthon Start hitellel
28

eladó családi ház

Index image
Elérhető Otthon Start hitellel
65