590 000 000 Ft
1 557 000 €
- 570m²
- 22 szoba
Ikonikus Panzió/Vendégház megújult köntösben!
Balatonkenese központjától pár száz méterre, a korábban Máytás-Udvar néven méltán ismertté vált PANZIÓ/VENDÉGHÁZ kivül-belül megújult köntösben várja új tulajdonosát, üzemeltetőjét!
Az 90-es évek közepén élpült eredeti épület 2024-2025-ben teljes felújításon, korszerűsítésen és bővítésen esett át, ahogy azt a képek is érzékeltetik.
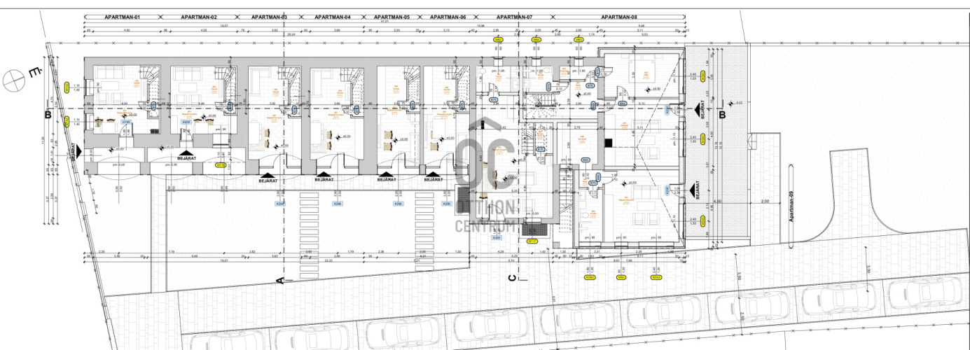
Ennek köszönhetően 9 db KÜLÖN BEJÁRATOS, ÖNÁLLÓ és TELJES ÉRTÉKŰ apartman került magas színvonalon kialakításra, ami különösen vonzóvá és jól kiadhatóvá teszi ezt a vendégházat. A legkisebb 42, a legnagyobb lakrész 85 m2-es, így akár fiatal párok vagy 4-5 fős családok, kisebb baráti társaságok is megtalálják maguknak az ideális méretű szállást.
Minden apartmanhoz tartozik 1-1 db udvari parkolóhely, így kényelmesen, pár lépésre a bejárattól biztonságban tudhatják a vendégek autóikat.
Az épület alatt hatalmas pincerész is található, ahol minden apartmanhoz külön tároló és egy közösségi helyiség is kialakításra került, ami akár egy fitness terem, akár egy szaunatér, vagy akár a gyerekeknek egy "dühöngő" megvalósítását is lehetővé teszi.
A közel 800 m2-es udvar, illetve parkosított kertrész pedig bőséges teret ad a kerti sporttevékenségekhez, grillpartikhoz, napozáshoz igény szerint.
Persze ez az ingatlan nem csak panzió/vendégházként, de Vállalati/Céges Üdüllőként is kiváló választás lehet!
Ha szeretne többet és részletesebben megtudni, például a felújítás műszaki tartalmáról, vagy élőben is megtekintené ezt a ritka adottságú ingatlant, keressen bátran a megadott elérhetőségeken, akár hétvégén is!
Az 90-es évek közepén élpült eredeti épület 2024-2025-ben teljes felújításon, korszerűsítésen és bővítésen esett át, ahogy azt a képek is érzékeltetik.
Ennek köszönhetően 9 db KÜLÖN BEJÁRATOS, ÖNÁLLÓ és TELJES ÉRTÉKŰ apartman került magas színvonalon kialakításra, ami különösen vonzóvá és jól kiadhatóvá teszi ezt a vendégházat. A legkisebb 42, a legnagyobb lakrész 85 m2-es, így akár fiatal párok vagy 4-5 fős családok, kisebb baráti társaságok is megtalálják maguknak az ideális méretű szállást.
Minden apartmanhoz tartozik 1-1 db udvari parkolóhely, így kényelmesen, pár lépésre a bejárattól biztonságban tudhatják a vendégek autóikat.
Az épület alatt hatalmas pincerész is található, ahol minden apartmanhoz külön tároló és egy közösségi helyiség is kialakításra került, ami akár egy fitness terem, akár egy szaunatér, vagy akár a gyerekeknek egy "dühöngő" megvalósítását is lehetővé teszi.
A közel 800 m2-es udvar, illetve parkosított kertrész pedig bőséges teret ad a kerti sporttevékenségekhez, grillpartikhoz, napozáshoz igény szerint.
Persze ez az ingatlan nem csak panzió/vendégházként, de Vállalati/Céges Üdüllőként is kiváló választás lehet!
Ha szeretne többet és részletesebben megtudni, például a felújítás műszaki tartalmáról, vagy élőben is megtekintené ezt a ritka adottságú ingatlant, keressen bátran a megadott elérhetőségeken, akár hétvégén is!
Regisztrációs szám
H512330
Az ingatlan adatai
Értékesités
eladó
Jogi státusz
használt
Jelleg
ház
Építési mód
vegyesfalazatú
Méret
570 m²
Bruttó méret
645 m²
Telek méret
1 658 m²
Terasz / erkély mérete
75 m²
Kert méret
824 m²
Fűtés
hőszivattyú
Belmagasság
260 cm
Lakáson belüli szintszám
1
Tájolás
Dél-kelet
Állapot
Kiváló
Homlokzat állapota
Kiváló
Pince
Közös
Környék
csendes, jó közlekedés, központi
Építés éve
1995
Fürdőszobák száma
11
Társaház kert
igen
Víz
Van
Villany
Van
Csatorna
Van
Többgenerációs
igen
Tároló
Önálló
Vízpart távolsága
több mint 500 méterre
Helyiségek
nappali-konyha
1 m²
nappali-konyha
1 m²
nappali-konyha
1 m²
nappali-konyha
1 m²
nappali-konyha
1 m²
nappali-konyha
1 m²
nappali-konyha
1 m²
nappali-konyha
1 m²
nappali-konyha
1 m²
hálószoba
1 m²
hálószoba
1 m²
hálószoba
1 m²
hálószoba
1 m²
hálószoba
1 m²
hálószoba
1 m²
hálószoba
1 m²
hálószoba
1 m²
hálószoba
1 m²
hálószoba
1 m²
hálószoba
1 m²
fürdőszoba-wc
1 m²
fürdőszoba-wc
1 m²
fürdőszoba-wc
1 m²
fürdőszoba-wc
1 m²
fürdőszoba-wc
1 m²
fürdőszoba-wc
1 m²
fürdőszoba-wc
1 m²
fürdőszoba-wc
1 m²
fürdőszoba-wc
1 m²
fürdőszoba-wc
1 m²
fürdőszoba-wc
1 m²
fürdőszoba-wc
1 m²
fürdőszoba-wc
1 m²
Benkő Adrienn
Hitelszakértő