290 000 000 Ft
762 000 €
- 290m²
- 9 szoba
ILYEN NINCS MÉG EGY A PIACON! 3 GENERÁCIÓ 1 TELKEN!
Fedezd fel ezt a különleges lehetőséget Budapest 18. kerületében! Ez a kiváló állapotban lévő ház tökéletes választás lehet számodra, ha tágas, kényelmes otthonra vágysz, vagy éppen befektetési céllal keresel ingatlant.
A körbejárható ház egy 745 m2-es telken helyezkedik el, így a kertben bőven van hely a szabadidős tevékenységekre vagy a gyerekek játékára, grillezésre. A telken 2 ház helyezkedik el, össz lakóterülete 290 m2, ami bőséges teret biztosít a családod számára, itt mindenki megtalálhatja a saját kis zugát. A 42 m2-es terasz csodás lehetőséget kínál a kültéri pihenésre, ahol élvezheted a napsütést vagy a friss levegőt. A főépületben 2 külön bejárattal, 2 generációnak van hely. Az egyik lakás a földszinten lett kialakítva, 2 hálószobával, nagy nappalival, konyha, fürdőszoba wc-vel és egy külön wc-vel. Ebben a lakásban 3 inverteres klíma adja a meleget/hideget. A második lakrész az első emeleten és a tetőtérben kapott helyet. 3 nagy hálószoba, nappali-konyha, közlekedő és egy fürdőszoba wc-vel, illetve egy külön wc is kialakításra került. A tetőtérben 2 nagy szoba, fürdő-wc és egy kis konyha található. A melegről kondenzációs kazán gondoskodik, a melegvizet egy 1000 literes tartályban napkollektor melegít. A harmadik generáció egy külön épületben, a kert hátuljában kapott helyet. Nappali-konyha, hálószoba és fürdőszoba-wc. Ez a lakrész 44 m2-es, gáz cirkó fűtéses. A pince alapterülete 106 m2, de ez is ketté lett osztva. Az ingatlan teljeskörű felújításon esett át, mely jelenleg is zajlik.
Az ingatlan körüli zöldövezetek és parkok ideális helyszínt biztosítanak a családi programokhoz és a szabadidős tevékenységekhez. Ez a ház nem csupán egy ingatlan, hanem egy lehetőség, hogy egy igazán otthonos és barátságos környezetben éld az életed. Legyen szó saját otthonról vagy befektetési lehetőségről, ez az ingatlan minden igényedet kielégíti. Ne habozz, hiszen az ilyen lehetőségek gyorsan elkelnek! Ha kérdéseid lennének, vagy szeretnéd megtekinteni ezt a csodás ingatlant, bátran keress meg!
Referenciaszám: H512314
A körbejárható ház egy 745 m2-es telken helyezkedik el, így a kertben bőven van hely a szabadidős tevékenységekre vagy a gyerekek játékára, grillezésre. A telken 2 ház helyezkedik el, össz lakóterülete 290 m2, ami bőséges teret biztosít a családod számára, itt mindenki megtalálhatja a saját kis zugát. A 42 m2-es terasz csodás lehetőséget kínál a kültéri pihenésre, ahol élvezheted a napsütést vagy a friss levegőt. A főépületben 2 külön bejárattal, 2 generációnak van hely. Az egyik lakás a földszinten lett kialakítva, 2 hálószobával, nagy nappalival, konyha, fürdőszoba wc-vel és egy külön wc-vel. Ebben a lakásban 3 inverteres klíma adja a meleget/hideget. A második lakrész az első emeleten és a tetőtérben kapott helyet. 3 nagy hálószoba, nappali-konyha, közlekedő és egy fürdőszoba wc-vel, illetve egy külön wc is kialakításra került. A tetőtérben 2 nagy szoba, fürdő-wc és egy kis konyha található. A melegről kondenzációs kazán gondoskodik, a melegvizet egy 1000 literes tartályban napkollektor melegít. A harmadik generáció egy külön épületben, a kert hátuljában kapott helyet. Nappali-konyha, hálószoba és fürdőszoba-wc. Ez a lakrész 44 m2-es, gáz cirkó fűtéses. A pince alapterülete 106 m2, de ez is ketté lett osztva. Az ingatlan teljeskörű felújításon esett át, mely jelenleg is zajlik.
Az ingatlan körüli zöldövezetek és parkok ideális helyszínt biztosítanak a családi programokhoz és a szabadidős tevékenységekhez. Ez a ház nem csupán egy ingatlan, hanem egy lehetőség, hogy egy igazán otthonos és barátságos környezetben éld az életed. Legyen szó saját otthonról vagy befektetési lehetőségről, ez az ingatlan minden igényedet kielégíti. Ne habozz, hiszen az ilyen lehetőségek gyorsan elkelnek! Ha kérdéseid lennének, vagy szeretnéd megtekinteni ezt a csodás ingatlant, bátran keress meg!
Referenciaszám: H512314
Regisztrációs szám
H512314
Az ingatlan adatai
Értékesités
eladó
Jogi státusz
használt
Jelleg
ház
Építési mód
tégla
Méret
290 m²
Bruttó méret
290 m²
Telek méret
745 m²
Terasz / erkély mérete
50 m²
Fűtés
Gáz cirkó
Belmagasság
275 cm
Lakáson belüli szintszám
3
Tájolás
Dél-kelet
Állapot
Jó
Homlokzat állapota
Jó
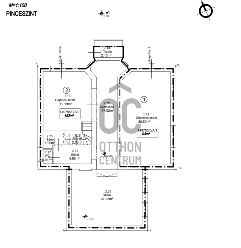
Pince
Önálló
Környék
csendes, jó közlekedés, központi
Építés éve
2000
Fürdőszobák száma
3
Garázs
Benne van az árban
Garázs férőhely
1
Víz
Van
Gáz
Van
Villany
Van
Csatorna
Van
Többgenerációs
igen
Tároló
Önálló
Helyiségek
szoba
11.4 m²
szoba
14.6 m²
fürdőszoba-wc
6.4 m²
közlekedő
13 m²
wc
1 m²
konyha-étkező
17.5 m²
nappali
28 m²
szoba
12 m²
szoba
15 m²
szoba
16 m²
fürdőszoba-wc
7 m²
közlekedő
16 m²
lépcsőház
4.5 m²
nappali-konyha
27 m²
szoba
10 m²
szoba
18 m²
konyha
3.9 m²
fürdőszoba-wc
7.2 m²
közlekedő
1.3 m²
tároló
2 m²
lépcsőház
3 m²
Samu Györgyné
Hitelszakértő