Elérhető Otthon Start hitellel
Eladó panel lakás,
H512159
Budapest XI. kerület, Gazdagrét
71 900 000 Ft
187 000 €
- 53m²
- 3 szoba
- 1. emelet
XI. kerület kedvelt részén, Gazdagréten eladó egy kiváló elosztású, napfényes, 3 szobás, panellakás!
XI. kerület kedvelt részén, Gazdagréten eladó egy kiváló elosztású, napfényes, 3 szobás, panellakás!
Új tulajdonosát keresi Gazdagréten, Budapest legkedvezőbb megítélésű lakótelepén egy 3 szobás, világos, jó elosztású panellakás.
Ha csendes, zöld környéken keres jó adottságokkal rendelkező ingatlant, ezt feltétlenül nézze meg!
A KÖRNYÉKRŐL:
- XI. kerület, Gazdagréti lakótelep
- Frekventált, mégis csendes, zöld környék jó infrastruktúrával és tömegközlekedéssel.
- Sétatávolságra elérhető a 153, 154, 108E, 8E, 139, 908 buszok megállója és 8 percre van a 4-es metró.
- Élelmiszerbolt, gyógyszertár 200 méteren belül.
- Orvosi rendelő, iskola, óvoda, éttermek, fodrászat, kozmetika 5 perc sétával elérhető.
- A közelben több játszótér, parkos pihenő rész, kikapcsolódásra alkalmas terület van.
- A közeli Gazdagréti uszoda nyáron strandolási lehetőséget nyújt.
- Parkolni a környéken biztonságosan, könnyen és díjmentesen tudunk.
A HÁZRÓL:
- 1987-ben épült, 11 emeletes, tiszta és rendezett panelház.
- Lakóközössége csendes, barátságos, vegyes korosztály.
A LAKÁSRÓL:
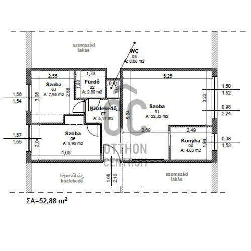
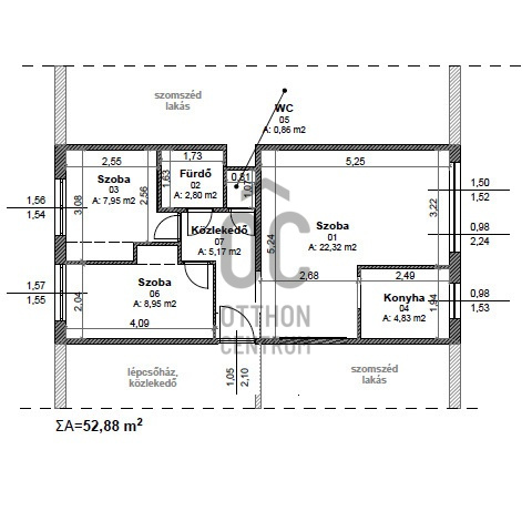
- 53 m2-es, 3 szobás, 1. emeleti ingatlan
- Zöldre néző kilátással rendelkezik, tájolása nappali keleti, hálók nyugati
- Felosztása: előszoba, nappali, 2 hálószoba, konyha, étkező, fürdőszoba, wc
- Műszakilag és esztétikailag is megkímélt, jó állapotú
- A közös költség havi 15.000,- Ft.
Ha szeretne egy kiváló lokációban, egy jó elosztású ingatlant, ne habozzon, tekintse meg személyesen is!
Új tulajdonosát keresi Gazdagréten, Budapest legkedvezőbb megítélésű lakótelepén egy 3 szobás, világos, jó elosztású panellakás.
Ha csendes, zöld környéken keres jó adottságokkal rendelkező ingatlant, ezt feltétlenül nézze meg!
A KÖRNYÉKRŐL:
- XI. kerület, Gazdagréti lakótelep
- Frekventált, mégis csendes, zöld környék jó infrastruktúrával és tömegközlekedéssel.
- Sétatávolságra elérhető a 153, 154, 108E, 8E, 139, 908 buszok megállója és 8 percre van a 4-es metró.
- Élelmiszerbolt, gyógyszertár 200 méteren belül.
- Orvosi rendelő, iskola, óvoda, éttermek, fodrászat, kozmetika 5 perc sétával elérhető.
- A közelben több játszótér, parkos pihenő rész, kikapcsolódásra alkalmas terület van.
- A közeli Gazdagréti uszoda nyáron strandolási lehetőséget nyújt.
- Parkolni a környéken biztonságosan, könnyen és díjmentesen tudunk.
A HÁZRÓL:
- 1987-ben épült, 11 emeletes, tiszta és rendezett panelház.
- Lakóközössége csendes, barátságos, vegyes korosztály.
A LAKÁSRÓL:
- 53 m2-es, 3 szobás, 1. emeleti ingatlan
- Zöldre néző kilátással rendelkezik, tájolása nappali keleti, hálók nyugati
- Felosztása: előszoba, nappali, 2 hálószoba, konyha, étkező, fürdőszoba, wc
- Műszakilag és esztétikailag is megkímélt, jó állapotú
- A közös költség havi 15.000,- Ft.
Ha szeretne egy kiváló lokációban, egy jó elosztású ingatlant, ne habozzon, tekintse meg személyesen is!
Regisztrációs szám
H512159
Az ingatlan adatai
Értékesités
eladó
Jogi státusz
használt
Jelleg
lakás
Építési mód
panel
Méret
53 m²
Bruttó méret
53 m²
Fűtés
központi fűtés
Belmagasság
265 cm
Lakáson belüli szintszám
1
Tájolás
Kelet
Lépcsőház típusa
zárt lépcsőház
Állapot
Átlagos
Homlokzat állapota
Jó
Lépcsőház állapota
Jó
Építés éve
1980
Fürdőszobák száma
1
Fekvés
utcai
Közös költség
15000
Víz
Van
Gáz
Van
Villany
Van
Csatorna
Van
Lift
van
Helyiségek
nappali
1 m²
hálószoba
1 m²
hálószoba
1 m²
fürdőszoba
1 m²
Ruczek János
Hitelszakértő