185 000 000 Ft
490 000 €
- 83m²
- 3 szoba
- 3. emelet
Azonnal költözhető, ERKÉLYES, fényes belvárosi lakás a Bazilika közelében!
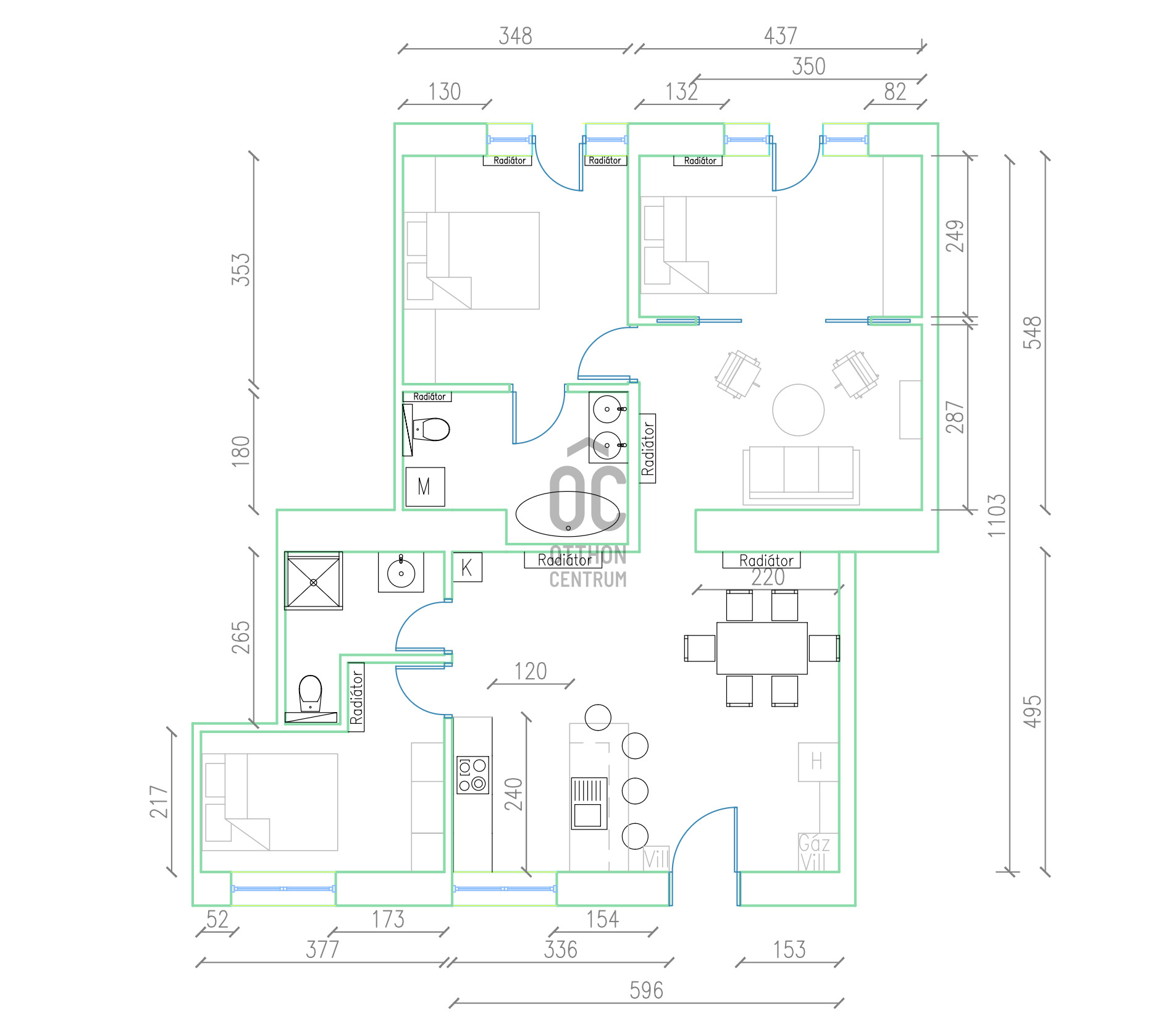
Budapest VI. kerületében, a Dessewffy utcában, egy 83 m²-es, rendkívül világos, 4 m²-es erkéllyel rendelkező, 3 szobás lakás eladó!
Az ingatlan egy elegáns, kívül-belül igényesen kialakított épület 3. emeletén található liftes társasházban.
Főbb jellemzők:
A lakás egész nap természetes fénnyel átjárt
teljes körűen bútorozott és gépesített, klasszikus és modern stíluselemek harmonikus összhangjával
az Operaház mindössze 400 méterre helyezkedik el
hőszivattyús klímákkal felszerelt, emellett új kondenzációs kazán és melegvíztároló biztosítja az energiahatékony működést
motorizált redőnyök, egyedi gyártású bútorok és ajtók
magas minőségű, igényes burkolatok
parkolás szempontjából kiváló környezet: a környéken kedvezőek a parkolási lehetőségek, parkolóház bérlése nem szükséges, ugyanakkor több parkolóház és mélygarázs is elérhető a közelben
Helyiségek:
tágas konyha és étkező;
különálló nappali, erkélykapcsolattal;
két hálószoba (az egyik erkéllyel);
két fürdőszoba.
Bővebb információért, a megtekintéssel kapcsolatban várom hívását!
Egyedi igényekre szabott lakáshitelekkel állunk rendelkezésére.
Bankfüggetlen Hitelcentrumunk az országban elérhető összes bank és hitelintézet ajánlatát versenyezteti az Ön számára díjmentesen.
Munkatársaink nagy szakmai tapasztalattal, teljes körű CSOK PLUSZ és OTTHON START PROGRAM ügyintézéssel várják Önt előre egyeztetett időpontban akár a normál munkaidő után is.
Az ingatlan egy elegáns, kívül-belül igényesen kialakított épület 3. emeletén található liftes társasházban.
Főbb jellemzők:
A lakás egész nap természetes fénnyel átjárt
teljes körűen bútorozott és gépesített, klasszikus és modern stíluselemek harmonikus összhangjával
az Operaház mindössze 400 méterre helyezkedik el
hőszivattyús klímákkal felszerelt, emellett új kondenzációs kazán és melegvíztároló biztosítja az energiahatékony működést
motorizált redőnyök, egyedi gyártású bútorok és ajtók
magas minőségű, igényes burkolatok
parkolás szempontjából kiváló környezet: a környéken kedvezőek a parkolási lehetőségek, parkolóház bérlése nem szükséges, ugyanakkor több parkolóház és mélygarázs is elérhető a közelben
Helyiségek:
tágas konyha és étkező;
különálló nappali, erkélykapcsolattal;
két hálószoba (az egyik erkéllyel);
két fürdőszoba.
Bővebb információért, a megtekintéssel kapcsolatban várom hívását!
Egyedi igényekre szabott lakáshitelekkel állunk rendelkezésére.
Bankfüggetlen Hitelcentrumunk az országban elérhető összes bank és hitelintézet ajánlatát versenyezteti az Ön számára díjmentesen.
Munkatársaink nagy szakmai tapasztalattal, teljes körű CSOK PLUSZ és OTTHON START PROGRAM ügyintézéssel várják Önt előre egyeztetett időpontban akár a normál munkaidő után is.
Regisztrációs szám
H511775
Az ingatlan adatai
Értékesités
eladó
Jogi státusz
használt
Jelleg
lakás
Építési mód
tégla
Méret
83 m²
Bruttó méret
83 m²
Terasz / erkély mérete
4 m²
Fűtés
Gáz cirkó
Belmagasság
310 cm
Tájolás
Észak-nyugat
Panoráma
városi panoráma
Lépcsőház típusa
függőfolyosó
Állapot
Kiváló
Homlokzat állapota
Kiváló
Lépcsőház állapota
Jó
Környék
jó közlekedés, központi
Építés éve
1940
Fürdőszobák száma
2
Fekvés
utcai
Közös költség
30000
Víz
Van
Gáz
Van
Villany
Van
Csatorna
Van
Lift
van
Helyiségek
nappali-konyha
40 m²
szoba
15 m²
szoba
15 m²
fürdőszoba-wc
5 m²
fürdőszoba-wc
4 m²
szoba
13 m²