Elérhető Otthon Start hitellel
Eladó lakás,
H511690
Várpalota, Tési domb
35 500 000 Ft
94 000 €
- 55m²
- 2 szoba
- 3. emelet
Jó ár-érték arány
Várpalotán 55 m2-es, ERKÉLYES, 2 szobás, TÉGLA LAKÁS ELADÓ!
Ingatlan jellemzői:
- tégla épületben
- az épület szigetelése megtörtént
- 3. emeleti lakás
- DK-i tájolás
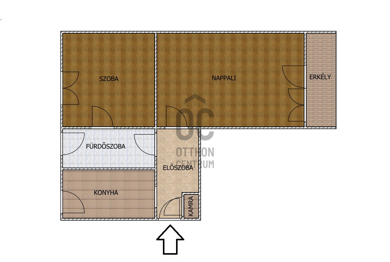
- 55 m2 ( 2 szoba, konyha, fürdőszoba, előszoba, kamra, erkély)
- fűtése: konvektoros (2023-ban cseréltek konvektorokat)
- hőszigetelt üvegezésű műanyag nyílászárók
- 12 ponton záródó biztonsági bejárati ajtó, pár éve cserélték le
- közös költség: 25900 Ft, szinte teljesen friss az épület külső hőszigetelése
- a lakáshoz tartozik önálló tároló
A lakás az Erdődy Pálffy Tamás utcában található, parkolás lehetséges a ház körül ingyenesen.
A Tési dombon megtalálhatóak kisebb boltok, orvosi rendelő, gyógyszertár, pékség, posta.
Ha további információk érdeklik vagy megtekintené a lakást, hívjon.
Ha a vásárláshoz a jelenlegi ingatlana eladására van szükség, akkor abban is szívesen együttműködöm Önnel!
Amennyiben hitelre van szüksége, az Otthon Centrum az ország egyik legnagyobb és legmegbízhatóbb hitelközvetítőjeként, teljes körű és díjmentes hitel ügyintézéssel áll rendelkezésére.
Kérje személyre szabott ajánlatunkat!
Ingatlan jellemzői:
- tégla épületben
- az épület szigetelése megtörtént
- 3. emeleti lakás
- DK-i tájolás
- 55 m2 ( 2 szoba, konyha, fürdőszoba, előszoba, kamra, erkély)
- fűtése: konvektoros (2023-ban cseréltek konvektorokat)
- hőszigetelt üvegezésű műanyag nyílászárók
- 12 ponton záródó biztonsági bejárati ajtó, pár éve cserélték le
- közös költség: 25900 Ft, szinte teljesen friss az épület külső hőszigetelése
- a lakáshoz tartozik önálló tároló
A lakás az Erdődy Pálffy Tamás utcában található, parkolás lehetséges a ház körül ingyenesen.
A Tési dombon megtalálhatóak kisebb boltok, orvosi rendelő, gyógyszertár, pékség, posta.
Ha további információk érdeklik vagy megtekintené a lakást, hívjon.
Ha a vásárláshoz a jelenlegi ingatlana eladására van szükség, akkor abban is szívesen együttműködöm Önnel!
Amennyiben hitelre van szüksége, az Otthon Centrum az ország egyik legnagyobb és legmegbízhatóbb hitelközvetítőjeként, teljes körű és díjmentes hitel ügyintézéssel áll rendelkezésére.
Kérje személyre szabott ajánlatunkat!
Regisztrációs szám
H511690
Az ingatlan adatai
Értékesités
eladó
Jogi státusz
használt
Jelleg
lakás
Építési mód
tégla
Méret
55 m²
Bruttó méret
62 m²
Terasz / erkély mérete
4 m²
Fűtés
gázkonvektor
Belmagasság
265 cm
Lakáson belüli szintszám
1
Tájolás
Dél-kelet
Lépcsőház típusa
zárt lépcsőház
Állapot
Jó
Homlokzat állapota
Kiváló
Lépcsőház állapota
Átlagos
Környék
csendes, jó közlekedés, zöld
Építés éve
1965
Fürdőszobák száma
1
Fekvés
utcai
Közös költség
25900
Víz
Van
Gáz
Van
Villany
Van
Csatorna
Van
Tároló
Önálló
Helyiségek
nappali
21.66 m²
szoba
12.46 m²
konyha
7.29 m²
fürdőszoba-wc
4.78 m²
előszoba
6.6 m²
kamra
0.45 m²
erkély
4.03 m²
Szabóné Sipos Krisztina
Hitelszakértő