199 900 000 Ft
528 000 €
- 96m²
- 4 szoba
- 1. emelet
Where history meets modern elegance – Welcome home!
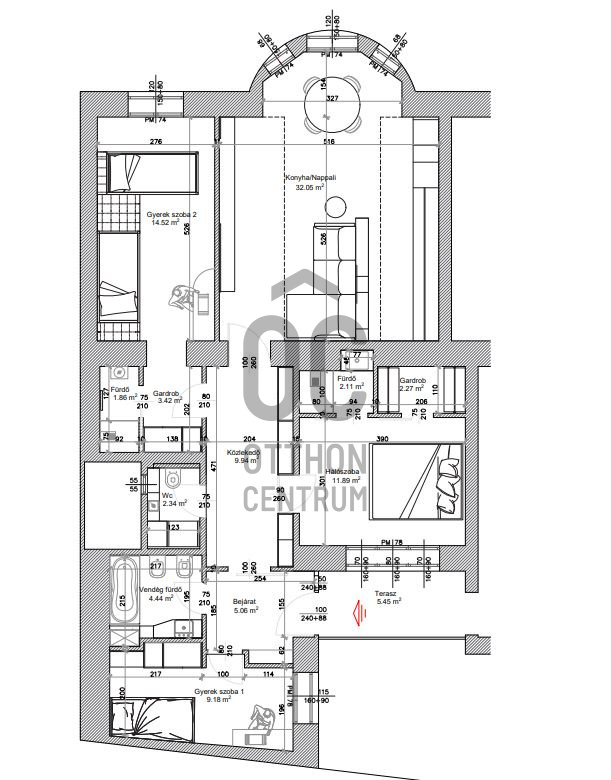
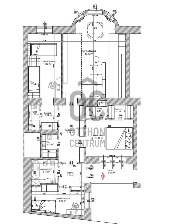
The 96 m² luxury apartment, with its perfect proportions and high-quality finish, offers comfort with three elegant bedrooms, three bathrooms, and a separate guest toilet.
Every detail reflects the strength of timeless materials and the harmony that only truly well-designed spaces can create.
A private, lockable area welcomes visitors at the entrance – an intimate outdoor space that functions as a terrace and gives a glimpse of the apartment's exclusive, separate world right outside the door.
Entering here feels like stepping into a modern work of art:
the light, shapes, textures, and airy elegance all combine to create a special atmosphere that cannot be confused with anything else. Welcome home!
A WORK OF ART ABOVE THE SPACE – MODERN COMFORT AND REFINED ELEGANCE
This apartment has not simply been renovated – it has undergone a complete transformation, with every inch of it being rethought.
The combination of modern technology, high-quality materials and timeless elegance has created a harmonious whole that respects the character of the classic building, yet results in a clean, contemporary home.
The 32 m² living room with an open-plan kitchen is the central space of the apartment, where the arched windows of the dining room create a beautiful arc of light.
During the day, the room is bathed in natural light, while in the evening it lends an intimate atmosphere – a space that can adapt to any situation in life.
BEDROOMS – FUNCTIONALLY DESIGNED, PRIVATE SPACES
• Master bedroom
A spacious, separate living area with its own bathroom and wardrobe, providing complete peace and privacy for everyday life.
• Children's suites
The apartment has two children's rooms, each with its own functional background: one children's room is a separate living area with a bathroom with shower and wardrobe, while the other children's room is connected to a separate bathroom with bathtub.
UNIQUE DESIGN AND PREMIUM MATERIALS
All rooms in the apartment feature custom-made built-in furniture, designed by an interior designer.
The harmony in the details – textures, shapes, lighting – creates a modern yet soulful home.
Kitchen – where function meets design
The kitchen is equipped with premium built-in appliances from Bosch and custom kitchen furniture designed by the interior designer.
Italian nostalgia radiators – A unique aesthetic element with a practical function, they reinforce the elegant character of the space.
SMART HOME – COMFORT FOR EVERYDAY LIFE
Thanks to its modern technological systems, the apartment functions as a fully-fledged smart home:
- remotely controlled heating,
- lighting controlled by phone,
- integrated smart home control,
- sound technology in every room,
- modern alarm system for maximum security.
The technology blends discreetly into the spaces, enhancing comfort and experience day after day.
BUILDING
The apartment is located on the first floor of a beautifully preserved, historic townhouse built around 1900.
The building is well-maintained, equipped with an elevator, clean, financially stable, and continuously maintained thanks to existing savings.
The common cost is 24,000 HUF/month, which includes the usual operating fees.
All utilities (water, electricity, gas) are payable based on individual meters.
Parking is available in the neighborhood on public land, with discounted parking permits for registered residents.
There are several garage rental options nearby, which further increases everyday convenience.
LOCATION
Why should you move here or invest here?
- One of Budapest's most distinctive districts, Inner Ferencváros offers a unique blend of historic streets, renovated buildings and a modern urban atmosphere.
- The environment is both lively and relaxing: cozy cafés, award-winning restaurants, galleries, and creative spaces line the neighborhood.
- A few minutes' walk away is Ráday Street, which is now one of Budapest's most popular gastronomic destinations, with terrace restaurants, cafés, and wine bars lining the street.
- The proximity of Kálvin Square and the surrounding universities (ELTE, BME, Károli) ensures a vibrant yet cultured city life.
- Just a few minutes away are Fővám Square, the Danube embankment, and the Great Market Hall, where fresh ingredients, a unique market atmosphere, and genuine urban energy await.
- Transportation is first-rate: the M3 and M4 metro lines, numerous bus routes, tram lines, and all points in the city center are easily accessible.
- The neighborhood has a complete infrastructure: shops, pharmacies, banks, fitness centers, and services are all within easy reach.
- It is an area rich in cultural value – libraries, universities, theaters, galleries, and concert venues are all nearby.
- There are plenty of leisure activities to enjoy: evening walks along the Danube, brunch at the neighborhood's new wave cafés, or dinner in one of Budapest's favorite gourmet districts.
- The nearest shopping centers, such as Corvin Plaza and Westend, are just a few stops away.
Overall, the neighborhood is safe, modern, and friendly—a place where everyday life is elevated to a new level, whether you're looking for a home or a premium investment.
Come experience the atmosphere for yourself—I look forward to your call!
----------------------------------------------
We support our buyers with free, bank-independent credit counseling to help them make the most advantageous financing decisions. With our optional additional services, such as legal assistance, energy certification, or electrical safety inspections, we provide comprehensive professional support at every step of the sales process.
The information contained in the advertisement is for informational purposes only. We reserve the right to make errors and price changes. We are not responsible for any typographical errors or technical errors.
Every detail reflects the strength of timeless materials and the harmony that only truly well-designed spaces can create.
A private, lockable area welcomes visitors at the entrance – an intimate outdoor space that functions as a terrace and gives a glimpse of the apartment's exclusive, separate world right outside the door.
Entering here feels like stepping into a modern work of art:
the light, shapes, textures, and airy elegance all combine to create a special atmosphere that cannot be confused with anything else. Welcome home!
A WORK OF ART ABOVE THE SPACE – MODERN COMFORT AND REFINED ELEGANCE
This apartment has not simply been renovated – it has undergone a complete transformation, with every inch of it being rethought.
The combination of modern technology, high-quality materials and timeless elegance has created a harmonious whole that respects the character of the classic building, yet results in a clean, contemporary home.
The 32 m² living room with an open-plan kitchen is the central space of the apartment, where the arched windows of the dining room create a beautiful arc of light.
During the day, the room is bathed in natural light, while in the evening it lends an intimate atmosphere – a space that can adapt to any situation in life.
BEDROOMS – FUNCTIONALLY DESIGNED, PRIVATE SPACES
• Master bedroom
A spacious, separate living area with its own bathroom and wardrobe, providing complete peace and privacy for everyday life.
• Children's suites
The apartment has two children's rooms, each with its own functional background: one children's room is a separate living area with a bathroom with shower and wardrobe, while the other children's room is connected to a separate bathroom with bathtub.
UNIQUE DESIGN AND PREMIUM MATERIALS
All rooms in the apartment feature custom-made built-in furniture, designed by an interior designer.
The harmony in the details – textures, shapes, lighting – creates a modern yet soulful home.
Kitchen – where function meets design
The kitchen is equipped with premium built-in appliances from Bosch and custom kitchen furniture designed by the interior designer.
Italian nostalgia radiators – A unique aesthetic element with a practical function, they reinforce the elegant character of the space.
SMART HOME – COMFORT FOR EVERYDAY LIFE
Thanks to its modern technological systems, the apartment functions as a fully-fledged smart home:
- remotely controlled heating,
- lighting controlled by phone,
- integrated smart home control,
- sound technology in every room,
- modern alarm system for maximum security.
The technology blends discreetly into the spaces, enhancing comfort and experience day after day.
BUILDING
The apartment is located on the first floor of a beautifully preserved, historic townhouse built around 1900.
The building is well-maintained, equipped with an elevator, clean, financially stable, and continuously maintained thanks to existing savings.
The common cost is 24,000 HUF/month, which includes the usual operating fees.
All utilities (water, electricity, gas) are payable based on individual meters.
Parking is available in the neighborhood on public land, with discounted parking permits for registered residents.
There are several garage rental options nearby, which further increases everyday convenience.
LOCATION
Why should you move here or invest here?
- One of Budapest's most distinctive districts, Inner Ferencváros offers a unique blend of historic streets, renovated buildings and a modern urban atmosphere.
- The environment is both lively and relaxing: cozy cafés, award-winning restaurants, galleries, and creative spaces line the neighborhood.
- A few minutes' walk away is Ráday Street, which is now one of Budapest's most popular gastronomic destinations, with terrace restaurants, cafés, and wine bars lining the street.
- The proximity of Kálvin Square and the surrounding universities (ELTE, BME, Károli) ensures a vibrant yet cultured city life.
- Just a few minutes away are Fővám Square, the Danube embankment, and the Great Market Hall, where fresh ingredients, a unique market atmosphere, and genuine urban energy await.
- Transportation is first-rate: the M3 and M4 metro lines, numerous bus routes, tram lines, and all points in the city center are easily accessible.
- The neighborhood has a complete infrastructure: shops, pharmacies, banks, fitness centers, and services are all within easy reach.
- It is an area rich in cultural value – libraries, universities, theaters, galleries, and concert venues are all nearby.
- There are plenty of leisure activities to enjoy: evening walks along the Danube, brunch at the neighborhood's new wave cafés, or dinner in one of Budapest's favorite gourmet districts.
- The nearest shopping centers, such as Corvin Plaza and Westend, are just a few stops away.
Overall, the neighborhood is safe, modern, and friendly—a place where everyday life is elevated to a new level, whether you're looking for a home or a premium investment.
Come experience the atmosphere for yourself—I look forward to your call!
----------------------------------------------
We support our buyers with free, bank-independent credit counseling to help them make the most advantageous financing decisions. With our optional additional services, such as legal assistance, energy certification, or electrical safety inspections, we provide comprehensive professional support at every step of the sales process.
The information contained in the advertisement is for informational purposes only. We reserve the right to make errors and price changes. We are not responsible for any typographical errors or technical errors.
Regisztrációs szám
H511007
Az ingatlan adatai
Értékesités
eladó
Jogi státusz
használt
Jelleg
lakás
Építési mód
tégla
Méret
96 m²
Bruttó méret
98 m²
Terasz / erkély mérete
4,5 m²
Fűtés
Gáz cirkó
Belmagasság
360 cm
Lakáson belüli szintszám
1
Tájolás
Dél
Lépcsőház típusa
körfolyosó
Állapot
Kiváló
Homlokzat állapota
Jó
Lépcsőház állapota
Átlagos
Környék
csendes
Építés éve
1920
Fürdőszobák száma
3
Fekvés
utcai
Közös költség
24000
Víz
Van
Gáz
Van
Villany
Van
Csatorna
Van
Lift
van
Tároló
Önálló
Helyiségek
nappali-konyha
32.05 m²
hálószoba
14.52 m²
fürdőszoba-wc
3.42 m²
gardrób
1.86 m²
közlekedő
9.94 m²
hálószoba
11.89 m²
fürdőszoba
2.21 m²
gardrób
2.27 m²
wc-kézmosó
2.34 m²
fürdőszoba
4.18 m²
hálószoba
9.18 m²
előszoba
5.06 m²
Tóth Róbert
Hitelszakértő