215 000 000 Ft
567 000 €
- 103m²
- 3 szoba
- 4. emelet
Panoramic DUPLEX Penthouse in Budaliget — where every day feels a little like a celebration
If you’re looking for a home where the panorama is not a rare moment but part of everyday life, this apartment is worth seeing.
WELCOME HOME!
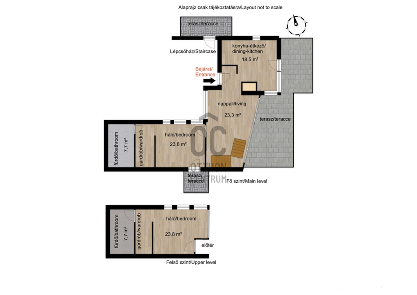
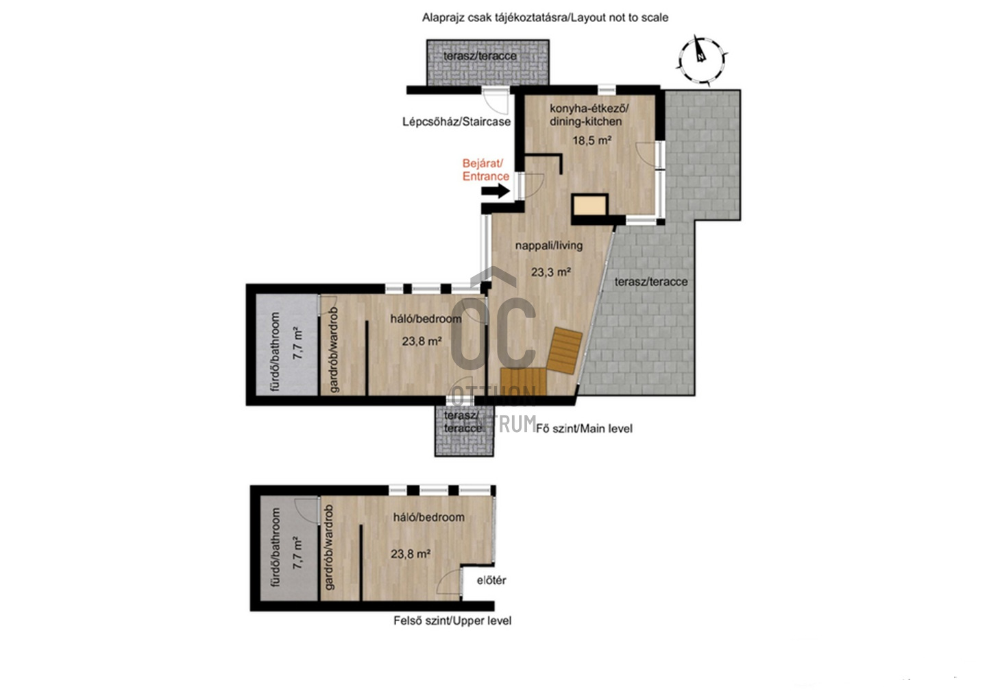
On one of the most beautiful, green streets of District II — Budaliget — we offer for sale a two-level, panoramic DUPLEX penthouse on the top floor of an intimate, three-apartment condominium, with direct forest access. This is a place to arrive: silence, greenery, light and space surround you.
Welcome home!
The apartment’s interior is a generous and well-thought-out net 103 m² (gross 124 m²) and is complemented by three terraces totaling 64 m². Thanks to the terraces and the huge glazed surfaces, nature is present continuously — mornings begin with birdsong and evenings close with a calming panoramic view.
Space that gives an experience
The lower level houses a bright, spacious living–kitchen–dining area ideal for everyday life and for entertaining. Multiple terraces are directly accessible from here, so indoor and outdoor spaces almost merge.
Also on this level: a bedroom, a walk-in closet and a bathroom — perfect as a guest room or home office.
The upper level is dedicated to complete tranquillity: a separate bedroom with its own walk-in closet and en-suite bathroom, where the real highlight is a full glass wall. This solution visually links the two levels while creating a uniquely modern, dramatic penthouse atmosphere.
Understated luxury that simply works
The apartment’s technical specification is truly top-tier, with no compromises:
- Panasonic heat pump system
- Underfloor heating and ceiling cooling for ideal comfort
- Heat-recovery ventilation system
- Triple-glazed, reflective windows
- Electric window opening mechanism
- Digital video intercom and alarm system
- Central water filtration system
- 3×32A electrical supply per apartment
- Three-phase connection prepared for electric car charging
- 6-person hydraulic lift in the building for convenience
The property includes 2 garage spaces and a 14 m² storage room (available for separate purchase).
Who is this home ideal for?
For someone who:
- wants nature literally within arm’s reach,
- values silence, panoramic views and privacy,
- is not looking for a mass-produced apartment but a unique, rare opportunity,
- thinks long-term and understands that a property with these attributes remains a lasting value.
Call me to arrange a viewing!
WELCOME HOME!
On one of the most beautiful, green streets of District II — Budaliget — we offer for sale a two-level, panoramic DUPLEX penthouse on the top floor of an intimate, three-apartment condominium, with direct forest access. This is a place to arrive: silence, greenery, light and space surround you.
Welcome home!
The apartment’s interior is a generous and well-thought-out net 103 m² (gross 124 m²) and is complemented by three terraces totaling 64 m². Thanks to the terraces and the huge glazed surfaces, nature is present continuously — mornings begin with birdsong and evenings close with a calming panoramic view.
Space that gives an experience
The lower level houses a bright, spacious living–kitchen–dining area ideal for everyday life and for entertaining. Multiple terraces are directly accessible from here, so indoor and outdoor spaces almost merge.
Also on this level: a bedroom, a walk-in closet and a bathroom — perfect as a guest room or home office.
The upper level is dedicated to complete tranquillity: a separate bedroom with its own walk-in closet and en-suite bathroom, where the real highlight is a full glass wall. This solution visually links the two levels while creating a uniquely modern, dramatic penthouse atmosphere.
Understated luxury that simply works
The apartment’s technical specification is truly top-tier, with no compromises:
- Panasonic heat pump system
- Underfloor heating and ceiling cooling for ideal comfort
- Heat-recovery ventilation system
- Triple-glazed, reflective windows
- Electric window opening mechanism
- Digital video intercom and alarm system
- Central water filtration system
- 3×32A electrical supply per apartment
- Three-phase connection prepared for electric car charging
- 6-person hydraulic lift in the building for convenience
The property includes 2 garage spaces and a 14 m² storage room (available for separate purchase).
Who is this home ideal for?
For someone who:
- wants nature literally within arm’s reach,
- values silence, panoramic views and privacy,
- is not looking for a mass-produced apartment but a unique, rare opportunity,
- thinks long-term and understands that a property with these attributes remains a lasting value.
Call me to arrange a viewing!
Regisztrációs szám
H512924
Az ingatlan adatai
Értékesités
eladó
Jogi státusz
használt
Jelleg
lakás
Építési mód
tégla
Méret
103 m²
Bruttó méret
124,5 m²
Terasz / erkély mérete
64 m²
Fűtés
hőszivattyú
Belmagasság
270 cm
Lakáson belüli szintszám
1
Tájolás
Kelet
Panoráma
városi panoráma, Zöldre néző panoráma
Lépcsőház típusa
zárt lépcsőház
Állapot
Kiváló
Homlokzat állapota
Kiváló
Lépcsőház állapota
Kiváló
Környék
csendes, zöld
Építés éve
2023
Fürdőszobák száma
2
Fekvés
utcai
Garázs
Kötelezően vásárolandó
Garázs férőhely
2
Víz
Van
Gáz
Utcán
Villany
Van
Csatorna
Van
Lift
van
Tároló
Önálló
Helyiségek
nappali
23.3 m²
konyha-étkező
18.5 m²
hálószoba
23.8 m²
hálószoba
23.8 m²
fürdőszoba-wc
7.7 m²
fürdőszoba-wc
7.7 m²
terasz
39.6 m²
terasz
18.9 m²
terasz
6.1 m²
Tóth Róbert
Hitelszakértő