65,000,000 Ft
167,000 €
- 34m²
- 1 Rooms
- 2nd floor
NAGYPOLGÁRI HANGULAT - MODERN OSZTOTT LAKÁS A PODMANICZKY UTCÁBAN
Egy karakteres, mégis modern otthon a Podmaniczky utca egyik klasszikus épületében. - Üdv Itthon!
RÖVID ÖSSZEFOGLALÓ
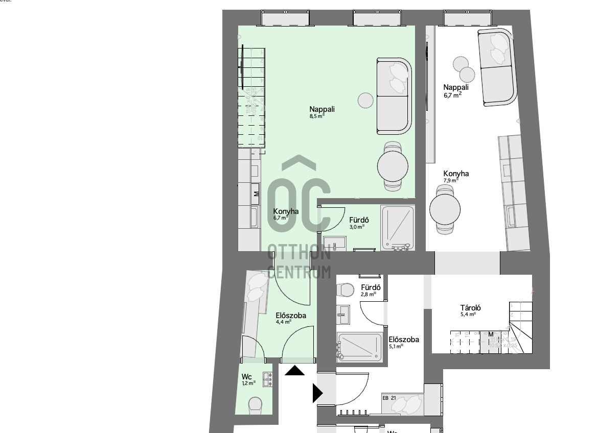
Eladó egy 34 m² nettó (47 m² bruttó), kétszintes, galériás kialakítású lakás Budapest VI. kerületében, a Podmaniczky utcában, egy 1930-as években épült polgári társasház 2. emeletén.
Az ingatlan egy nagyobb lakás megosztásával került kialakításra, használati megosztási szerződéssel, közös előtérrel, azonban lakásonként külön főmérőkkel (víz, villany). A mérők kialakítását a tulajdonos biztosítja, így a rezsi fogyasztás teljesen szeparáltan mérhető.
ELHELYEZKEDÉS – BELVÁROSI ÉLETRITMUS
A Podmaniczky utca a VI. kerület egyik meghatározó utcája, néhány percre az Oktogontól és a Nyugati pályaudvartól.
Kiváló közlekedés:
- Nyugati pályaudvar – M3 metró, vasút, villamosok (4-6)
- Oktogon – M1 metró
- Andrássy út – 3-4 perc sétára
A belváros gyalogosan is kényelmesen bejárható, infrastruktúrája teljes: éttermek, kávézók, irodák, szolgáltatások és kulturális intézmények mind elérhető közelségben.
KLASSZIKUS PESTI KARAKTERES ÉPÜLET
Az 1930-as években épült, polgári stílusjegyeket viselő téglaépület a két világháború közötti pesti bérházépítészet elegáns arányait hordozza. Letisztult homlokzata, ritmusos ablakosztása és a belső udvar köré szervezett alaprajzi rendszere a korszak időtálló városi építészetét idézi.
Az épület külső és belső homlokzata felújított, a lépcsőház karbantartott, a belső udvar rendezett és elegáns hangulatú – valódi klasszikus belvárosi miliőt teremtve.
Lift nincs, azonban a második emelet kényelmesen megközelíthető. A ház lakóközössége kulturált és rendezett, amely méltó keretet ad a benne található lakásoknak.
TÉR ÉS ARÁNY - BELSŐ KIALAKÍTÁS
A 3,85 méteres belmagasság lehetővé tette, egy valóban jól használható, 1,7 méter belmagasságú, 13 m²-es galéria kialakítását, így az utcai nézetű, világos lakás egy élhető, tágas életteret biztosít. Az alaprajz építészetileg átgondolt: az alsó szinten a nappali-étkező és a konyha alkot egy jól szervezett közösségi teret, míg a felső galériaszint intim, szeparált hálórészként funkcionál.
Jelenleg is zajlik a kivitelezés, amely hamarosan befejeződik, így az ingatlan rövid határidővel birtokba vehető. A felújítás során minőségi anyaghasználat jellemző, műanyag nyílászárók kerülnek beépítésre, a kialakítás modern, letisztult designt és szemléletet tükröz.
Vételár tartalmazza:
- beépített, gépesített konyhabútort,
- teljes szaniter felszereltséget.
A fűtés és hűtés klímás rendszerrel kerül kialakításra; a teljes gépészeti és elektromos előkészítés elkészül, azonban a klíma beltéri és kültéri egységei nem képezik a vételár részét.
Az ingatlan egy nagyobb lakás megosztásával jött létre: a három kialakított lakás közös előtérből nyílik, ugyanakkor minden egységhez külön főmérők tartoznak. A közös költség megosztása tulajdoni hányad alapján történik, így a fenntartás arányos és átlátható.
AJÁNLÁS – KINEK IDEÁLIS?
Ez az ingatlan ideális választás mindazok számára, akik a belvárosi élet dinamizmusát szeretnék egy karakteres, nagypolgári hangulatú, mégis modern kialakítású otthonnal ötvözni. Fiataloknak különösen vonzó lehet a galériás térélmény és a városközpont közelsége, ahol minden gyalogosan elérhető.
Ugyanakkor befektetési szempontból is kifejezetten erős lehetőség: a lokáció, a kétszintes kialakítás és a kulcsrakész állapot miatt az ingatlan könnyen és gyorsan bérbeadható. A belső VI. kerület évek óta stabil és keresett bérleti piac, amely hosszú távon is kiszámítható értékállóságot biztosít.
Felkeltettük érdeklődését? Kérdései vannak? Várom hívását!
-----------------------------------------------
Díjmentes, bankfüggetlen hiteltanácsadással támogatjuk vevő ügyfeleinket a számukra legelőnyösebb finanszírozási döntések meghozatalában. Opcionálisan igénybe vehető kiegészítő szolgáltatásainkkal – mint ügyvédi közreműködés, energetikai tanúsítvány vagy villamos biztonsági felülvizsgálat – teljes körű szakmai támogatást nyújtunk az adásvétel folyamatának minden egyes lépésénél.
-----------------------------------------------
A hirdetésben szereplő információk tájékoztató jellegűek. A tévedés és az árváltoztatás jogát fenntartjuk. Az esetleges elírásokért és technikai hibákért felelősséget nem vállalunk.
RÖVID ÖSSZEFOGLALÓ
Eladó egy 34 m² nettó (47 m² bruttó), kétszintes, galériás kialakítású lakás Budapest VI. kerületében, a Podmaniczky utcában, egy 1930-as években épült polgári társasház 2. emeletén.
Az ingatlan egy nagyobb lakás megosztásával került kialakításra, használati megosztási szerződéssel, közös előtérrel, azonban lakásonként külön főmérőkkel (víz, villany). A mérők kialakítását a tulajdonos biztosítja, így a rezsi fogyasztás teljesen szeparáltan mérhető.
ELHELYEZKEDÉS – BELVÁROSI ÉLETRITMUS
A Podmaniczky utca a VI. kerület egyik meghatározó utcája, néhány percre az Oktogontól és a Nyugati pályaudvartól.
Kiváló közlekedés:
- Nyugati pályaudvar – M3 metró, vasút, villamosok (4-6)
- Oktogon – M1 metró
- Andrássy út – 3-4 perc sétára
A belváros gyalogosan is kényelmesen bejárható, infrastruktúrája teljes: éttermek, kávézók, irodák, szolgáltatások és kulturális intézmények mind elérhető közelségben.
KLASSZIKUS PESTI KARAKTERES ÉPÜLET
Az 1930-as években épült, polgári stílusjegyeket viselő téglaépület a két világháború közötti pesti bérházépítészet elegáns arányait hordozza. Letisztult homlokzata, ritmusos ablakosztása és a belső udvar köré szervezett alaprajzi rendszere a korszak időtálló városi építészetét idézi.
Az épület külső és belső homlokzata felújított, a lépcsőház karbantartott, a belső udvar rendezett és elegáns hangulatú – valódi klasszikus belvárosi miliőt teremtve.
Lift nincs, azonban a második emelet kényelmesen megközelíthető. A ház lakóközössége kulturált és rendezett, amely méltó keretet ad a benne található lakásoknak.
TÉR ÉS ARÁNY - BELSŐ KIALAKÍTÁS
A 3,85 méteres belmagasság lehetővé tette, egy valóban jól használható, 1,7 méter belmagasságú, 13 m²-es galéria kialakítását, így az utcai nézetű, világos lakás egy élhető, tágas életteret biztosít. Az alaprajz építészetileg átgondolt: az alsó szinten a nappali-étkező és a konyha alkot egy jól szervezett közösségi teret, míg a felső galériaszint intim, szeparált hálórészként funkcionál.
Jelenleg is zajlik a kivitelezés, amely hamarosan befejeződik, így az ingatlan rövid határidővel birtokba vehető. A felújítás során minőségi anyaghasználat jellemző, műanyag nyílászárók kerülnek beépítésre, a kialakítás modern, letisztult designt és szemléletet tükröz.
Vételár tartalmazza:
- beépített, gépesített konyhabútort,
- teljes szaniter felszereltséget.
A fűtés és hűtés klímás rendszerrel kerül kialakításra; a teljes gépészeti és elektromos előkészítés elkészül, azonban a klíma beltéri és kültéri egységei nem képezik a vételár részét.
Az ingatlan egy nagyobb lakás megosztásával jött létre: a három kialakított lakás közös előtérből nyílik, ugyanakkor minden egységhez külön főmérők tartoznak. A közös költség megosztása tulajdoni hányad alapján történik, így a fenntartás arányos és átlátható.
AJÁNLÁS – KINEK IDEÁLIS?
Ez az ingatlan ideális választás mindazok számára, akik a belvárosi élet dinamizmusát szeretnék egy karakteres, nagypolgári hangulatú, mégis modern kialakítású otthonnal ötvözni. Fiataloknak különösen vonzó lehet a galériás térélmény és a városközpont közelsége, ahol minden gyalogosan elérhető.
Ugyanakkor befektetési szempontból is kifejezetten erős lehetőség: a lokáció, a kétszintes kialakítás és a kulcsrakész állapot miatt az ingatlan könnyen és gyorsan bérbeadható. A belső VI. kerület évek óta stabil és keresett bérleti piac, amely hosszú távon is kiszámítható értékállóságot biztosít.
Felkeltettük érdeklődését? Kérdései vannak? Várom hívását!
-----------------------------------------------
Díjmentes, bankfüggetlen hiteltanácsadással támogatjuk vevő ügyfeleinket a számukra legelőnyösebb finanszírozási döntések meghozatalában. Opcionálisan igénybe vehető kiegészítő szolgáltatásainkkal – mint ügyvédi közreműködés, energetikai tanúsítvány vagy villamos biztonsági felülvizsgálat – teljes körű szakmai támogatást nyújtunk az adásvétel folyamatának minden egyes lépésénél.
-----------------------------------------------
A hirdetésben szereplő információk tájékoztató jellegűek. A tévedés és az árváltoztatás jogát fenntartjuk. Az esetleges elírásokért és technikai hibákért felelősséget nem vállalunk.
Registration Number
H514236
Property Details
Sales
for sale
Legal Status
used
Character
apartment
Construction Method
brick
Net Size
34 m²
Gross Size
47 m²
Heating
renewable
Ceiling Height
385 cm
Number of Levels Within the Property
2
Orientation
North
Staircase Type
circular corridor
Condition
Excellent
Condition of Facade
Good
Condition of Staircase
Good
Neighborhood
good transport, central
Year of Construction
1930
Number of Bathrooms
1
Position
street-facing
Common Costs
15000
Water
Available
Gas
Available
Electricity
Available
Sewer
Available
Rooms
entryway
4.4 m²
open-plan living and dining room
18.7 m²
kitchen
6.7 m²
gallery
13 m²
bathroom
3 m²
toilet-washbasin
1.2 m²
Tóth Róbert
Credit Expert